Maison neuve, 100 m² - Saussines (34160)

379 000 €
Saussines (34160)

Proposée par MAISONS BALENCY – 5 pièces - 3 chambres - terrain 481 m²

MAISONS BALENCY
MAISONS BALENCY
(47 avis)
  • Demande d'information
MAISON À CONSTRUIRE : ceci est une annonce d'une maison neuve à construire.
VENTE d'une maison T5 (100 m²) à Saussines
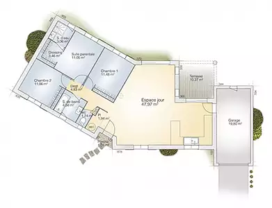
Idéalement située - Maison neuve 5 pièces en vente à Saussines (34160) avec une surface de 100 m² et de 481 m² de terrain. Conçue de plain-pied, elle comporte trois chambres, une cuisine et deux salles de bains. Vue sur un jardin.
À dix minutes : gare (Lunel-Viel), écoles, bibliothèque et épicerie. Autoroute A9 accessible à 9 km. Mer Méditerranée à 22 km. Montpellier à 22 km.
Cette maison de 5 pièces est à vendre pour la somme de 379 000 €.
Prenez contact avec notre agence (BARBAGLIA Jean-Yves : 06-71-64-52-11) pour toute question sur la maison de plain-pied ou sur les démarches à suivre. Maisons Balency Castries vous accompagne dans tous vos projets immobiliers et à toutes les étapes de votre projet.
Référence : JYB2353331_1
Terrain proposé par un partenaire foncier selon disponibilités et autorisation de publicité au prix de 179 000 €. Hors droit d'enregistrement et frais de notaire. Terrain + Maison proposés au prix de 379 000 € (Hors branchements et raccordements, papiers peints, peintures, revêtement de sol dans les chambres. Tarif modifiable sans préavis). Etiquette énergie : A. Différents modèles disponibles pour ce terrain. Assurances et garanties du constructeur (RC professionnelle, décennale, dommage ouvrage, garantie de remboursement de l'acompte, livraison à prix et délai convenu) : HEXAOM Services est enregistré auprès de l'ORIAS en tant que Courtier en financement, Niveau 1, sous le numéro 14001345.

Les informations sur les risques auxquels ce bien est exposé sont disponibles sur le site Géorisques : www.georisques.gouv.fr


Prix
  • Prix total : 379 000 €
  • Prix du modèle de maison : 200 000 €
  • Prix du terrain : 179 000 €

Terrain
  • Surface : 481 m²

Maison
  • Surface : 100 m²
  • Pièces : 5
  • Chambres : 3
  • Garage : 1

  • Être rappelé par un conseiller
  • Demander plus d’infos
  • Demande d'information
Saussines (34160)

Programmes à proximité

PIETRA
PIETRA
Castries (34160)

Appartement de 3 pièces et maison de 4 pièces
Livraison 2ème trimestre 2025

Domaine de Canastel
Domaine de Canastel
Baillargues (34670)

Appartements de 3 à 4 pièces
Livraison 4ème trimestre 2024

Domaine d’Esperanza
Domaine d’Esperanza
Baillargues (34670)

Appartements de 2 à 4 pièces
Livraison 4ème trimestre 2027

DEVI TARA
DEVI TARA
Baillargues (34670)

Appartements de 3 à 4 pièces
Livraison 4ème trimestre 2025

GRACIOSA
GRACIOSA
Clarensac (30870)

Appartements de 2 à 3 pièces
Livraison 2ème trimestre 2027

Confidences
Confidences
Saint-Aunès (34130)

Appartement de 3 pièces
Livraison 2ème trimestre 2026

Contacter MAISONS BALENCY pour recevoir plus d'informations

Remplissez le formulaire ci-dessous, vos informations sont transmises directement au constructeur qui vous contactera par email ou par téléphone afin de traiter votre demande. En savoir plus.

Voir tous nos programmes immobiliers neufs à Saussines