Maison neuve, 109 m² - Saujon (17600)
317 837 €
Saujon (17600)
Proposée par ELYSEES OCEAN – 5 pièces - 4 chambres - terrain 643 m²
|
|
| Elysees Ocean |
- Demande d'information
- Prendre rendez-vous
MAISON À CONSTRUIRE : ceci est une annonce d'une maison neuve à construire.
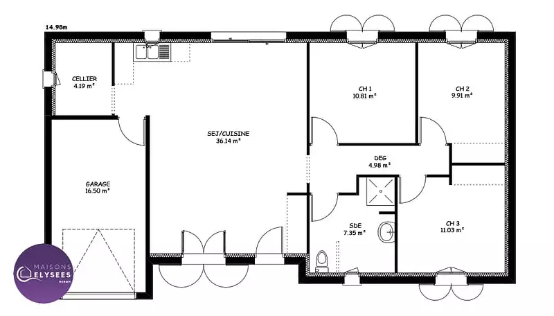
Sur ce terrain, nous vous proposons cette maison neuve, la Soubria, construite par Elysees Ocean, le constructeur avec les meilleurs avis clients de la profession. Avec une surface de 109 m², cette maison basse consommation, conforme à la RE2020, est idéale pour les familles à la recherche de confort et d'efficacité énergétique.
La Soubria se distingue par son architecture soignée, adaptée à tous les goûts. Son séjour traversant permet une luminosité optimale, quelle que soit l'exposition. Les décrochés de toiture et le porche apportent un côté chic qui fait le bonheur de ses habitants.
Cette maison dispose de 4 chambres spacieuses et de 4 pièces bien agencées. Les baies vitrées orientées au sud offrent une vue dégagée et une belle luminosité tout au long de la journée. Le garage accolé est un atout supplémentaire pour le stationnement et le rangement.
Parmi les caractéristiques principales, vous trouverez un auvent élégant et la possibilité de choisir entre une toiture à 2 pans ou 4 pans, selon vos préférences. Les menuiseries en aluminium, très demandées par nos clients, sont également disponibles en option pour une finition moderne et durable.
Ne manquez pas cette opportunité unique de devenir propriétaire d'une maison neuve, économe en énergie et construite par un constructeur de renom. Contactez-nous dès maintenant pour plus d'informations et pour planifier une visite du terrain.
Référence : 24557
Les informations sur les risques auxquels ce bien est exposé sont disponibles sur le site Géorisques : www.georisques.gouv.fr
La Soubria se distingue par son architecture soignée, adaptée à tous les goûts. Son séjour traversant permet une luminosité optimale, quelle que soit l'exposition. Les décrochés de toiture et le porche apportent un côté chic qui fait le bonheur de ses habitants.
Cette maison dispose de 4 chambres spacieuses et de 4 pièces bien agencées. Les baies vitrées orientées au sud offrent une vue dégagée et une belle luminosité tout au long de la journée. Le garage accolé est un atout supplémentaire pour le stationnement et le rangement.
Parmi les caractéristiques principales, vous trouverez un auvent élégant et la possibilité de choisir entre une toiture à 2 pans ou 4 pans, selon vos préférences. Les menuiseries en aluminium, très demandées par nos clients, sont également disponibles en option pour une finition moderne et durable.
Ne manquez pas cette opportunité unique de devenir propriétaire d'une maison neuve, économe en énergie et construite par un constructeur de renom. Contactez-nous dès maintenant pour plus d'informations et pour planifier une visite du terrain.
Référence : 24557
Les informations sur les risques auxquels ce bien est exposé sont disponibles sur le site Géorisques : www.georisques.gouv.fr
- Prix
-
- Prix total : 317 837 €
- Prix du modèle de maison : 169 947 €
- Prix du terrain : 147 890 €
- Terrain
-
- Surface : 643 m²
- Maison
-
- Surface : 109 m²
- Pièces : 5
- Chambres : 4
- Être rappelé par un conseiller
- Demander plus d’infos
- Demande d'information
Saujon (17600)
Maisons à proximité
Maison neuve, 109 m²
Saujon (17600)
Saujon (17600)
Maison de 5 pièces
Maison neuve, 90 m²
Saujon (17600)
Saujon (17600)
Maison de 4 pièces
Maison neuve, 116 m²
Saujon (17600)
Saujon (17600)
Maison de 5 pièces
Maison neuve, 110 m²
Saujon (17600)
Saujon (17600)
Maison de 4 pièces
Maison neuve, 75 m²
Saujon (17600)
Saujon (17600)
Maison de 4 pièces
Maison neuve, 109 m²
Saujon (17600)
Saujon (17600)
Maison de 5 pièces
Programmes à proximité
OPHELIA
Saint-Georges-de-Didonne (17110)
Saint-Georges-de-Didonne (17110)
Appartements de 3 pièces
Livraison 1er trimestre 2026
L'Éclat Marin
Royan (17200)
Royan (17200)
Appartements de 2 à 4 pièces et maisons de 4 pièces
Horizon
Royan (17200)
Royan (17200)
Appartements de 1 à 4 pièces
Livraison 3ème trimestre 2028
LES HAUBANS
La Tremblade (17390)
La Tremblade (17390)
Appartement de 4 pièces
Livraison 4ème trimestre 2024
NACRÉA
La Tremblade (17390)
La Tremblade (17390)
Appartements de 1 à 4 pièces
Livraison 1er trimestre 2028
Contacter ELYSEES OCEAN pour recevoir plus d'informations
Remplissez le formulaire ci-dessous, vos informations sont transmises directement au constructeur qui vous contactera par email ou par téléphone afin de traiter votre demande. En savoir plus.