Maison neuve, 92 m² - Sanilhac (24660)
276 000 €
Sanilhac (24660)
Proposée par MAISONS OMEGA AGENCE DE PÉRIGUEUX – 4 pièces - 3 chambres - terrain 1 800 m²
|
|
| Maisons Omega Agence de Périgueux |
| (17 avis) |
- Demande d'information
- Prendre rendez-vous
MAISON À CONSTRUIRE : ceci est une annonce d'une maison neuve à construire.
Sur ce terrain, nous vous proposons cette maison neuve : le modèle Eysines. Réalisez votre projet de construction avec Maisons Omega, détenteur du label Maisons de Qualité, et faites de votre rêve une réalité.
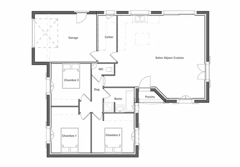
Cette maison de 92 m², conçue en plan en L, offre un cadre de vie idéal pour toute la famille. Avec ses trois chambres spacieuses et ses quatre pièces bien agencées, elle combine confort et fonctionnalité. Le modèle Eysines se distingue par son porche accueillant et son toit à deux pans ou quatre pans, selon vos préférences.
L'intérieur de cette maison est pensé pour optimiser chaque mètre carré. Vous y trouverez une salle de bains moderne avec des WC séparés, un cellier pratique et un vaste salon séjour cuisine baigné de lumière. Les espaces de vie sont bien délimités, avec un coin nuit paisible et un coin jour convivial.
En plus de ses atouts esthétiques et pratiques, cette maison neuve est basse consommation et conforme à la réglementation environnementale RE2020, garantissant ainsi des performances énergétiques optimales et un impact réduit sur l'environnement.
Pour répondre aux attentes des clients, le modèle Eysines peut être équipé d'un Car Port, une option très demandée pour protéger vos véhicules.
N'hésitez pas à nous contacter pour plus d'informations sur cette charmante maison de 92 m². Avec Maisons Omega, votre projet de construction est entre de bonnes mains.
Référence : 12931
Les informations sur les risques auxquels ce bien est exposé sont disponibles sur le site Géorisques : www.georisques.gouv.fr
Cette maison de 92 m², conçue en plan en L, offre un cadre de vie idéal pour toute la famille. Avec ses trois chambres spacieuses et ses quatre pièces bien agencées, elle combine confort et fonctionnalité. Le modèle Eysines se distingue par son porche accueillant et son toit à deux pans ou quatre pans, selon vos préférences.
L'intérieur de cette maison est pensé pour optimiser chaque mètre carré. Vous y trouverez une salle de bains moderne avec des WC séparés, un cellier pratique et un vaste salon séjour cuisine baigné de lumière. Les espaces de vie sont bien délimités, avec un coin nuit paisible et un coin jour convivial.
En plus de ses atouts esthétiques et pratiques, cette maison neuve est basse consommation et conforme à la réglementation environnementale RE2020, garantissant ainsi des performances énergétiques optimales et un impact réduit sur l'environnement.
Pour répondre aux attentes des clients, le modèle Eysines peut être équipé d'un Car Port, une option très demandée pour protéger vos véhicules.
N'hésitez pas à nous contacter pour plus d'informations sur cette charmante maison de 92 m². Avec Maisons Omega, votre projet de construction est entre de bonnes mains.
Référence : 12931
Les informations sur les risques auxquels ce bien est exposé sont disponibles sur le site Géorisques : www.georisques.gouv.fr
- Prix
-
- Prix total : 276 000 €
- Prix du modèle de maison : 176 000 €
- Prix du terrain : 100 000 €
- Terrain
-
- Surface : 1 800 m²
- Maison
-
- Surface : 92 m²
- Pièces : 4
- Chambres : 3
- Être rappelé par un conseiller
- Demander plus d’infos
- Demande d'information
Sanilhac (24660)
Maisons à proximité
Maison neuve, 93 m²
Sanilhac (24660)
Sanilhac (24660)
Maison de 4 pièces
Maison neuve, 98 m²
Sanilhac (24660)
Sanilhac (24660)
Maison de 4 pièces
Maison neuve, 127 m²
Atur (24750)
Atur (24750)
Maison de 4 pièces
Maison neuve, 111 m²
Atur (24750)
Atur (24750)
Maison de 5 pièces
Maison neuve, 111 m²
Atur (24750)
Atur (24750)
Maison de 5 pièces
Maison neuve, 127 m²
Atur (24750)
Atur (24750)
Maison de 4 pièces
Programmes à proximité
Habitez à 5 min du centre-ville
Périgueux (24000)
Périgueux (24000)
Appartements de 2 à 4 pièces
Livraison 1er trimestre 2027
Contacter MAISONS OMEGA AGENCE DE PÉRIGUEUX pour recevoir plus d'informations
Remplissez le formulaire ci-dessous, vos informations sont transmises directement au constructeur qui vous contactera par email ou par téléphone afin de traiter votre demande. En savoir plus.