Maison neuve, 75 m² - Salernes (83690)

300 000 €
Salernes (83690)

Proposée par MAISONS DE MANON – 3 pièces - 3 chambres - terrain 628 m²

MAISONS DE MANON
MAISONS DE MANON
(95 avis)
  • Demande d'information
MAISON À CONSTRUIRE : ceci est une annonce d'une maison neuve à construire.
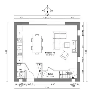
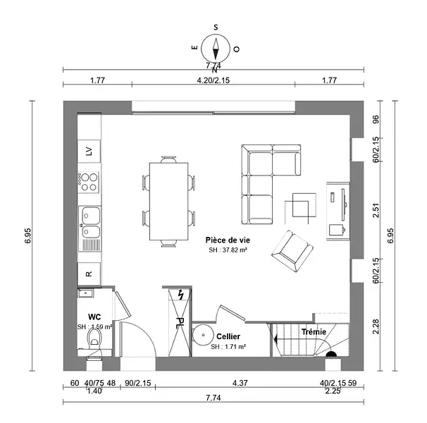
Les Maisons de Manon de Callian vous propose sur ce terrain diverses réalisations possible notamment un modèle sur mesure de 75m² habitable à étage dans un esprit design, entièrement personnalisable. Il dispose de trois chambres, une salle de bain, deux Wc, une cuisine ouverte, un cellier ainsi qu'une belle pièce de vie très lumineuse à partir de 300 000€TTC (Incluant: terrain, frais de notaire, devis terrassier, ouvertures des compteurs, hors peinture, hors cuisine, terrasse en option). Vous disposerez de nombreuses prestations de qualité et d'un réel accompagnement tout au long du projet. Pour plus d'informations contactez votre conseiller commercial des Maisons de Manon Mr Maugras Alexandre au O679268866
Annonce proposée par un Agent Commercial Partenaire.
Référence : AM2402045_2
Terrain proposé par un partenaire foncier selon disponibilités et autorisation de publicité au prix de 88 000 €. Hors droit d'enregistrement et frais de notaire. Terrain + Maison proposés au prix de 212 000 € (Hors branchements et raccordements, papiers peints, peintures, revêtement de sol dans les chambres. Tarif modifiable sans préavis). Etiquette énergie : A. Différents modèles disponibles pour ce terrain. Assurances et garanties du constructeur (RC professionnelle, décennale, dommage ouvrage, garantie de remboursement de l'acompte, livraison à prix et délai convenu) : https://www.maisons-de-manon.fr/informations-legales/. HEXAOM Services est enregistré auprès de l'ORIAS en tant que Courtier en financement, Niveau 1, sous le numéro 14001345.

Les informations sur les risques auxquels ce bien est exposé sont disponibles sur le site Géorisques : www.georisques.gouv.fr


Prix
  • Prix total : 300 000 €
  • Prix du modèle de maison : 212 000 €
  • Prix du terrain : 88 000 €

Terrain
  • Surface : 628 m²

Maison
  • Surface : 75 m²
  • Pièces : 3
  • Chambres : 3
  • Garage : 1

  • Être rappelé par un conseiller
  • Demander plus d’infos
  • Demande d'information
Salernes (83690)

Programmes à proximité

FLEUR DU NIL
FLEUR DU NIL
Draguignan (83300)

Appartement
Livraison 4ème trimestre 2026

Les Terrasses du Dragon
Les Terrasses du Dragon
Draguignan (83300)

Appartements de 2 à 3 pièces
Livraison 2ème trimestre 2028

Les Jardins de Novaia
Les Jardins de Novaia
Draguignan (83300)

Appartements de 2 à 3 pièces
Livraison 3ème trimestre 2028

Le domaine de la Fée
Le domaine de la Fée
Draguignan (83300)

Appartements de 2 pièces
Livraison 2ème trimestre 2026

Le Domaine des Tourdres
Le Domaine des Tourdres
Draguignan (83300)

Appartements de 3 à 4 pièces
Livraison 3ème trimestre 2029

Les Berges de Signon
Les Berges de Signon
Brignoles (83170)

Appartements de 2 à 4 pièces
Livraison 3ème trimestre 2027

Contacter MAISONS DE MANON pour recevoir plus d'informations

Remplissez le formulaire ci-dessous, vos informations sont transmises directement au constructeur qui vous contactera par email ou par téléphone afin de traiter votre demande. En savoir plus.

Voir tous nos programmes immobiliers neufs à Salernes