Maison neuve, 50 m² - Sainte-Pazanne (44680)
197 400 €
Sainte-Pazanne (44680)
Proposée par MAISONS TRADILIGNES – 2 pièces - 1 chambre - terrain 402 m²
|
|
| MAISONS TRADILIGNES |
- Demande d'information
- Prendre rendez-vous
MAISON À CONSTRUIRE : ceci est une annonce d'une maison neuve à construire.
Sainte-Pazanne : maison T2 (50 m²) à vendre
PROCHE DE NANTES - MAISON 2 PIÈCES NEUVE
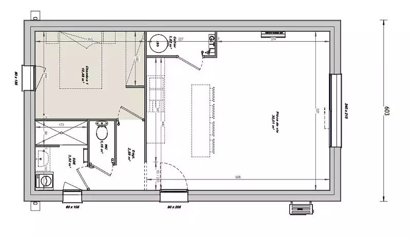
À 20 km de la côte atlantique et à 26 km de Nantes, votre agence Maisons Tradilignes Pornic est ravie de vous proposer en vente à Sainte-Pazanne (44680), cette maison de 2 pièces de plain-pied de 50 m² et de 402 m² de terrain. Elle comporte une chambre, une cuisine et une salle de bains.
Cette maison est neuve.
Cinq établissements scolaires sont implantés à moins de 10 minutes . Côté transports, il y a la gare Sainte-Pazanne à proximité. Les nationales N844 et N444 sont accessibles à moins de 19 km. On trouve un tennis, un bassin de natation, des commerces, deux boulangeries, un supermarché, une boucherie-charcuterie et une épicerie à quelques minutes. Ne manquez pas le marché Place du 18 juin 1940 chaque vendredi matin.
Elle est proposée à l'achat pour 197 400 €.
.
Référence : VC2249952_3
Terrain proposé par un partenaire foncier selon disponibilités et autorisation de publicité au prix de 94 680 €. Hors droit d'enregistrement et frais de notaire. Maison proposée, avec un contrat de construction de maison individuelle, dans le cadre de la loi du 19/12/1990, au prix de 102 720 € (Hors branchements et raccordements, papiers peints, peintures, revêtement de sol dans les chambres, qui sont chiffrés dans les travaux qui restent à charge du client. Tarif modifiable sans préavis). Étiquette énergie : A. Différents modèles disponibles pour ce terrain. Assurances et garanties du constructeur comprises (RC professionnelle, décennale, dommage ouvrage).
Les informations sur les risques auxquels ce bien est exposé sont disponibles sur le site Géorisques : www.georisques.gouv.fr
PROCHE DE NANTES - MAISON 2 PIÈCES NEUVE
À 20 km de la côte atlantique et à 26 km de Nantes, votre agence Maisons Tradilignes Pornic est ravie de vous proposer en vente à Sainte-Pazanne (44680), cette maison de 2 pièces de plain-pied de 50 m² et de 402 m² de terrain. Elle comporte une chambre, une cuisine et une salle de bains.
Cette maison est neuve.
Cinq établissements scolaires sont implantés à moins de 10 minutes . Côté transports, il y a la gare Sainte-Pazanne à proximité. Les nationales N844 et N444 sont accessibles à moins de 19 km. On trouve un tennis, un bassin de natation, des commerces, deux boulangeries, un supermarché, une boucherie-charcuterie et une épicerie à quelques minutes. Ne manquez pas le marché Place du 18 juin 1940 chaque vendredi matin.
Elle est proposée à l'achat pour 197 400 €.
.
Référence : VC2249952_3
Terrain proposé par un partenaire foncier selon disponibilités et autorisation de publicité au prix de 94 680 €. Hors droit d'enregistrement et frais de notaire. Maison proposée, avec un contrat de construction de maison individuelle, dans le cadre de la loi du 19/12/1990, au prix de 102 720 € (Hors branchements et raccordements, papiers peints, peintures, revêtement de sol dans les chambres, qui sont chiffrés dans les travaux qui restent à charge du client. Tarif modifiable sans préavis). Étiquette énergie : A. Différents modèles disponibles pour ce terrain. Assurances et garanties du constructeur comprises (RC professionnelle, décennale, dommage ouvrage).
Les informations sur les risques auxquels ce bien est exposé sont disponibles sur le site Géorisques : www.georisques.gouv.fr
- Prix
-
- Prix total : 197 400 €
- Prix du modèle de maison : 102 720 €
- Prix du terrain : 94 680 €
- Terrain
-
- Surface : 402 m²
- Maison
-
- Surface : 50 m²
- Pièces : 2
- Chambre : 1
- Être rappelé par un conseiller
- Demander plus d’infos
- Demande d'information
Sainte-Pazanne (44680)
Maisons à proximité
Maison neuve, 85 m²
Sainte-Pazanne (44680)
Sainte-Pazanne (44680)
Maison de 4 pièces
Maison neuve, 91 m²
Sainte-Pazanne (44680)
Sainte-Pazanne (44680)
Maison de 4 pièces
Maison neuve, 93 m²
Sainte-Pazanne (44680)
Sainte-Pazanne (44680)
Maison de 5 pièces
Maison neuve, 145 m²
Sainte-Pazanne (44680)
Sainte-Pazanne (44680)
Maison de 4 pièces
Maison neuve, 84 m²
Sainte-Pazanne (44680)
Sainte-Pazanne (44680)
Maison de 4 pièces
Maison neuve, 116 m²
Sainte-Pazanne (44680)
Sainte-Pazanne (44680)
Maison de 5 pièces
Programmes à proximité
Le Clos des Asphodèles
Le Pellerin (44640)
Le Pellerin (44640)
Appartement de 2 pièces
Livraison 4ème trimestre 2026
Le Domaine Bonne Fontaine
Saint-Philbert-de-Grand-Lieu (44310)
Saint-Philbert-de-Grand-Lieu (44310)
Appartements de 2 à 4 pièces
Livraison 3ème trimestre 2027
Ô Grand-Lieu
La Chevrolière (44118)
La Chevrolière (44118)
Appartements de 3 à 4 pièces
Livraison 4ème trimestre 2025
CARRÉ BEAUVOIR
Bouguenais (44340)
Bouguenais (44340)
Appartements de 2 à 4 pièces
Cîméa
Saint-Herblain (44800)
Saint-Herblain (44800)
Appartements de 1 à 4 pièces
Livraison 2ème trimestre 2028
LAND ART
Saint-Herblain (44800)
Saint-Herblain (44800)
Appartements de 2 à 4 pièces
Livraison 4ème trimestre 2027
Contacter MAISONS TRADILIGNES pour recevoir plus d'informations
Remplissez le formulaire ci-dessous, vos informations sont transmises directement au constructeur qui vous contactera par email ou par téléphone afin de traiter votre demande. En savoir plus.