Maison neuve, 108 m² - Saint-Saturnin (16290)
209 220 €
Saint-Saturnin (16290)
Proposée par BABEAU SEGUIN AGENCE D’ANGOULÊME – CHARENTE (16) – 5 pièces - 4 chambres - terrain 570 m²
|
|
| Babeau Seguin Agence d’Angoulême – Charente (16) |
- Demande d'information
- Prendre rendez-vous
MAISON À CONSTRUIRE : ceci est une annonce d'une maison neuve à construire.
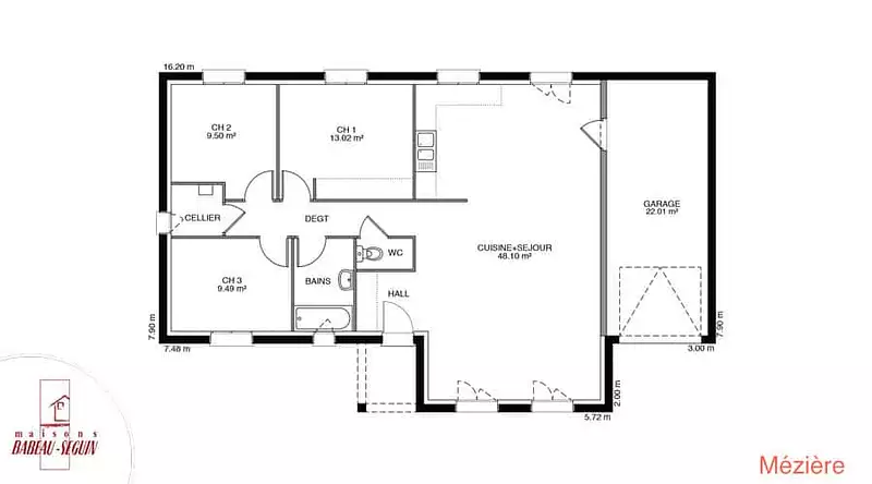
Sur ce terrain, nous vous proposons cette maison neuve, la Mézière Sud, conçue par Babeau-Seguin, constructeur offrant le meilleur rapport qualité/prix du marché. Superbe maison typique du sud, inspirée du modèle à succès Mézière de chez Maisons Babeau-Seguin, cette demeure de 108 m² saura répondre à toutes vos attentes.
La Mézière Sud se distingue par son plan en L, offrant une disposition harmonieuse et fonctionnelle. Vous avez le choix entre une toiture à 2 pans ou 4 pans, selon vos préférences esthétiques. La maison comprend 4 chambres spacieuses et 4 pièces, idéales pour accueillir une famille nombreuse ou pour disposer de plusieurs espaces de vie.
Parmi les caractéristiques principales, vous trouverez un garage ou un sous-sol, ainsi qu'un porche accueillant pour vos moments de détente en extérieur. Les options les plus demandées par nos clients, telles que les menuiseries en aluminium et la piscine, sont également disponibles pour personnaliser votre maison selon vos envies.
Cette maison neuve est basse consommation et conforme à la RE2020, garantissant une performance énergétique optimale et un respect des normes environnementales actuelles. Vous pourrez ainsi profiter d'un confort de vie exceptionnel tout en réalisant des économies d'énergie.
Véritable coup de cœur pour de nombreux clients Babeau-Seguin, la Mézière Sud est facilement modifiable pour s'adapter à vos besoins spécifiques, ce qui justifie pleinement son succès. N'attendez plus pour découvrir cette maison d'exception et concrétiser votre projet de vie dans un cadre idyllique.
Référence : 69905
Les informations sur les risques auxquels ce bien est exposé sont disponibles sur le site Géorisques : www.georisques.gouv.fr
La Mézière Sud se distingue par son plan en L, offrant une disposition harmonieuse et fonctionnelle. Vous avez le choix entre une toiture à 2 pans ou 4 pans, selon vos préférences esthétiques. La maison comprend 4 chambres spacieuses et 4 pièces, idéales pour accueillir une famille nombreuse ou pour disposer de plusieurs espaces de vie.
Parmi les caractéristiques principales, vous trouverez un garage ou un sous-sol, ainsi qu'un porche accueillant pour vos moments de détente en extérieur. Les options les plus demandées par nos clients, telles que les menuiseries en aluminium et la piscine, sont également disponibles pour personnaliser votre maison selon vos envies.
Cette maison neuve est basse consommation et conforme à la RE2020, garantissant une performance énergétique optimale et un respect des normes environnementales actuelles. Vous pourrez ainsi profiter d'un confort de vie exceptionnel tout en réalisant des économies d'énergie.
Véritable coup de cœur pour de nombreux clients Babeau-Seguin, la Mézière Sud est facilement modifiable pour s'adapter à vos besoins spécifiques, ce qui justifie pleinement son succès. N'attendez plus pour découvrir cette maison d'exception et concrétiser votre projet de vie dans un cadre idyllique.
Référence : 69905
Les informations sur les risques auxquels ce bien est exposé sont disponibles sur le site Géorisques : www.georisques.gouv.fr
- Prix
-
- Prix total : 209 220 €
- Prix du modèle de maison : 166 920 €
- Prix du terrain : 42 300 €
- Terrain
-
- Surface : 570 m²
- Maison
-
- Surface : 108 m²
- Pièces : 5
- Chambres : 4
- Être rappelé par un conseiller
- Demander plus d’infos
- Demande d'information
Saint-Saturnin (16290)
Maisons à proximité
Maison neuve, 71 m²
Saint-Saturnin (16290)
Saint-Saturnin (16290)
Maison de 3 pièces
Maison neuve, 87 m²
Saint-Saturnin (16290)
Saint-Saturnin (16290)
Maison de 4 pièces
Maison neuve, 73 m²
Saint-Saturnin (16290)
Saint-Saturnin (16290)
Maison de 3 pièces
Maison neuve, 70 m²
Trois-Palis (16730)
Trois-Palis (16730)
Maison de 3 pièces
Maison neuve, 60 m²
Trois-Palis (16730)
Trois-Palis (16730)
Maison de 3 pièces
Maison neuve, 74 m²
Linars (16730)
Linars (16730)
Maison de 4 pièces
Programmes à proximité
Contacter BABEAU SEGUIN AGENCE D’ANGOULÊME – CHARENTE (16) pour recevoir plus d'informations
Remplissez le formulaire ci-dessous, vos informations sont transmises directement au constructeur qui vous contactera par email ou par téléphone afin de traiter votre demande. En savoir plus.