Maison neuve, 149 m² - Saint-Rémy-en-Mauges (49110)
365 000 €
Saint-Rémy-en-Mauges (49110)
Proposée par MAISONS BERNARD JAMBERT – 6 pièces - 4 chambres - terrain 418 m²
|
|
| MAISONS BERNARD JAMBERT |
- Demande d'information
- Prendre rendez-vous
MAISON À CONSTRUIRE : ceci est une annonce d'une maison neuve à construire.
Maison F6 (149 m²) à vendre à Saint-Rémy-en-Mauges
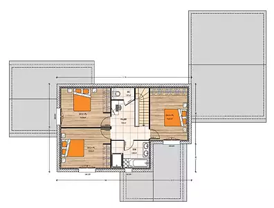
Idéalement située - À Saint-Rémy-en-Mauges (49110), maison neuve en vente de 6 pièces, 2 niveaux, 149 m² sur 418 m² de terrain. Elle dispose de quatre chambres, d'une cuisine et de deux salles de bains.
Proche École Primaire Privée Saint Joseph, tennis, boulangerie, commerce et boucherie-charcuterie. Autoroute A11 et nationale N249 à 17 km. Cholet à 30 km,
Cette maison de 6 pièces est proposée à l'achat pour 365 000 €.
.
Référence : MJ2349070_4
Terrain proposé par un partenaire foncier selon disponibilités et autorisation de publicité au prix de 49 157 €. Hors droit d'enregistrement et frais de notaire. Maison proposée, avec un contrat de construction de maison individuelle, dans le cadre de la loi du 19/12/1990, au prix de 315 843 € (Hors branchements et raccordements, papiers peints, peintures, revêtement de sol dans les chambres, qui sont chiffrés dans les travaux qui restent à charge du client. Tarif modifiable sans préavis). Étiquette énergie : A. Différents modèles disponibles pour ce terrain. Assurances et garanties du constructeur comprises (RC professionnelle, décennale, dommage ouvrage).
Les informations sur les risques auxquels ce bien est exposé sont disponibles sur le site Géorisques : www.georisques.gouv.fr
Idéalement située - À Saint-Rémy-en-Mauges (49110), maison neuve en vente de 6 pièces, 2 niveaux, 149 m² sur 418 m² de terrain. Elle dispose de quatre chambres, d'une cuisine et de deux salles de bains.
Proche École Primaire Privée Saint Joseph, tennis, boulangerie, commerce et boucherie-charcuterie. Autoroute A11 et nationale N249 à 17 km. Cholet à 30 km,
Cette maison de 6 pièces est proposée à l'achat pour 365 000 €.
.
Référence : MJ2349070_4
Terrain proposé par un partenaire foncier selon disponibilités et autorisation de publicité au prix de 49 157 €. Hors droit d'enregistrement et frais de notaire. Maison proposée, avec un contrat de construction de maison individuelle, dans le cadre de la loi du 19/12/1990, au prix de 315 843 € (Hors branchements et raccordements, papiers peints, peintures, revêtement de sol dans les chambres, qui sont chiffrés dans les travaux qui restent à charge du client. Tarif modifiable sans préavis). Étiquette énergie : A. Différents modèles disponibles pour ce terrain. Assurances et garanties du constructeur comprises (RC professionnelle, décennale, dommage ouvrage).
Les informations sur les risques auxquels ce bien est exposé sont disponibles sur le site Géorisques : www.georisques.gouv.fr
- Prix
-
- Prix total : 365 000 €
- Prix du modèle de maison : 315 843 €
- Prix du terrain : 49 157 €
- Terrain
-
- Surface : 418 m²
- Maison
-
- Surface : 149 m²
- Pièces : 6
- Chambres : 4
- Garage : 1
- Être rappelé par un conseiller
- Demander plus d’infos
- Demande d'information
Saint-Rémy-en-Mauges (49110)
Maisons à proximité
Maison neuve, 80,17 m²
Saint-Rémy-en-Mauges (49110)
Saint-Rémy-en-Mauges (49110)
Maison de 4 pièces
Maison neuve, 71 m²
Saint-Rémy-en-Mauges (49110)
Saint-Rémy-en-Mauges (49110)
Maison de 3 pièces
Maison neuve, 101,58 m²
Saint-Rémy-en-Mauges (49110)
Saint-Rémy-en-Mauges (49110)
Maison de 6 pièces
Maison neuve, 50 m²
Saint-Rémy-en-Mauges (49110)
Saint-Rémy-en-Mauges (49110)
Maison de 3 pièces
Maison neuve, 102,12 m²
Saint-Rémy-en-Mauges (49110)
Saint-Rémy-en-Mauges (49110)
Maison de 6 pièces
Maison neuve, 120 m²
Saint-Rémy-en-Mauges (49110)
Saint-Rémy-en-Mauges (49110)
Maison de 7 pièces
Programmes à proximité
Coeur de ville
Le Loroux-Bottereau (44430)
Le Loroux-Bottereau (44430)
Appartements de 2 à 4 pièces
Livraison 2ème trimestre 2027
Contacter MAISONS BERNARD JAMBERT pour recevoir plus d'informations
Remplissez le formulaire ci-dessous, vos informations sont transmises directement au constructeur qui vous contactera par email ou par téléphone afin de traiter votre demande. En savoir plus.
Voir tous nos programmes immobiliers neufs à Saint-Rémy-en-Mauges