Maison neuve, 87 m² - Saint-Ouen-en-Belin (72220)
225 000 €
Saint-Ouen-en-Belin (72220)
Proposée par MAINE CONSTRUCTION – 5 pièces - 4 chambres - terrain 660 m²
|
|
| Maine Construction |
- Demande d'information
- Prendre rendez-vous
MAISON À CONSTRUIRE : ceci est une annonce d'une maison neuve à construire.
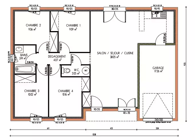
Maison F5 (87 m²) à vendre à Saint-Ouen-en-Belin
Idéalement située - À Saint-Ouen-en-Belin (72220), maison neuve en vente de 5 pièces, 87 m² de surface et 660 m² de terrain. Conçue de plain-pied, elle inclut quatre chambres, une cuisine et une salle de bains.
Proche gares (Écommoy, Laigné-Saint-Gervais et Mayet), École Primaire Publique Claire Fontaine, tennis et boulangeries. Autoroute A28 à 7 km. Le Mans à 17 km.
Le prix de vente de cette maison de 5 pièces est de 225 000 €.
Contactez François HOUDAYER (tél : 06-23-38-26-90) pour tout renseignement sur la maison de plain-pied, sur les modalités de vente ou sur les démarches à suivre.
Référence : FH2362758_9
Terrain proposé par un partenaire foncier selon disponibilités et autorisation de publicité au prix de 43 000 €. Hors droit d'enregistrement et frais de notaire. Terrain + Maison proposés au prix de 182 000 € (Hors branchements et raccordements, papiers peints, peintures, revêtement de sol dans les chambres. Tarif modifiable sans préavis). Etiquette énergie : A. Différents modèles disponibles pour ce terrain. Assurances et garanties du constructeur (RC professionnelle, décennale, dommage ouvrage, garantie de remboursement de l'acompte, livraison à prix et délai convenu) : https://www.maine-construction.fr/mentions-legales/. HEXAOM Services est enregistré auprès de l'ORIAS en tant que Courtier en financement, Niveau 1, sous le numéro 14001345.
Les informations sur les risques auxquels ce bien est exposé sont disponibles sur le site Géorisques : www.georisques.gouv.fr
Idéalement située - À Saint-Ouen-en-Belin (72220), maison neuve en vente de 5 pièces, 87 m² de surface et 660 m² de terrain. Conçue de plain-pied, elle inclut quatre chambres, une cuisine et une salle de bains.
Proche gares (Écommoy, Laigné-Saint-Gervais et Mayet), École Primaire Publique Claire Fontaine, tennis et boulangeries. Autoroute A28 à 7 km. Le Mans à 17 km.
Le prix de vente de cette maison de 5 pièces est de 225 000 €.
Contactez François HOUDAYER (tél : 06-23-38-26-90) pour tout renseignement sur la maison de plain-pied, sur les modalités de vente ou sur les démarches à suivre.
Référence : FH2362758_9
Terrain proposé par un partenaire foncier selon disponibilités et autorisation de publicité au prix de 43 000 €. Hors droit d'enregistrement et frais de notaire. Terrain + Maison proposés au prix de 182 000 € (Hors branchements et raccordements, papiers peints, peintures, revêtement de sol dans les chambres. Tarif modifiable sans préavis). Etiquette énergie : A. Différents modèles disponibles pour ce terrain. Assurances et garanties du constructeur (RC professionnelle, décennale, dommage ouvrage, garantie de remboursement de l'acompte, livraison à prix et délai convenu) : https://www.maine-construction.fr/mentions-legales/. HEXAOM Services est enregistré auprès de l'ORIAS en tant que Courtier en financement, Niveau 1, sous le numéro 14001345.
Les informations sur les risques auxquels ce bien est exposé sont disponibles sur le site Géorisques : www.georisques.gouv.fr
- Prix
-
- Prix total : 225 000 €
- Prix du modèle de maison : 182 000 €
- Prix du terrain : 43 000 €
- Terrain
-
- Surface : 660 m²
- Maison
-
- Surface : 87 m²
- Pièces : 5
- Chambres : 4
- Garage : 1
- Être rappelé par un conseiller
- Demander plus d’infos
- Demande d'information
Saint-Ouen-en-Belin (72220)
Maisons à proximité
Maison neuve, 50 m²
Saint-Ouen-en-Belin (72220)
Saint-Ouen-en-Belin (72220)
Maison de 5 pièces
Maison neuve, 72 m²
Saint-Ouen-en-Belin (72220)
Saint-Ouen-en-Belin (72220)
Maison de 4 pièces
Maison neuve, 98 m²
Saint-Ouen-en-Belin (72220)
Saint-Ouen-en-Belin (72220)
Maison de 3 pièces
Maison neuve, 72 m²
Saint-Ouen-en-Belin (72220)
Saint-Ouen-en-Belin (72220)
Maison de 4 pièces
Maison neuve, 60 m²
Saint-Ouen-en-Belin (72220)
Saint-Ouen-en-Belin (72220)
Maison de 3 pièces
Maison neuve, 73 m²
Saint-Ouen-en-Belin (72220)
Saint-Ouen-en-Belin (72220)
Maison de 4 pièces
Programmes à proximité
Néméa Le Mans Université
Le Mans (72000)
Le Mans (72000)
Appartements de 1 pièce
Livraison 2ème trimestre 2027
HARMONIE
Le Mans (72000)
Le Mans (72000)
Appartement de 4 pièces
Livraison 2ème trimestre 2026
LES BOSQUETS TR.1
Le Mans (72000)
Le Mans (72000)
Appartements de 1 à 4 pièces
Livraison 4ème trimestre 2027
Epsilon
Le Mans (72000)
Le Mans (72000)
Appartements de 1 à 3 pièces
Livraison 4ème trimestre 2027
Contacter MAINE CONSTRUCTION pour recevoir plus d'informations
Remplissez le formulaire ci-dessous, vos informations sont transmises directement au constructeur qui vous contactera par email ou par téléphone afin de traiter votre demande. En savoir plus.
Voir tous nos programmes immobiliers neufs à Saint-Ouen-en-Belin