Maison neuve, 138 m² - Saint-Ouen-en-Belin (72220)
340 000 €
Saint-Ouen-en-Belin (72220)
Proposée par MAINE CONSTRUCTION – 4 pièces - 4 chambres - terrain 660 m²
|
|
| Maine Construction |
- Demande d'information
- Prendre rendez-vous
MAISON À CONSTRUIRE : ceci est une annonce d'une maison neuve à construire.
Saint-Ouen-en-Belin : maison F4 (138 m²) en vente
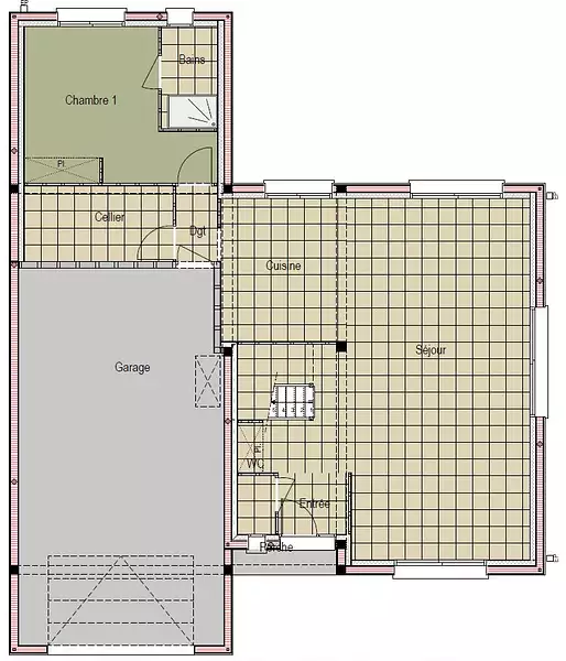
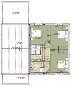
Idéalement située - À découvrir à Saint-Ouen-en-Belin (72220) : maison neuve 4 pièces en vente, 2 niveaux, 138 m² sur 660 m² de terrain. Son intérieur est composé de quatre chambres, d'une cuisine et de deux salles de bains.
À proximité : gares (Écommoy, Laigné-Saint-Gervais et Mayet), École Primaire Publique Claire Fontaine, tennis et boulangeries. Accès autoroute A28 à 7 km. Le Mans à 17 km.
Cette maison de 4 pièces est proposée à l'achat pour 340 000 €.
Contactez François HOUDAYER (06-23-38-26-90) pour plus d'informations sur la maison ou sur les démarches à suivre. Concrétisez vos projets immobiliers avec Maine Construction Le Mans.
Référence : FH2362758_10
Terrain proposé par un partenaire foncier selon disponibilités et autorisation de publicité au prix de 43 000 €. Hors droit d'enregistrement et frais de notaire. Terrain + Maison proposés au prix de 297 000 € (Hors branchements et raccordements, papiers peints, peintures, revêtement de sol dans les chambres. Tarif modifiable sans préavis). Etiquette énergie : A. Différents modèles disponibles pour ce terrain. Assurances et garanties du constructeur (RC professionnelle, décennale, dommage ouvrage, garantie de remboursement de l'acompte, livraison à prix et délai convenu) : https://www.maine-construction.fr/mentions-legales/. HEXAOM Services est enregistré auprès de l'ORIAS en tant que Courtier en financement, Niveau 1, sous le numéro 14001345.
Les informations sur les risques auxquels ce bien est exposé sont disponibles sur le site Géorisques : www.georisques.gouv.fr
Idéalement située - À découvrir à Saint-Ouen-en-Belin (72220) : maison neuve 4 pièces en vente, 2 niveaux, 138 m² sur 660 m² de terrain. Son intérieur est composé de quatre chambres, d'une cuisine et de deux salles de bains.
À proximité : gares (Écommoy, Laigné-Saint-Gervais et Mayet), École Primaire Publique Claire Fontaine, tennis et boulangeries. Accès autoroute A28 à 7 km. Le Mans à 17 km.
Cette maison de 4 pièces est proposée à l'achat pour 340 000 €.
Contactez François HOUDAYER (06-23-38-26-90) pour plus d'informations sur la maison ou sur les démarches à suivre. Concrétisez vos projets immobiliers avec Maine Construction Le Mans.
Référence : FH2362758_10
Terrain proposé par un partenaire foncier selon disponibilités et autorisation de publicité au prix de 43 000 €. Hors droit d'enregistrement et frais de notaire. Terrain + Maison proposés au prix de 297 000 € (Hors branchements et raccordements, papiers peints, peintures, revêtement de sol dans les chambres. Tarif modifiable sans préavis). Etiquette énergie : A. Différents modèles disponibles pour ce terrain. Assurances et garanties du constructeur (RC professionnelle, décennale, dommage ouvrage, garantie de remboursement de l'acompte, livraison à prix et délai convenu) : https://www.maine-construction.fr/mentions-legales/. HEXAOM Services est enregistré auprès de l'ORIAS en tant que Courtier en financement, Niveau 1, sous le numéro 14001345.
Les informations sur les risques auxquels ce bien est exposé sont disponibles sur le site Géorisques : www.georisques.gouv.fr
- Prix
-
- Prix total : 340 000 €
- Prix du modèle de maison : 297 000 €
- Prix du terrain : 43 000 €
- Terrain
-
- Surface : 660 m²
- Maison
-
- Surface : 138 m²
- Pièces : 4
- Chambres : 4
- Garage : 1
- Être rappelé par un conseiller
- Demander plus d’infos
- Demande d'information
Saint-Ouen-en-Belin (72220)
Maisons à proximité
Maison neuve, 50 m²
Saint-Ouen-en-Belin (72220)
Saint-Ouen-en-Belin (72220)
Maison de 5 pièces
Maison neuve, 72 m²
Saint-Ouen-en-Belin (72220)
Saint-Ouen-en-Belin (72220)
Maison de 4 pièces
Maison neuve, 98 m²
Saint-Ouen-en-Belin (72220)
Saint-Ouen-en-Belin (72220)
Maison de 3 pièces
Maison neuve, 72 m²
Saint-Ouen-en-Belin (72220)
Saint-Ouen-en-Belin (72220)
Maison de 4 pièces
Maison neuve, 60 m²
Saint-Ouen-en-Belin (72220)
Saint-Ouen-en-Belin (72220)
Maison de 3 pièces
Maison neuve, 73 m²
Saint-Ouen-en-Belin (72220)
Saint-Ouen-en-Belin (72220)
Maison de 4 pièces
Programmes à proximité
Néméa Le Mans Université
Le Mans (72000)
Le Mans (72000)
Appartements de 1 pièce
Livraison 2ème trimestre 2027
HARMONIE
Le Mans (72000)
Le Mans (72000)
Appartement de 4 pièces
Livraison 2ème trimestre 2026
LES BOSQUETS TR.1
Le Mans (72000)
Le Mans (72000)
Appartements de 1 à 4 pièces
Livraison 4ème trimestre 2027
Epsilon
Le Mans (72000)
Le Mans (72000)
Appartements de 1 à 3 pièces
Livraison 4ème trimestre 2027
Contacter MAINE CONSTRUCTION pour recevoir plus d'informations
Remplissez le formulaire ci-dessous, vos informations sont transmises directement au constructeur qui vous contactera par email ou par téléphone afin de traiter votre demande. En savoir plus.
Voir tous nos programmes immobiliers neufs à Saint-Ouen-en-Belin