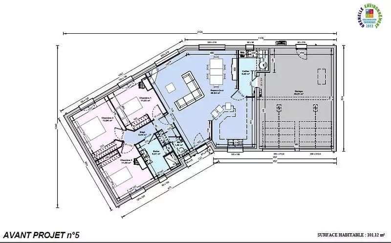
Maison neuve, 100 m² - Saint-Ouën-des-Toits (53410)

246 400 €
Saint-Ouën-des-Toits (53410)

Proposée par MAISONS FRANCE CONFORT – 4 pièces - 3 chambres - terrain 644 m²

MAISONS FRANCE CONFORT
MAISONS FRANCE CONFORT
  • Demande d'information
MAISON À CONSTRUIRE : ceci est une annonce d'une maison neuve à construire.
VENTE d'une maison T4 (100 m²) à Saint-Ouën-des-Toits
Idéalement située - À découvrir à Saint-Ouën-des-Toits (53410) : maison neuve 4 pièces à vendre. Surface de 100 m² sur 644 m² de terrain. Elle se divise en trois chambres, une cuisine et une salle de bains.
À proximité : gares (Le Genest-Saint-Isle, Port-Brillet et Saint-Pierre-la-Cour), écoles, crèche, tennis et épicerie. Autoroute A81 accessible à 7 km. Laval à 13 km.
Le prix de vente de cette maison de 4 pièces est de 226 400 €.
. Maisons France Confort Bonchamp-lès-Laval vous accompagne dans toutes vos démarches et à toutes les étapes de votre projet.
Référence : CF2305115_5
Terrain proposé par un partenaire foncier selon disponibilités et autorisation de publicité au prix de 54 000 €. Hors droit d'enregistrement et frais de notaire. Terrain + Maison proposés au prix de 192 400 € (Hors branchements et raccordements, papiers peints, peintures, revêtement de sol dans les chambres. Tarif modifiable sans préavis). Etiquette énergie : A. Différents modèles disponibles pour ce terrain. . HEXAOM Services est enregistré auprès de l'ORIAS en tant que Courtier en financement, Niveau 1, sous le numéro 14001345.

Les informations sur les risques auxquels ce bien est exposé sont disponibles sur le site Géorisques : www.georisques.gouv.fr


Prix
  • Prix total : 246 400 €
  • Prix du modèle de maison : 192 400 €
  • Prix du terrain : 54 000 €

Terrain
  • Surface : 644 m²

Maison
  • Surface : 100 m²
  • Pièces : 4
  • Chambres : 3
  • Garage : 1

  • Être rappelé par un conseiller
  • Demander plus d’infos
  • Demande d'information
Saint-Ouën-des-Toits (53410)

Programmes à proximité

Les Allées de Sévigné
Les Allées de Sévigné
Saint-Berthevin (53940)

Appartements de 2 à 4 pièces
Livraison 1er trimestre 2028

ANGORA
ANGORA
Laval (53000)

Appartements de 2 à 4 pièces
Livraison 3ème trimestre 2026

Nouveauté aux portes de Laval
Nouveauté aux portes de Laval
Louverné (53950)

Appartements de 2 à 4 pièces
Livraison 4ème trimestre 2025

COEUR SIMÉON
COEUR SIMÉON
L'Huisserie (53970)

Appartements de 2 à 3 pièces
Livraison 4ème trimestre 2026

COEUR SIMEON - PSLA
COEUR SIMEON - PSLA
L'Huisserie (53970)

Appartements de 2 à 3 pièces
Livraison 3ème trimestre 2026

TIERNI
TIERNI
Vitré (35500)

Appartements de 2 à 3 pièces
Livraison 4ème trimestre 2026

Contacter MAISONS FRANCE CONFORT pour recevoir plus d'informations

Remplissez le formulaire ci-dessous, vos informations sont transmises directement au constructeur qui vous contactera par email ou par téléphone afin de traiter votre demande. En savoir plus.

Voir tous nos programmes immobiliers neufs à Saint-Ouën-des-Toits