Maison neuve, 90 m² - Saint-Médard-de-Mussidan (24400)
191 000 €
Saint-Médard-de-Mussidan (24400)
Proposée par MAISONS OMEGA AGENCE DE PÉRIGUEUX – 5 pièces - 4 chambres - terrain 700 m²
|
|
| Maisons Omega Agence de Périgueux |
| (17 avis) |
- Demande d'information
- Prendre rendez-vous
MAISON À CONSTRUIRE : ceci est une annonce d'une maison neuve à construire.
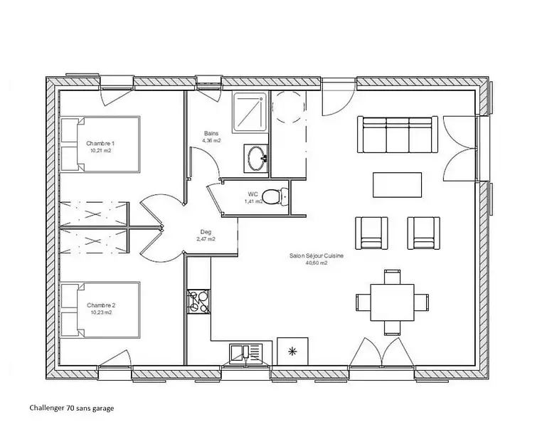
Sur ce terrain, nous vous proposons cette maison neuve : le modèle Challenger, conçu par Maisons Omega, détenteur du label Maisons de Qualité. Cette maison de 90 m² est idéale pour les primo-accédants ou les couples à la recherche du meilleur rapport qualité/prix du marché. Avec ses formes simples et son intérieur confortable, elle séduit immédiatement.
La maison Challenger offre une surface généreuse de 90 m², comprenant 4 chambres et 4 pièces. Vous y trouverez un vaste séjour avec une cuisine ouverte, parfait pour des moments conviviaux en famille ou entre amis. Les grandes portes-fenêtres assurent une luminosité optimale tout au long de la journée. Un très pratique garage intégré est également inclus.
Construite selon les normes de la RE2020, cette maison est basse consommation, ce qui vous garantit des économies d'énergie significatives et un confort de vie optimal. Son aspect extérieur moderne, avec des façades en enduit coloré et des menuiseries assorties, ne manquera pas de vous charmer.
Les options les plus demandées par nos clients, telles que l'enduit coloré et les volets roulants, sont disponibles pour personnaliser votre maison selon vos goûts et vos besoins.
Vous êtes conquis par cette maison neuve à petit prix et basse consommation ? Contactez-nous dès maintenant pour en savoir plus et discuter de votre projet avec nos experts.
Référence : 9185
Les informations sur les risques auxquels ce bien est exposé sont disponibles sur le site Géorisques : www.georisques.gouv.fr
La maison Challenger offre une surface généreuse de 90 m², comprenant 4 chambres et 4 pièces. Vous y trouverez un vaste séjour avec une cuisine ouverte, parfait pour des moments conviviaux en famille ou entre amis. Les grandes portes-fenêtres assurent une luminosité optimale tout au long de la journée. Un très pratique garage intégré est également inclus.
Construite selon les normes de la RE2020, cette maison est basse consommation, ce qui vous garantit des économies d'énergie significatives et un confort de vie optimal. Son aspect extérieur moderne, avec des façades en enduit coloré et des menuiseries assorties, ne manquera pas de vous charmer.
Les options les plus demandées par nos clients, telles que l'enduit coloré et les volets roulants, sont disponibles pour personnaliser votre maison selon vos goûts et vos besoins.
Vous êtes conquis par cette maison neuve à petit prix et basse consommation ? Contactez-nous dès maintenant pour en savoir plus et discuter de votre projet avec nos experts.
Référence : 9185
Les informations sur les risques auxquels ce bien est exposé sont disponibles sur le site Géorisques : www.georisques.gouv.fr
- Prix
-
- Prix total : 191 000 €
- Prix du modèle de maison : 167 000 €
- Prix du terrain : 24 000 €
- Terrain
-
- Surface : 700 m²
- Maison
-
- Surface : 90 m²
- Pièces : 5
- Chambres : 4
- Être rappelé par un conseiller
- Demander plus d’infos
- Demande d'information
Saint-Médard-de-Mussidan (24400)
Maisons à proximité
Maison neuve, 80 m²
Saint-Médard-de-Mussidan (24400)
Saint-Médard-de-Mussidan (24400)
Maison de 4 pièces
Maison neuve, 90 m²
Saint-Médard-de-Mussidan (24400)
Saint-Médard-de-Mussidan (24400)
Maison de 5 pièces
Maison neuve, 111 m²
Saint-Médard-de-Mussidan (24400)
Saint-Médard-de-Mussidan (24400)
Maison de 5 pièces
Maison neuve, 80 m²
Saint-Médard-de-Mussidan (24400)
Saint-Médard-de-Mussidan (24400)
Maison de 4 pièces
Maison neuve, 60 m²
Saint-Médard-de-Mussidan (24400)
Saint-Médard-de-Mussidan (24400)
Maison de 3 pièces
Maison neuve, 80 m²
Saint-Médard-de-Mussidan (24400)
Saint-Médard-de-Mussidan (24400)
Maison de 4 pièces
Programmes à proximité
Contacter MAISONS OMEGA AGENCE DE PÉRIGUEUX pour recevoir plus d'informations
Remplissez le formulaire ci-dessous, vos informations sont transmises directement au constructeur qui vous contactera par email ou par téléphone afin de traiter votre demande. En savoir plus.
Voir tous nos programmes immobiliers neufs à Saint-Médard-de-Mussidan