Maison neuve, 120 m² - Saint-Maur (36250)
288 350 €
Saint-Maur (36250)
Proposée par MAISONS BRUNO PETIT MJB – 5 pièces - 4 chambres - terrain 860 m²
|
|
| MAISONS BRUNO PETIT MJB |
| (160 avis) |
- Demande d'information
- Prendre rendez-vous
MAISON À CONSTRUIRE : ceci est une annonce d'une maison neuve à construire.
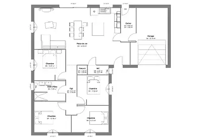
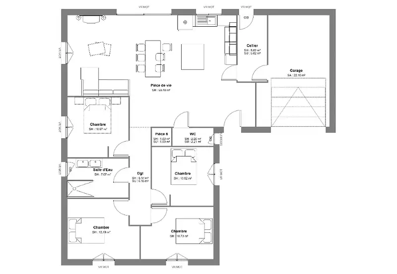
VENTE d'une maison T5 (120 m²) à Saint-Maur
Idéalement située - Maison neuve 5 pièces à vendre à Saint-Maur (36250) avec une surface de 120 m² et de 860 m² de terrain. Conçue de plain-pied, elle dispose de quatre chambres, d'une cuisine et d'une salle de bains.
À proximité : gares (Châteauroux et Luant), écoles, tennis, commerces, boulangerie et boucherie-charcuterie. Autoroute A20 et nationale N151 accessibles à 7 km. Châteauroux à 6 km.
Cette maison de 5 pièces est à vendre pour la somme de 288 350 €.
N'hésitez pas à prendre contact avec notre agence (GRIMAUD Kevin : *6-22-14-89-67) pour tout renseignement sur la maison ou sur les modalités de vente.
Référence : KG2295293_8
Terrain proposé par un partenaire foncier selon disponibilités et autorisation de publicité au prix de 42 500 €. Hors droit d'enregistrement et frais de notaire. Maison proposée, avec un contrat de construction de maison individuelle, dans le cadre de la loi du 19/12/1990, au prix de 245 850 € (Hors branchements et raccordements, papiers peints, peintures, revêtement de sol dans les chambres, qui sont chiffrés dans les travaux qui restent à charge du client. Tarif modifiable sans préavis). Étiquette énergie : A. Différents modèles disponibles pour ce terrain. Assurances et garanties du constructeur comprises (RC professionnelle, décennale, dommage ouvrage).
Les informations sur les risques auxquels ce bien est exposé sont disponibles sur le site Géorisques : www.georisques.gouv.fr
Idéalement située - Maison neuve 5 pièces à vendre à Saint-Maur (36250) avec une surface de 120 m² et de 860 m² de terrain. Conçue de plain-pied, elle dispose de quatre chambres, d'une cuisine et d'une salle de bains.
À proximité : gares (Châteauroux et Luant), écoles, tennis, commerces, boulangerie et boucherie-charcuterie. Autoroute A20 et nationale N151 accessibles à 7 km. Châteauroux à 6 km.
Cette maison de 5 pièces est à vendre pour la somme de 288 350 €.
N'hésitez pas à prendre contact avec notre agence (GRIMAUD Kevin : *6-22-14-89-67) pour tout renseignement sur la maison ou sur les modalités de vente.
Référence : KG2295293_8
Terrain proposé par un partenaire foncier selon disponibilités et autorisation de publicité au prix de 42 500 €. Hors droit d'enregistrement et frais de notaire. Maison proposée, avec un contrat de construction de maison individuelle, dans le cadre de la loi du 19/12/1990, au prix de 245 850 € (Hors branchements et raccordements, papiers peints, peintures, revêtement de sol dans les chambres, qui sont chiffrés dans les travaux qui restent à charge du client. Tarif modifiable sans préavis). Étiquette énergie : A. Différents modèles disponibles pour ce terrain. Assurances et garanties du constructeur comprises (RC professionnelle, décennale, dommage ouvrage).
Les informations sur les risques auxquels ce bien est exposé sont disponibles sur le site Géorisques : www.georisques.gouv.fr
- Prix
-
- Prix total : 288 350 €
- Prix du modèle de maison : 245 850 €
- Prix du terrain : 42 500 €
- Terrain
-
- Surface : 860 m²
- Maison
-
- Surface : 120 m²
- Pièces : 5
- Chambres : 4
- Garage : 1
- Être rappelé par un conseiller
- Demander plus d’infos
- Demande d'information
Saint-Maur (36250)
Maisons à proximité
Maison neuve, 116 m²
Saint-Maur (36250)
Saint-Maur (36250)
Maison de 5 pièces
Maison neuve, 85 m²
Saint-Maur (36250)
Saint-Maur (36250)
Maison de 4 pièces
Maison neuve, 95 m²
Saint-Maur (36250)
Saint-Maur (36250)
Maison de 4 pièces
Maison neuve, 90 m²
Saint-Maur (36250)
Saint-Maur (36250)
Maison de 4 pièces
Maison neuve, 108 m²
Saint-Maur (36250)
Saint-Maur (36250)
Maison de 4 pièces
Maison neuve, 85 m²
Saint-Maur (36250)
Saint-Maur (36250)
Maison de 4 pièces
Programmes à proximité
Contacter MAISONS BRUNO PETIT MJB pour recevoir plus d'informations
Remplissez le formulaire ci-dessous, vos informations sont transmises directement au constructeur qui vous contactera par email ou par téléphone afin de traiter votre demande. En savoir plus.