Maison neuve, 73 m² - Saint-Marcel (71380)
208 925 €
Saint-Marcel (71380)
Proposée par BABEAU SEGUIN AGENCE DE CHALON-SUR-SAÔNE – CONSTRU – 3 pièces - 2 chambres - terrain 637 m²
|
|
| Babeau Seguin Agence de Chalon-sur-Saône – Constru |
- Demande d'information
- Prendre rendez-vous
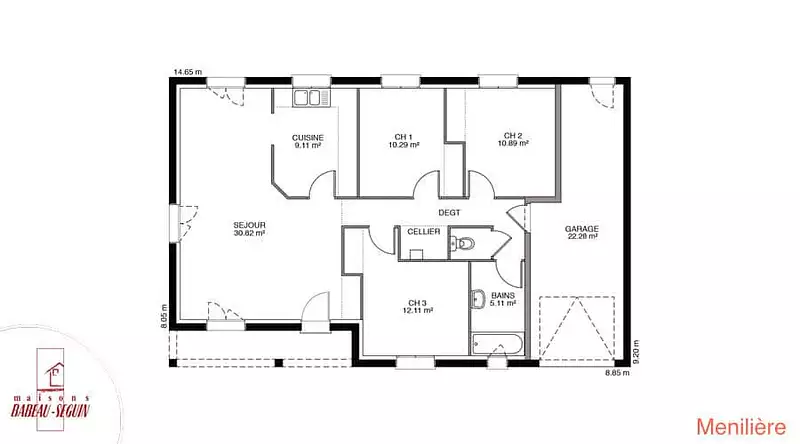
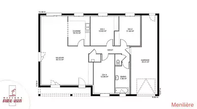
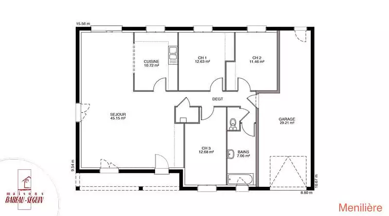
MAISON À CONSTRUIRE : ceci est une annonce d'une maison neuve à construire.
Sur ce terrain, nous vous proposons cette maison neuve, la Ménilière, un modèle plain-pied moderne qui saura répondre à toutes vos attentes. Avec une surface de 73 m², cette maison dispose de 3 pièces, dont 2 chambres, et intègre de base un garage ainsi qu'une longue galerie sur la face avant.
Véritable ""tout-en-un"" de la maison individuelle, la Ménilière est idéale pour votre projet de construction sur-mesure. Elle est disponible avec un toit à 2 pans ou 4 pans, selon vos préférences esthétiques. Le garage intégré et la galerie avant ajoutent une touche de praticité et de confort à votre quotidien.
Parmi les options les plus demandées par nos clients, vous pouvez opter pour des menuiseries en aluminium et un sous-sol, afin de personnaliser encore davantage votre future maison.
Cette maison neuve est basse consommation et conforme à la RE2020, garantissant ainsi des performances énergétiques optimales et un respect des normes environnementales actuelles.
Le constructeur Babeau-Seguin, reconnu pour offrir le meilleur rapport qualité/prix du marché, vous accompagne dans la réalisation de votre projet de vie. Avec un prix serré et une personnalisation facile, il n'est pas étonnant que la Ménilière soit dans le top 5 des ventes de Babeau-Seguin.
Ne manquez pas cette opportunité unique de devenir propriétaire d'une maison moderne, fonctionnelle et économe en énergie. Contactez-nous dès maintenant pour plus d'informations et pour visiter ce modèle sur notre terrain.
Référence : 90775
Les informations sur les risques auxquels ce bien est exposé sont disponibles sur le site Géorisques : www.georisques.gouv.fr
Véritable ""tout-en-un"" de la maison individuelle, la Ménilière est idéale pour votre projet de construction sur-mesure. Elle est disponible avec un toit à 2 pans ou 4 pans, selon vos préférences esthétiques. Le garage intégré et la galerie avant ajoutent une touche de praticité et de confort à votre quotidien.
Parmi les options les plus demandées par nos clients, vous pouvez opter pour des menuiseries en aluminium et un sous-sol, afin de personnaliser encore davantage votre future maison.
Cette maison neuve est basse consommation et conforme à la RE2020, garantissant ainsi des performances énergétiques optimales et un respect des normes environnementales actuelles.
Le constructeur Babeau-Seguin, reconnu pour offrir le meilleur rapport qualité/prix du marché, vous accompagne dans la réalisation de votre projet de vie. Avec un prix serré et une personnalisation facile, il n'est pas étonnant que la Ménilière soit dans le top 5 des ventes de Babeau-Seguin.
Ne manquez pas cette opportunité unique de devenir propriétaire d'une maison moderne, fonctionnelle et économe en énergie. Contactez-nous dès maintenant pour plus d'informations et pour visiter ce modèle sur notre terrain.
Référence : 90775
Les informations sur les risques auxquels ce bien est exposé sont disponibles sur le site Géorisques : www.georisques.gouv.fr
- Prix
-
- Prix total : 208 925 €
- Prix du modèle de maison : 144 588 €
- Prix du terrain : 64 337 €
- Terrain
-
- Surface : 637 m²
- Maison
-
- Surface : 73 m²
- Pièces : 3
- Chambres : 2
- Être rappelé par un conseiller
- Demander plus d’infos
- Demande d'information
Saint-Marcel (71380)
Maisons à proximité
Maison neuve, 134 m²
Saint-Marcel (71380)
Saint-Marcel (71380)
Maison de 5 pièces
Maison neuve, 85 m²
Saint-Marcel (71380)
Saint-Marcel (71380)
Maison de 4 pièces
Maison neuve, 111 m²
Saint-Marcel (71380)
Saint-Marcel (71380)
Maison de 5 pièces
Maison neuve, 124 m²
Saint-Marcel (71380)
Saint-Marcel (71380)
Maison de 5 pièces
Maison neuve, 50 m²
Saint-Marcel (71380)
Saint-Marcel (71380)
Maison de 2 pièces
Maison neuve, 107 m²
Saint-Marcel (71380)
Saint-Marcel (71380)
Maison de 5 pièces
Programmes à proximité
Rives de Genise
Chalon-sur-Saône (71100)
Chalon-sur-Saône (71100)
Appartements de 1 à 5 pièces
Contacter BABEAU SEGUIN AGENCE DE CHALON-SUR-SAÔNE – CONSTRU pour recevoir plus d'informations
Remplissez le formulaire ci-dessous, vos informations sont transmises directement au constructeur qui vous contactera par email ou par téléphone afin de traiter votre demande. En savoir plus.