Maison neuve, 89 m² - Saint-Lô (50000)
200 000 €
Saint-Lô (50000)
Proposée par MAISONS FRANCE CONFORT – 6 pièces - 4 chambres - terrain 471 m²
|
|
| MAISONS FRANCE CONFORT |
- Demande d'information
- Prendre rendez-vous
MAISON À CONSTRUIRE : ceci est une annonce d'une maison neuve à construire.
VENTE : maison F6 (89 m²) à Saint-Lô
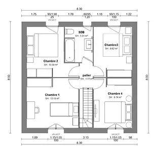
Idéalement située - À découvrir à Saint-Lô (50000) : maison neuve 6 pièces en vente. 2 niveaux, surface de 89 m² et 471 m² de terrain. Elle se divise en quatre chambres, une cuisine et une salle de bains.
À dix minutes : gares (Saint-Lô et Pont-Hébert), établissements scolaires, crèche, bowling, bibliothèque, commerces, boulangeries, supermarchés, épiceries et supérettes. Marché Place De Gaulle hebdomadaire. Accès nationale N174 à 2 km.
Le prix de vente de cette maison de 6 pièces est de 200 000 €.
Contactez notre agence (Emilie HUE : 06-29-81-46-66) pour plus de renseignements sur la maison, sur les démarches à suivre ou sur les modalités de vente. Maisons France Confort Bayeux vous accompagne à toutes les étapes de l'achat et dans tous vos projets immobiliers.
Annonce proposée par un Agent Commercial Partenaire.
Référence : JS2416891_12
Terrain proposé par un partenaire foncier selon disponibilités et autorisation de publicité au prix de 50 000 €. Hors droit d'enregistrement et frais de notaire. Terrain + Maison proposés au prix de 150 000 € (Hors branchements et raccordements, papiers peints, peintures, revêtement de sol dans les chambres. Tarif modifiable sans préavis). Etiquette énergie : A. Différents modèles disponibles pour ce terrain. Assurances et garanties du constructeur (RC professionnelle, décennale, dommage ouvrage, garantie de remboursement de l'acompte, livraison à prix et délai convenu) : https://www.maisons-france-confort.fr/mentions-legales/. HEXAOM Services est enregistré auprès de l'ORIAS en tant que Courtier en financement, Niveau 1, sous le numéro 14001345.
Les informations sur les risques auxquels ce bien est exposé sont disponibles sur le site Géorisques : www.georisques.gouv.fr
Idéalement située - À découvrir à Saint-Lô (50000) : maison neuve 6 pièces en vente. 2 niveaux, surface de 89 m² et 471 m² de terrain. Elle se divise en quatre chambres, une cuisine et une salle de bains.
À dix minutes : gares (Saint-Lô et Pont-Hébert), établissements scolaires, crèche, bowling, bibliothèque, commerces, boulangeries, supermarchés, épiceries et supérettes. Marché Place De Gaulle hebdomadaire. Accès nationale N174 à 2 km.
Le prix de vente de cette maison de 6 pièces est de 200 000 €.
Contactez notre agence (Emilie HUE : 06-29-81-46-66) pour plus de renseignements sur la maison, sur les démarches à suivre ou sur les modalités de vente. Maisons France Confort Bayeux vous accompagne à toutes les étapes de l'achat et dans tous vos projets immobiliers.
Annonce proposée par un Agent Commercial Partenaire.
Référence : JS2416891_12
Terrain proposé par un partenaire foncier selon disponibilités et autorisation de publicité au prix de 50 000 €. Hors droit d'enregistrement et frais de notaire. Terrain + Maison proposés au prix de 150 000 € (Hors branchements et raccordements, papiers peints, peintures, revêtement de sol dans les chambres. Tarif modifiable sans préavis). Etiquette énergie : A. Différents modèles disponibles pour ce terrain. Assurances et garanties du constructeur (RC professionnelle, décennale, dommage ouvrage, garantie de remboursement de l'acompte, livraison à prix et délai convenu) : https://www.maisons-france-confort.fr/mentions-legales/. HEXAOM Services est enregistré auprès de l'ORIAS en tant que Courtier en financement, Niveau 1, sous le numéro 14001345.
Les informations sur les risques auxquels ce bien est exposé sont disponibles sur le site Géorisques : www.georisques.gouv.fr
- Prix
-
- Prix total : 200 000 €
- Prix du modèle de maison : 150 000 €
- Prix du terrain : 50 000 €
- Terrain
-
- Surface : 471 m²
- Maison
-
- Surface : 89 m²
- Pièces : 6
- Chambres : 4
- Garage : 1
- Être rappelé par un conseiller
- Demander plus d’infos
- Demande d'information
Saint-Lô (50000)
Maisons à proximité
Maison neuve, 124 m²
Saint-Lô (50000)
Saint-Lô (50000)
Maison de 7 pièces
Maison neuve, 92,38 m²
Saint-Lô (50000)
Saint-Lô (50000)
Maison de 4 pièces
Maison neuve, 124 m²
Saint-Lô (50000)
Saint-Lô (50000)
Maison de 7 pièces
Maison neuve, 102,37 m²
Saint-Lô (50000)
Saint-Lô (50000)
Maison de 4 pièces
Maison neuve, 124 m²
Saint-Lô (50000)
Saint-Lô (50000)
Maison de 7 pièces
Maison neuve, 118,98 m²
Saint-Lô (50000)
Saint-Lô (50000)
Maison de 4 pièces
Programmes à proximité
Contacter MAISONS FRANCE CONFORT pour recevoir plus d'informations
Remplissez le formulaire ci-dessous, vos informations sont transmises directement au constructeur qui vous contactera par email ou par téléphone afin de traiter votre demande. En savoir plus.