Maison neuve, 175 m² - Saint-Just-Chaleyssin (38540)

550 000 €
Saint-Just-Chaleyssin (38540)

Proposée par MAISONS ALAIN MÉTRAL – 5 pièces - terrain 1 000 m²

 Maisons Alain Métral
Maisons Alain Métral
  • Demande d'information
MAISON À CONSTRUIRE : ceci est une annonce d'une maison neuve à construire.
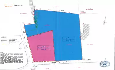
Maisons Alain Métral vous propose en exclusivité avec Maxime Johnson - PRO DEAL ce projet de construction situé sur la commune de St Just Chaleyssin sur un magnifique terrain de 1000 m² hors lotissement.
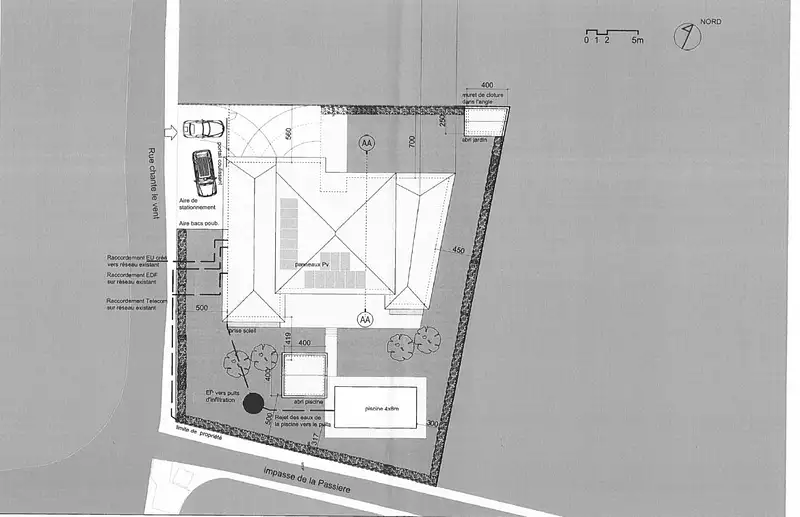
Le projet comprend cette jolie parcelle avec un Permis de construction déjà accepté pour une maison de 180 m² de plain pied + 40 m² de garage.
Venez découvrir ce beau terrain plat, piscinable dans un quartier calme.
Les prestations seront à définir ensemble en fonction de vos envies. (chauffage carrelage, sanitaires etc... )
Terrain en accord avec notre partenaire foncier, sous réserve de disponibilité. Prix hors frais de notaire, hors VRD, hors déco intérieures.
Photos non contractuelles. Projet conforme à la RE2020

Les informations sur les risques auxquels ce bien est exposé sont disponibles sur le site Géorisques : www.georisques.gouv.fr


Prix
  • Prix total : 550 000 €
  • Prix du modèle de maison : 290 000 €
  • Prix du terrain : 260 000 €

Terrain
  • Surface : 1 000 m²

Maison
  • Surface : 175 m²
  • Pièces : 5

  • Être rappelé par un conseiller
  • Demander plus d’infos
  • Demande d'information
Saint-Just-Chaleyssin (38540)

Programmes à proximité

JARDINS DES SENS
JARDINS DES SENS
Serpaize (38200)

Appartements de 2 à 4 pièces
Livraison 3ème trimestre 2026

NUANCES TOUSSIEU LES APPARTS
NUANCES TOUSSIEU LES APPARTS
Toussieu (69780)

Appartements de 3 à 4 pièces
Livraison 3ème trimestre 2026

Secret Garden
Secret Garden
Simandres (69360)

Appartements de 2 à 4 pièces
Livraison 1er trimestre 2028

Côté Bon Accueil
Côté Bon Accueil
Vienne (38200)

Appartements de 2 à 4 pièces
Livraison 3ème trimestre 2026

RIVE ET COLLINE
RIVE ET COLLINE
Vienne (38200)

Appartements de 2 à 4 pièces
Livraison 2ème trimestre 2028

Contacter MAISONS ALAIN MÉTRAL pour recevoir plus d'informations

Remplissez le formulaire ci-dessous, vos informations sont transmises directement au constructeur qui vous contactera par email ou par téléphone afin de traiter votre demande. En savoir plus.

Voir tous nos programmes immobiliers neufs à Saint-Just-Chaleyssin