Maison neuve, 90 m² - Saint-Jean-d'Assé (72380)
245 000 €
Saint-Jean-d'Assé (72380)
Proposée par MAINE CONSTRUCTION – 4 pièces - 3 chambres - terrain 847 m²
|
|
| Maine Construction |
- Demande d'information
- Prendre rendez-vous
MAISON À CONSTRUIRE : ceci est une annonce d'une maison neuve à construire.
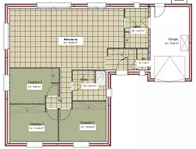
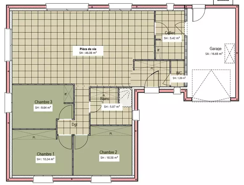
VENTE : maison de 4 pièces (90 m²) à Saint-Jean-d'Assé
Quartier recherché - À découvrir à Saint-Jean-d'Assé (72380) : maison neuve 4 pièces à vendre. Surface de 90 m² et 847 m² de terrain. Elle est composée de trois chambres, d'une cuisine et d'une salle de bains.
Proche gares, École Primaire Publique Pierre Gagneau, bibliothèque, boulangerie et supérette. Accès autoroute A28 à 6 km. Le Mans à 20 km.
Cette maison de 4 pièces est à vendre pour la somme de 245 000 €.
. Faites de vos projets immobiliers une réalité avec Maine Construction Le Mans.
Référence : FH2317560_2
Terrain proposé par un partenaire foncier selon disponibilités et autorisation de publicité au prix de 59 900 €. Hors droit d'enregistrement et frais de notaire. Terrain + Maison proposés au prix de 185 100 € (Hors branchements et raccordements, papiers peints, peintures, revêtement de sol dans les chambres. Tarif modifiable sans préavis). Etiquette énergie : A. Différents modèles disponibles pour ce terrain. . HEXAOM Services est enregistré auprès de l'ORIAS en tant que Courtier en financement, Niveau 1, sous le numéro 14001345.Les informations sur les risques auxquels ce bien est exposé sont disponibles sur le site Géorisques : www.georisques.gouv.fr
Quartier recherché - À découvrir à Saint-Jean-d'Assé (72380) : maison neuve 4 pièces à vendre. Surface de 90 m² et 847 m² de terrain. Elle est composée de trois chambres, d'une cuisine et d'une salle de bains.
Proche gares, École Primaire Publique Pierre Gagneau, bibliothèque, boulangerie et supérette. Accès autoroute A28 à 6 km. Le Mans à 20 km.
Cette maison de 4 pièces est à vendre pour la somme de 245 000 €.
. Faites de vos projets immobiliers une réalité avec Maine Construction Le Mans.
Référence : FH2317560_2
Terrain proposé par un partenaire foncier selon disponibilités et autorisation de publicité au prix de 59 900 €. Hors droit d'enregistrement et frais de notaire. Terrain + Maison proposés au prix de 185 100 € (Hors branchements et raccordements, papiers peints, peintures, revêtement de sol dans les chambres. Tarif modifiable sans préavis). Etiquette énergie : A. Différents modèles disponibles pour ce terrain. . HEXAOM Services est enregistré auprès de l'ORIAS en tant que Courtier en financement, Niveau 1, sous le numéro 14001345.Les informations sur les risques auxquels ce bien est exposé sont disponibles sur le site Géorisques : www.georisques.gouv.fr
- Prix
-
- Prix total : 245 000 €
- Prix du modèle de maison : 185 100 €
- Prix du terrain : 59 900 €
- Terrain
-
- Surface : 847 m²
- Maison
-
- Surface : 90 m²
- Pièces : 4
- Chambres : 3
- Garage : 1
- Être rappelé par un conseiller
- Demander plus d’infos
- Demande d'information
Saint-Jean-d'Assé (72380)
Maisons à proximité
Maison neuve, 50 m²
Saint-Jean-d'Assé (72380)
Saint-Jean-d'Assé (72380)
Maison de 4 pièces
Maison neuve, 71 m²
Saint-Jean-d'Assé (72380)
Saint-Jean-d'Assé (72380)
Maison de 3 pièces
Maison neuve, 115 m²
Saint-Jean-d'Assé (72380)
Saint-Jean-d'Assé (72380)
Maison de 7 pièces
Maison neuve, 63 m²
Saint-Jean-d'Assé (72380)
Saint-Jean-d'Assé (72380)
Maison de 5 pièces
Maison neuve, 70 m²
Saint-Jean-d'Assé (72380)
Saint-Jean-d'Assé (72380)
Maison de 3 pièces
Maison neuve, 128 m²
Saint-Jean-d'Assé (72380)
Saint-Jean-d'Assé (72380)
Maison de 6 pièces
Programmes à proximité
Néméa Le Mans Université
Le Mans (72000)
Le Mans (72000)
Appartements de 1 pièce
Livraison 2ème trimestre 2027
HARMONIE
Le Mans (72000)
Le Mans (72000)
Appartement de 4 pièces
Livraison 2ème trimestre 2026
LES BOSQUETS TR.1
Le Mans (72000)
Le Mans (72000)
Appartements de 1 à 4 pièces
Livraison 4ème trimestre 2027
Epsilon
Le Mans (72000)
Le Mans (72000)
Appartements de 1 à 3 pièces
Livraison 4ème trimestre 2027
Contacter MAINE CONSTRUCTION pour recevoir plus d'informations
Remplissez le formulaire ci-dessous, vos informations sont transmises directement au constructeur qui vous contactera par email ou par téléphone afin de traiter votre demande. En savoir plus.
Voir tous nos programmes immobiliers neufs à Saint-Jean-d'Assé