Maison neuve, 130 m² - Saint-Hymer (14130)
369 500 €
Saint-Hymer (14130)
Proposée par MAISONS FRANCE CONFORT – 5 pièces - 3 chambres - terrain 664 m²
|
|
| MAISONS FRANCE CONFORT |
- Demande d'information
- Prendre rendez-vous
MAISON À CONSTRUIRE : ceci est une annonce d'une maison neuve à construire.
VENTE : maison de 5 pièces (130 m²) à Saint-Hymer
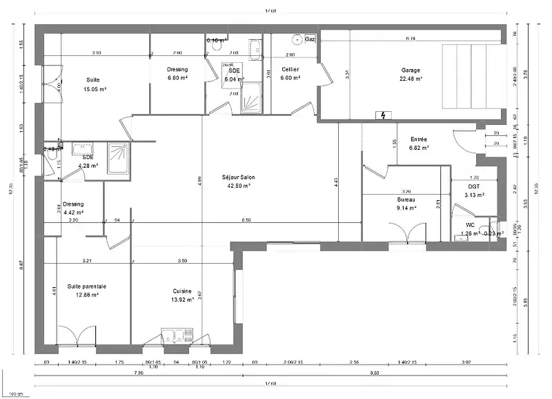
Maisons France Confort Deauville vous présente cette maison de 5 pièces de plain-pied de 130 m² à Saint-Hymer (14130). Son intérieur comporte trois chambres, une cuisine et deux salles de bains.
Le terrain de cette maison s'étend sur 664 m².
Cette maison est neuve.
Il y a plusieurs établissements scolaires (maternelle, élémentaire, primaire et collège) à moins de 10 minutes en voiture. Côté transports en commun, on trouve la gare Pont-l'Évêque à proximité. Les autoroutes A13 et A132 sont accessibles à moins de 5 km. Il y a trois bibliothèques, quatre tennis, des commerces, des boulangeries, quatre supermarchés, deux supérettes et des boucheries-charcuteries dans les environs. Ne manquez pas le marché Place Foch tous les lundis matin.
Elle est à vendre pour la somme de 369 500 €.
. Maisons France Confort Deauville vous accompagne à toutes les étapes de l'achat et dans tous vos projets immobiliers.
Référence : AL2325726_5
Terrain proposé par un partenaire foncier selon disponibilités et autorisation de publicité au prix de 86 000 €. Hors droit d'enregistrement et frais de notaire. Maison proposée, avec un contrat de construction de maison individuelle, dans le cadre de la loi du 19/12/1990, au prix de 283 500 € (Hors branchements et raccordements, papiers peints, peintures, revêtement de sol dans les chambres, qui sont chiffrés dans les travaux qui restent à charge du client. Tarif modifiable sans préavis). Étiquette énergie : A. Différents modèles disponibles pour ce terrain. Assurances et garanties du constructeur comprises (RC professionnelle, décennale, dommage ouvrage).
Les informations sur les risques auxquels ce bien est exposé sont disponibles sur le site Géorisques : www.georisques.gouv.fr
Maisons France Confort Deauville vous présente cette maison de 5 pièces de plain-pied de 130 m² à Saint-Hymer (14130). Son intérieur comporte trois chambres, une cuisine et deux salles de bains.
Le terrain de cette maison s'étend sur 664 m².
Cette maison est neuve.
Il y a plusieurs établissements scolaires (maternelle, élémentaire, primaire et collège) à moins de 10 minutes en voiture. Côté transports en commun, on trouve la gare Pont-l'Évêque à proximité. Les autoroutes A13 et A132 sont accessibles à moins de 5 km. Il y a trois bibliothèques, quatre tennis, des commerces, des boulangeries, quatre supermarchés, deux supérettes et des boucheries-charcuteries dans les environs. Ne manquez pas le marché Place Foch tous les lundis matin.
Elle est à vendre pour la somme de 369 500 €.
. Maisons France Confort Deauville vous accompagne à toutes les étapes de l'achat et dans tous vos projets immobiliers.
Référence : AL2325726_5
Terrain proposé par un partenaire foncier selon disponibilités et autorisation de publicité au prix de 86 000 €. Hors droit d'enregistrement et frais de notaire. Maison proposée, avec un contrat de construction de maison individuelle, dans le cadre de la loi du 19/12/1990, au prix de 283 500 € (Hors branchements et raccordements, papiers peints, peintures, revêtement de sol dans les chambres, qui sont chiffrés dans les travaux qui restent à charge du client. Tarif modifiable sans préavis). Étiquette énergie : A. Différents modèles disponibles pour ce terrain. Assurances et garanties du constructeur comprises (RC professionnelle, décennale, dommage ouvrage).
Les informations sur les risques auxquels ce bien est exposé sont disponibles sur le site Géorisques : www.georisques.gouv.fr
- Prix
-
- Prix total : 369 500 €
- Prix du modèle de maison : 283 500 €
- Prix du terrain : 86 000 €
- Terrain
-
- Surface : 664 m²
- Maison
-
- Surface : 130 m²
- Pièces : 5
- Chambres : 3
- Garage : 1
- Être rappelé par un conseiller
- Demander plus d’infos
- Demande d'information
Saint-Hymer (14130)
Maisons à proximité
Maison neuve, 118 m²
Saint-Hymer (14130)
Saint-Hymer (14130)
Maison de 6 pièces
Maison neuve, 89 m²
Saint-Hymer (14130)
Saint-Hymer (14130)
Maison de 6 pièces
Maison neuve, 100 m²
Saint-Hymer (14130)
Saint-Hymer (14130)
Maison de 6 pièces
Maison neuve, 110 m²
Saint-Hymer (14130)
Saint-Hymer (14130)
Maison de 4 pièces
Maison neuve, 90,45 m²
Saint-Hymer (14130)
Saint-Hymer (14130)
Maison de 4 pièces
Maison neuve, 94 m²
Saint-Hymer (14130)
Saint-Hymer (14130)
Maison de 4 pièces
Programmes à proximité
SEA'SIDE
Touques (14800)
Touques (14800)
Appartements de 2 à 3 pièces
Livraison 3ème trimestre 2026
Les Jardins de l'Hippodrome
Deauville (14800)
Deauville (14800)
Appartements de 1 à 4 pièces
Cadence
Deauville (14800)
Deauville (14800)
Appartements de 2 à 4 pièces
Livraison 3ème trimestre 2026
Les Loges de Clairefontaine
Benerville-sur-Mer (14910)
Benerville-sur-Mer (14910)
Appartements de 2 à 4 pièces
Livraison 4ème trimestre 2027
Résidence sur Mer
Blonville-sur-Mer (14910)
Blonville-sur-Mer (14910)
Appartements de 1 à 4 pièces
Livraison 1er trimestre 2027
RESIDENCE DES PINS
Villers-sur-Mer (14640)
Villers-sur-Mer (14640)
Appartements de 2 à 4 pièces
Livraison 4ème trimestre 2027
Contacter MAISONS FRANCE CONFORT pour recevoir plus d'informations
Remplissez le formulaire ci-dessous, vos informations sont transmises directement au constructeur qui vous contactera par email ou par téléphone afin de traiter votre demande. En savoir plus.