Maison neuve, 145 m² - Saint-Georges-Motel (27710)
370 152 €
Saint-Georges-Motel (27710)
Proposée par MAISONS BALENCY – 8 pièces - 5 chambres - terrain 1 513 m²
|
|
| MAISONS BALENCY |
- Demande d'information
- Prendre rendez-vous
MAISON À CONSTRUIRE : ceci est une annonce d'une maison neuve à construire.
A construire sur la commune de St Georges Motel, une belle maison aux lignes traditionnelles (145 m²).
Dans un secteur recherché sur la commune de St Georges Motel, nous vous proposons ce projet maison de 8 pièces de 145 m² sur un terrain de 1513 m² dans un quartier calme.
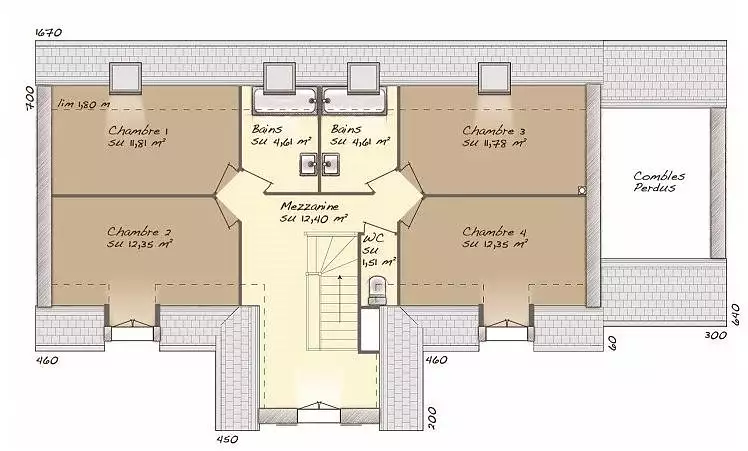
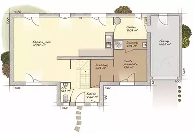
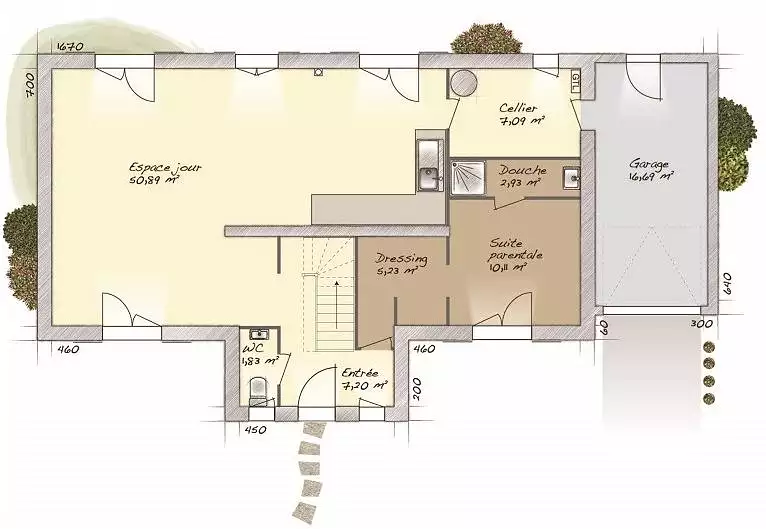
Il s'agit d'une maison de 2 niveaux. Elle est composée de cinq chambres, une cuisine et de trois salles de bains.
Il y a l'École Primaire Consuelo Balsan à moins de 10 minutes à pied, deux boulangeries et un bureau de poste à proximité.
Côté transports en commun, on trouve la gare Dreux à moins de 10 minutes en voiture. Les nationales N12 et N154 sont accessibles à moins de 6 km et Évreux est située à 30 km.
Ce projet maison + terrain est proposée à l'achat pour 370 152 €.
Contactez notre agence Maisons Balency Gravigny, pour plus de renseignements.
Notre conseillère commerciale Élodie DUPRÉ (07-43-61-26-52) sera ravie de vous répondre.
Donnez vie à vos projets immobiliers avec Maisons Balency Gravigny.
Annonce proposée par un Agent Commercial Partenaire.
Référence : ED2412215_1
Terrain proposé par un partenaire foncier selon disponibilités et autorisation de publicité au prix de 79 900 €. Hors droit d'enregistrement et frais de notaire. Terrain + Maison proposés au prix de 290 252 € (Hors branchements et raccordements, papiers peints, peintures, revêtement de sol dans les chambres. Tarif modifiable sans préavis). Etiquette énergie : A. Différents modèles disponibles pour ce terrain. Assurances et garanties du constructeur (RC professionnelle, décennale, dommage ouvrage, garantie de remboursement de l'acompte, livraison à prix et délai convenu) : https://www.maisons-balency.fr/informations-legales/. HEXAOM Services est enregistré auprès de l'ORIAS en tant que Courtier en financement, Niveau 1, sous le numéro 14001345.
Les informations sur les risques auxquels ce bien est exposé sont disponibles sur le site Géorisques : www.georisques.gouv.fr
Dans un secteur recherché sur la commune de St Georges Motel, nous vous proposons ce projet maison de 8 pièces de 145 m² sur un terrain de 1513 m² dans un quartier calme.
Il s'agit d'une maison de 2 niveaux. Elle est composée de cinq chambres, une cuisine et de trois salles de bains.
Il y a l'École Primaire Consuelo Balsan à moins de 10 minutes à pied, deux boulangeries et un bureau de poste à proximité.
Côté transports en commun, on trouve la gare Dreux à moins de 10 minutes en voiture. Les nationales N12 et N154 sont accessibles à moins de 6 km et Évreux est située à 30 km.
Ce projet maison + terrain est proposée à l'achat pour 370 152 €.
Contactez notre agence Maisons Balency Gravigny, pour plus de renseignements.
Notre conseillère commerciale Élodie DUPRÉ (07-43-61-26-52) sera ravie de vous répondre.
Donnez vie à vos projets immobiliers avec Maisons Balency Gravigny.
Annonce proposée par un Agent Commercial Partenaire.
Référence : ED2412215_1
Terrain proposé par un partenaire foncier selon disponibilités et autorisation de publicité au prix de 79 900 €. Hors droit d'enregistrement et frais de notaire. Terrain + Maison proposés au prix de 290 252 € (Hors branchements et raccordements, papiers peints, peintures, revêtement de sol dans les chambres. Tarif modifiable sans préavis). Etiquette énergie : A. Différents modèles disponibles pour ce terrain. Assurances et garanties du constructeur (RC professionnelle, décennale, dommage ouvrage, garantie de remboursement de l'acompte, livraison à prix et délai convenu) : https://www.maisons-balency.fr/informations-legales/. HEXAOM Services est enregistré auprès de l'ORIAS en tant que Courtier en financement, Niveau 1, sous le numéro 14001345.
Les informations sur les risques auxquels ce bien est exposé sont disponibles sur le site Géorisques : www.georisques.gouv.fr
- Prix
-
- Prix total : 370 152 €
- Prix du modèle de maison : 290 252 €
- Prix du terrain : 79 900 €
- Terrain
-
- Surface : 1 513 m²
- Maison
-
- Surface : 145 m²
- Pièces : 8
- Chambres : 5
- Garage : 1
- Être rappelé par un conseiller
- Demander plus d’infos
- Demande d'information
Saint-Georges-Motel (27710)
Maisons à proximité
Maison neuve, 141 m²
Saint-Georges-Motel (27710)
Saint-Georges-Motel (27710)
Maison de 6 pièces
Maison neuve, 100 m²
Saint-Georges-Motel (27710)
Saint-Georges-Motel (27710)
Maison de 5 pièces
Maison neuve, 209 m²
Saint-Georges-Motel (27710)
Saint-Georges-Motel (27710)
Maison de 6 pièces
Maison neuve, 110 m²
Saint-Georges-Motel (27710)
Saint-Georges-Motel (27710)
Maison de 4 pièces
Maison neuve, 170 m²
Saint-Georges-Motel (27710)
Saint-Georges-Motel (27710)
Maison de 7 pièces
Maison neuve, 120 m²
Saint-Georges-Motel (27710)
Saint-Georges-Motel (27710)
Maison de 4 pièces
Programmes à proximité
Métamorphose
Dreux (28100)
Dreux (28100)
Appartements de 1 à 4 pièces
Livraison 4ème trimestre 2027
Domaine des Longs Champs
Houdan (78550)
Houdan (78550)
Appartements de 3 à 4 pièces et maisons de 4 à 5 pièces
Livraison 4ème trimestre 2027
Contacter MAISONS BALENCY pour recevoir plus d'informations
Remplissez le formulaire ci-dessous, vos informations sont transmises directement au constructeur qui vous contactera par email ou par téléphone afin de traiter votre demande. En savoir plus.
Voir tous nos programmes immobiliers neufs à Saint-Georges-Motel