Maison neuve, 95 m² - Saint-Georges-du-Bois (17700)
206 625 €
Saint-Georges-du-Bois (17700)
Proposée par MAISONS ELYSEES OCEAN AGENCE D’AIGREFEUILLE-D’AUNI – 5 pièces - 4 chambres - terrain 263 m²
|
|
| Maisons Elysees Ocean Agence d’Aigrefeuille-d’Auni |
- Demande d'information
- Prendre rendez-vous
MAISON À CONSTRUIRE : ceci est une annonce d'une maison neuve à construire.
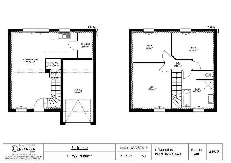
Sur ce terrain, nous vous proposons cette maison neuve, le modèle City Zen, conçue par Elysees Ocean, le constructeur avec les meilleurs avis clients de la profession. Cette maison basse consommation, conforme à la RE2020, offre une surface de 95 m² et se distingue par son design compact et fonctionnel.
La maison City Zen dispose de 4 chambres et de 4 pièces, offrant ainsi un espace de vie confortable et optimisé pour toute la famille. Le garage intégré et le séjour traversant permettent à cette maison de s'adapter à quasiment tous les terrains et de tirer profit de toutes les expositions.
Les caractéristiques principales de cette maison incluent une dalle étage en béton, garantissant robustesse et durabilité. De plus, les options les plus demandées par nos clients sont disponibles pour personnaliser votre maison selon vos goûts et besoins : menuiseries en aluminium pour une touche moderne, domotique pour un confort de vie optimal, et crépis coloré pour une façade élégante et personnalisée.
Ne manquez pas cette opportunité unique de devenir propriétaire d'une maison neuve, économe en énergie et parfaitement adaptée à vos besoins. Contactez-nous dès maintenant pour plus d'informations et pour planifier une visite du terrain.
Référence : 24570
Les informations sur les risques auxquels ce bien est exposé sont disponibles sur le site Géorisques : www.georisques.gouv.fr
La maison City Zen dispose de 4 chambres et de 4 pièces, offrant ainsi un espace de vie confortable et optimisé pour toute la famille. Le garage intégré et le séjour traversant permettent à cette maison de s'adapter à quasiment tous les terrains et de tirer profit de toutes les expositions.
Les caractéristiques principales de cette maison incluent une dalle étage en béton, garantissant robustesse et durabilité. De plus, les options les plus demandées par nos clients sont disponibles pour personnaliser votre maison selon vos goûts et besoins : menuiseries en aluminium pour une touche moderne, domotique pour un confort de vie optimal, et crépis coloré pour une façade élégante et personnalisée.
Ne manquez pas cette opportunité unique de devenir propriétaire d'une maison neuve, économe en énergie et parfaitement adaptée à vos besoins. Contactez-nous dès maintenant pour plus d'informations et pour planifier une visite du terrain.
Référence : 24570
Les informations sur les risques auxquels ce bien est exposé sont disponibles sur le site Géorisques : www.georisques.gouv.fr
- Prix
-
- Prix total : 206 625 €
- Prix du modèle de maison : 171 125 €
- Prix du terrain : 35 500 €
- Terrain
-
- Surface : 263 m²
- Maison
-
- Surface : 95 m²
- Pièces : 5
- Chambres : 4
- Être rappelé par un conseiller
- Demander plus d’infos
- Demande d'information
Saint-Georges-du-Bois (17700)
Maisons à proximité
Maison neuve, 91 m²
Saint-Georges-du-Bois (17700)
Saint-Georges-du-Bois (17700)
Maison de 4 pièces
Maison neuve, 70 m²
Saint-Georges-du-Bois (17700)
Saint-Georges-du-Bois (17700)
Maison de 3 pièces
Maison neuve, 63 m²
Saint-Georges-du-Bois (17700)
Saint-Georges-du-Bois (17700)
Maison de 3 pièces
Maison neuve, 60 m²
Saint-Georges-du-Bois (17700)
Saint-Georges-du-Bois (17700)
Maison de 4 pièces
Maison neuve, 90 m²
Saint-Georges-du-Bois (17700)
Saint-Georges-du-Bois (17700)
Maison de 4 pièces
Maison neuve, 90 m²
Saint-Georges-du-Bois (17700)
Saint-Georges-du-Bois (17700)
Maison de 4 pièces
Programmes à proximité
Le Clos du Chemin Vert
La Jarrie (17220)
La Jarrie (17220)
Appartements de 3 à 5 pièces et maisons de 5 à 6 pièces et locaux commerciaux
Livraison 4ème trimestre 2026
Contacter MAISONS ELYSEES OCEAN AGENCE D’AIGREFEUILLE-D’AUNI pour recevoir plus d'informations
Remplissez le formulaire ci-dessous, vos informations sont transmises directement au constructeur qui vous contactera par email ou par téléphone afin de traiter votre demande. En savoir plus.
Voir tous nos programmes immobiliers neufs à Saint-Georges-du-Bois