Maison neuve, 105 m² - Saint-Geniès-des-Mourgues (34160)

430 000 €
Saint-Geniès-des-Mourgues (34160)

Proposée par MAISONS BALENCY – 5 pièces - 3 chambres - terrain 300 m²

MAISONS BALENCY
MAISONS BALENCY
(47 avis)
  • Demande d'information
MAISON À CONSTRUIRE : ceci est une annonce d'une maison neuve à construire.
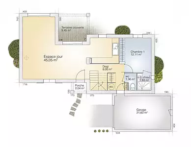
VENTE : maison de 5 pièces (105 m²) à Saint-Geniès-des-Mourgues
Idéalement située - Maison neuve 5 pièces à vendre à Saint-Geniès-des-Mourgues (34160) avec 2 niveaux, une surface de 105 m² et de 300 m² de terrain. Elle compte trois chambres, une cuisine et une salle de bains.
À proximité : gares, écoles, crèche, bibliothèque, tennis, boulangerie, commerce et bureau de poste. Autoroutes A709 et A9 et nationale N113 accessibles à 7 km. Mer Méditerranée à 15 km. Montpellier à 16 km.
Le prix de vente de cette maison de 5 pièces est de 430 000 €.
N'hésitez pas à prendre contact avec Cédric (tél : 06-30-92-83-25) pour plus de renseignements sur la maison ou sur les démarches à suivre. Donnez vie à vos projets immobiliers avec Maisons Balency Castries.
Référence : CJ2338885_2
Terrain proposé par un partenaire foncier selon disponibilités et autorisation de publicité au prix de 210 000 €. Hors droit d'enregistrement et frais de notaire. Terrain + Maison proposés au prix de 220 000 € (Hors branchements et raccordements, papiers peints, peintures, revêtement de sol dans les chambres. Tarif modifiable sans préavis). Etiquette énergie : A. Différents modèles disponibles pour ce terrain. Assurances et garanties du constructeur (RC professionnelle, décennale, dommage ouvrage, garantie de remboursement de l'acompte, livraison à prix et délai convenu) : https://www.maisons-balency.fr/informations-legales/. HEXAOM Services est enregistré auprès de l'ORIAS en tant que Courtier en financement, Niveau 1, sous le numéro 14001345.

Les informations sur les risques auxquels ce bien est exposé sont disponibles sur le site Géorisques : www.georisques.gouv.fr


Prix
  • Prix total : 430 000 €
  • Prix du modèle de maison : 220 000 €
  • Prix du terrain : 210 000 €

Terrain
  • Surface : 300 m²

Maison
  • Surface : 105 m²
  • Pièces : 5
  • Chambres : 3
  • Garage : 1

  • Être rappelé par un conseiller
  • Demander plus d’infos
  • Demande d'information
Saint-Geniès-des-Mourgues (34160)

Programmes à proximité

PIETRA
PIETRA
Castries (34160)

Appartement de 3 pièces et maison de 4 pièces
Livraison 2ème trimestre 2025

Domaine de Canastel
Domaine de Canastel
Baillargues (34670)

Appartements de 3 à 4 pièces
Livraison 4ème trimestre 2024

DEVI TARA
DEVI TARA
Baillargues (34670)

Appartements de 3 à 4 pièces
Livraison 4ème trimestre 2025

Domaine d’Esperanza
Domaine d’Esperanza
Baillargues (34670)

Appartements de 2 à 4 pièces
Livraison 4ème trimestre 2027

Confidences
Confidences
Saint-Aunès (34130)

Appartements de 3 pièces
Livraison 2ème trimestre 2026

LE JARDIN DE CASTILLE
LE JARDIN DE CASTILLE
Mauguio (34130)

Appartements de 2 à 3 pièces
Livraison 3ème trimestre 2027

Contacter MAISONS BALENCY pour recevoir plus d'informations

Remplissez le formulaire ci-dessous, vos informations sont transmises directement au constructeur qui vous contactera par email ou par téléphone afin de traiter votre demande. En savoir plus.

Voir tous nos programmes immobiliers neufs à Saint-Geniès-des-Mourgues