Maison neuve, 115 m² - Saint-Etienne-de-Vicq (03300)
250 688 €
Saint-Etienne-de-Vicq (03300)
Proposée par MAISON ET JARDIN – 5 pièces - 4 chambres - terrain 1 460 m²
|
|
| Maison et Jardin |
- Demande d'information
- Prendre rendez-vous
MAISON À CONSTRUIRE : ceci est une annonce d'une maison neuve à construire.
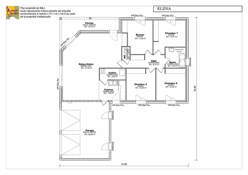
Nous vous proposons cette maison neuve, baptisée Elena, un modèle de résidence familiale conçu pour allier confort, fonctionnalité et respect de l'environnement. Avec une surface habitable de 115 m², cette maison en L se distingue par son architecture moderne et ses espaces de vie optimisés pour répondre aux besoins de toute la famille.
L'espace de vie principal se compose d'un vaste séjour de 40 m², idéal pour vos moments de détente en famille ou entre amis. La cuisine, ouverte sur le séjour, offre un espace convivial et pratique, tandis qu'un bureau adjacent permet de travailler ou de s'adonner à ses hobbies en toute tranquillité. Un WC indépendant complète l'agencement du rez-de-chaussée, garantissant ainsi confort et intimité.
La partie nuit, pensée pour le repos et la sérénité, comprend trois chambres spacieuses, offrant à chaque membre de la famille un espace personnel confortable. La conception de ces pièces a été étudiée pour maximiser l'espace et la luminosité, créant ainsi un havre de paix pour tous.
Côté extérieur, Elena affiche une allure résolument moderne, avec un porche d'entrée accueillant et un double garage, répondant ainsi aux besoins de stationnement et de rangement des familles d'aujourd'hui.
Construite en parpaings, cette maison neuve est non seulement robuste mais aussi basse consommation, conformément à la réglementation environnementale RE2020. Ce modèle est donc particulièrement économe en énergie, réduisant significativement vos factures tout en contribuant à la protection de l'environnement.
Parmi les options les plus plébiscitées par nos clients, et qui pourraient vous intéresser, figurent diverses améliorations visant à personnaliser et à optimiser encore davantage votre espace de vie selon vos besoins et vos envies.
Choisir la maison Elena, c'est opter pour une demeure familiale de qualité, pensée pour le bien-être de ses occupants et respectueuse de l'environnement. N'attendez plus pour faire de ce lieu votre nouveau foyer.
Référence : 12882
Les informations sur les risques auxquels ce bien est exposé sont disponibles sur le site Géorisques : www.georisques.gouv.fr
L'espace de vie principal se compose d'un vaste séjour de 40 m², idéal pour vos moments de détente en famille ou entre amis. La cuisine, ouverte sur le séjour, offre un espace convivial et pratique, tandis qu'un bureau adjacent permet de travailler ou de s'adonner à ses hobbies en toute tranquillité. Un WC indépendant complète l'agencement du rez-de-chaussée, garantissant ainsi confort et intimité.
La partie nuit, pensée pour le repos et la sérénité, comprend trois chambres spacieuses, offrant à chaque membre de la famille un espace personnel confortable. La conception de ces pièces a été étudiée pour maximiser l'espace et la luminosité, créant ainsi un havre de paix pour tous.
Côté extérieur, Elena affiche une allure résolument moderne, avec un porche d'entrée accueillant et un double garage, répondant ainsi aux besoins de stationnement et de rangement des familles d'aujourd'hui.
Construite en parpaings, cette maison neuve est non seulement robuste mais aussi basse consommation, conformément à la réglementation environnementale RE2020. Ce modèle est donc particulièrement économe en énergie, réduisant significativement vos factures tout en contribuant à la protection de l'environnement.
Parmi les options les plus plébiscitées par nos clients, et qui pourraient vous intéresser, figurent diverses améliorations visant à personnaliser et à optimiser encore davantage votre espace de vie selon vos besoins et vos envies.
Choisir la maison Elena, c'est opter pour une demeure familiale de qualité, pensée pour le bien-être de ses occupants et respectueuse de l'environnement. N'attendez plus pour faire de ce lieu votre nouveau foyer.
Référence : 12882
Les informations sur les risques auxquels ce bien est exposé sont disponibles sur le site Géorisques : www.georisques.gouv.fr
- Prix
-
- Prix total : 250 688 €
- Prix du modèle de maison : 218 588 €
- Prix du terrain : 32 100 €
- Terrain
-
- Surface : 1 460 m²
- Maison
-
- Surface : 115 m²
- Pièces : 5
- Chambres : 4
- Être rappelé par un conseiller
- Demander plus d’infos
- Demande d'information
Saint-Etienne-de-Vicq (03300)
Maisons à proximité
Maison neuve, 75 m²
Saint-Etienne-de-Vicq (03300)
Saint-Etienne-de-Vicq (03300)
Maison de 3 pièces
Maison neuve, 96 m²
Saint-Etienne-de-Vicq (03300)
Saint-Etienne-de-Vicq (03300)
Maison de 5 pièces
Maison neuve, 98 m²
Saint-Etienne-de-Vicq (03300)
Saint-Etienne-de-Vicq (03300)
Maison de 5 pièces
Maison neuve, 97 m²
Saint-Etienne-de-Vicq (03300)
Saint-Etienne-de-Vicq (03300)
Maison de 5 pièces
Maison neuve, 89 m²
Cusset (03300)
Cusset (03300)
Maison de 5 pièces
Maison neuve, 113 m²
Cusset (03300)
Cusset (03300)
Maison de 4 pièces
Programmes à proximité
A 10min à pied du centre-ville de Vichy
Vichy (03200)
Vichy (03200)
Appartements de 2 à 4 pièces
Livraison 4ème trimestre 2027
Contacter MAISON ET JARDIN pour recevoir plus d'informations
Remplissez le formulaire ci-dessous, vos informations sont transmises directement au constructeur qui vous contactera par email ou par téléphone afin de traiter votre demande. En savoir plus.
Voir tous nos programmes immobiliers neufs à Saint-Etienne-de-Vicq