Maison neuve, 98 m² - Saint-Didier-de-Formans (01600)

315 000 €
Saint-Didier-de-Formans (01600)

Proposée par MAISONS PUNCH VILLEFRANCHE – 4 pièces - 3 chambres - terrain 400 m²

Maisons Punch Villefranche
Maisons Punch Villefranche
(816 avis)
  • Demande d'information
MAISON À CONSTRUIRE : ceci est une annonce d'une maison neuve à construire.
Profitez du prêt à taux O% et de nos OFFRES "ANNIVERSAIRE 50 ANS" pour réaliser votre rêve à Saint-Didier-de-Formans !
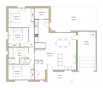
Devenez propriétaire de cette magnifique maison de plain pied de 98 m² - 3 chambres - un garage de 18 m²
Cette maison de plain pied saura vous séduire par son look moderne et ses espaces de vies optimisés qui se composent :
-> D'une pièce de vie généreuse de 48m² et de son espace salon ouvert donnant sur une grande baie vitrée et l'accès à la terrasse
-> D'une grande cuisine permettant de créer un îlot avec accès direct à un cellier et à la terrasse
-> D'un coin bureautique à l'entrée de la maison
-> De 3 chambres de 10 à 12 m² avec placards intégrés
-> D'une salle de bain familiale comprenant baignoire + douche + double vasque
-> D'un WC indépendant
-> D'un garage de 18 m² ou plus selon vos besoins
- Extérieur : Beau terrain de 400 m², plat, à aménager.
En ce moment profitez de notre offre anniversaire (valable jusqu'au 31/12/2025) :
10 M² OFFERT + UNE CUISINE TOUTE EQUIPEE + PLACARDS, PARQUETS DANS TOUTES LES CHAMBRES, PEINTURE ET FAÏENCE OFFERTS !
Pour plus de renseignements :
-> Contactez directement votre commerciale CAROLINE GUILLEMAUD ou répondez à cette annonce
Référence : 3081 SIQUET CAROLINE
Terrain proposé et vendu par notre partenaire foncier selon disponibilités, le constructeur n’étant pas mandaté pour réaliser la vente du terrain. Prix terrain inclus : 149 900 € Frais de notaire non inclus : € Prix maison inclus : 165 100 € VRD non inclus : € Hors aménagements extérieurs (extensions, terrasse, piscine etc), papiers peints, peintures, moquettes dans les chambres (tarif en vigueur au 20 mai 2025, modifiable sans préavis, prix variables suivant les prestations souhaitées). Hors frais d’hypothèque. Différents modèles disponibles pour chaque terrain. Assurance RC professionnelle/décennale/dommage ouvrage groupe Aviva. Garantie de remboursement de l'acompte/livraison à prix et délai convenu CGI.

Les informations sur les risques auxquels ce bien est exposé sont disponibles sur le site Géorisques : www.georisques.gouv.fr


Prix
  • Prix total : 315 000 €
  • Prix du modèle de maison : 165 100 €
  • Prix du terrain : 149 900 €

Terrain
  • Surface : 400 m²

Maison
  • Surface : 98 m²
  • Pièces : 4
  • Chambres : 3
  • Salle de bains : 1
  • Garage : 1
  • Surface garage : 18 m²

  • Être rappelé par un conseiller
  • Demander plus d’infos
  • Demande d'information
Saint-Didier-de-Formans (01600)

Programmes à proximité

Les Jardins de la Citadelle
Les Jardins de la Citadelle
Trévoux (01600)

Appartements de 2 à 4 pièces
Livraison 4ème trimestre 2028

RIVE GAUCHE 2
RIVE GAUCHE 2
Jassans-Riottier (01480)

Appartements de 2 à 3 pièces
Livraison 2ème trimestre 2027

RIVE GAUCHE
RIVE GAUCHE
Jassans-Riottier (01480)

Appartements de 2 à 4 pièces
Livraison 3ème trimestre 2025

COUR D'Ô
COUR D'Ô
Jassans-Riottier (01480)

Appartements de 2 à 4 pièces
Livraison 3ème trimestre 2025

Le Clos des Amandiers
Le Clos des Amandiers
Jassans-Riottier (01480)

Appartements de 2 à 4 pièces
Livraison 1er trimestre 2028

Prélude
Prélude
Villefranche-sur-Saône (69400)

Appartements de 2 à 5 pièces
Livraison 2ème trimestre 2027

Contacter MAISONS PUNCH VILLEFRANCHE pour recevoir plus d'informations

Remplissez le formulaire ci-dessous, vos informations sont transmises directement au constructeur qui vous contactera par email ou par téléphone afin de traiter votre demande. En savoir plus.

Voir tous nos programmes immobiliers neufs à Saint-Didier-de-Formans