Maison neuve, 125 m² - Saint-Crespin-sur-Moine (49230)

366 000 €
Saint-Crespin-sur-Moine (49230)

Proposée par MAISONS DE L'AVENIR – 5 pièces - 4 chambres - terrain 1 146 m²

MAISONS DE L'AVENIR
MAISONS DE L'AVENIR
(137 avis)
  • Demande d'information
MAISON À CONSTRUIRE : ceci est une annonce d'une maison neuve à construire.
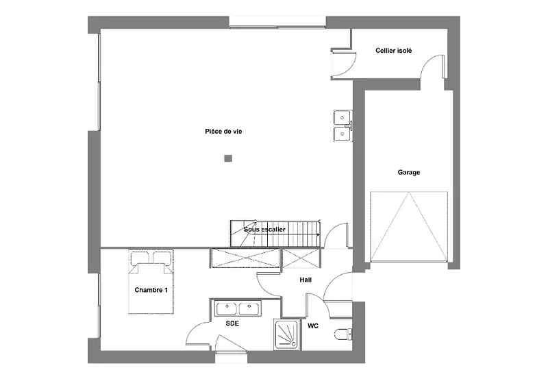
VENTE : maison de 5 pièces (125 m²) à Saint-Crespin-sur-Moine
Idéalement située - À Saint-Crespin-sur-Moine (49230), maison neuve à vendre de 5 pièces, 2 niveaux, 125 m² et 1 146 m² de terrain. Son intérieur se divise en quatre chambres, une cuisine et deux salles de bains.
À dix minutes : gares, écoles, boulangeries et supérette. Nationale N249 accessible à 5 km. Nantes à 31 km, Clisson à 0 m, Tillières à 0 m, Saint-Germain-sur-Moine à 0 m, Gétigné à 0 m et Mouzillon à 0 m.
Cette maison de 5 pièces est proposée à l'achat pour 366 000 €.
. Maisons de l'Avenir Orvault est là pour vous accompagner dans tous vos projets immobiliers.
Référence : BLM2346317_2
Maisons de l’Avenir, constructeur de maisons individuelles, propose en collaboration avec ses partenaires fonciers, une sélection de terrains constructibles, selon disponibilité, pour la construction de maisons neuves définies par le constructeur, avec un contrat de construction de maison individuelle, dans le cadre de la loi du 19/12/1990. Prix net, hors frais notariés, d'enregistrement et de publicité foncière
Terrain proposé au prix de : 78 500 €
Maison proposée au prix de : 287 500 €
Etiquette énergie : A. Assurances et garanties du constructeur (RC professionnelle, décennale, dommage ouvrage, Garantie de livraison à prix et délai convenu).


Les informations sur les risques auxquels ce bien est exposé sont disponibles sur le site Géorisques : www.georisques.gouv.fr


Prix
  • Prix total : 366 000 €
  • Prix du modèle de maison : 287 500 €
  • Prix du terrain : 78 500 €

Terrain
  • Surface : 1 146 m²

Maison
  • Surface : 125 m²
  • Pièces : 5
  • Chambres : 4
  • Garage : 1

  • Être rappelé par un conseiller
  • Demander plus d’infos
  • Demande d'information
Saint-Crespin-sur-Moine (49230)

Programmes à proximité

DOLCE VITA
DOLCE VITA
Clisson (44190)

Appartements de 3 à 4 pièces et maisons de 4 pièces
Livraison 2ème trimestre 2026

LE CLOS DU VIGNOBLE
LE CLOS DU VIGNOBLE
Aigrefeuille-sur-Maine (44140)

Appartement de 2 pièces
Livraison 2ème trimestre 2027

Coeur de ville
Coeur de ville
Le Loroux-Bottereau (44430)

Appartements de 2 à 4 pièces
Livraison 2ème trimestre 2027

Le Clos de la Roseraie
Le Clos de la Roseraie
Mortagne-sur-Sèvre (85290)

Appartements de 2 à 4 pièces
Livraison 1er trimestre 2028

COUR MEDICIS - VERTOU
COUR MEDICIS - VERTOU
Vertou (44120)

Appartements de 2 à 4 pièces
Livraison 4ème trimestre 2028

Les Jardins des Mauges
Les Jardins des Mauges
Cholet (49300)

Appartements de 2 à 4 pièces
Livraison 4ème trimestre 2026

Contacter MAISONS DE L'AVENIR pour recevoir plus d'informations

Remplissez le formulaire ci-dessous, vos informations sont transmises directement au constructeur qui vous contactera par email ou par téléphone afin de traiter votre demande. En savoir plus.

Voir tous nos programmes immobiliers neufs à Saint-Crespin-sur-Moine