Maison neuve, 135 m² - Saint-Ciers-Champagne (17520)
292 000 €
Saint-Ciers-Champagne (17520)
Proposée par ALPHA CONSTRUCTIONS – 5 pièces - 4 chambres - terrain 800 m²
|
|
| Alpha Constructions |
- Demande d'information
- Prendre rendez-vous
MAISON À CONSTRUIRE : ceci est une annonce d'une maison neuve à construire.
Situé au coeur d'un village calme et recherché, à seulement quelques minutes de Jonzac et Barbezieux, cette jolie maison à construire de 135m² est idéale pour une famille. Vous allez adorer son cadre paisible, sa vue dégagée, son excellent potentiel et sa proximité des commodités.
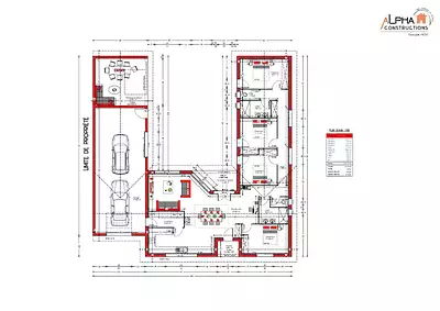
Cette agréable maison est équipé de 4 chambres lumineuses, une pièce agréable à vivre pour recevoir, 2 salles de bains, WC séparé et un garage.
MODE DE CHAUFFAGE ECONOMIQUE. PLAN MODULABLE. PRESTATIONS ET MATERIAUX DE QUALITES. RE2020.
N'hésitez pas à contacter notre agence ALPHA CONSTRUCTIONS Cognac (Tony DAIGRE O6 15 20 16 38) pour plus de renseignements.
Référence : TD2349422
Terrain proposé par un partenaire foncier selon disponibilité dans le cadre d’un projet de construction avec Alpha Constructions. Les descriptions, photographies, surfaces et prix illustrant l’annonce sont fournies à titre indicatif et ne sont pas contractuels. Non soumis au DPE. Différents modèles disponibles.
Les informations sur les risques auxquels ce bien est exposé sont disponibles sur le site Géorisques : www.georisques.gouv.fr
Cette agréable maison est équipé de 4 chambres lumineuses, une pièce agréable à vivre pour recevoir, 2 salles de bains, WC séparé et un garage.
MODE DE CHAUFFAGE ECONOMIQUE. PLAN MODULABLE. PRESTATIONS ET MATERIAUX DE QUALITES. RE2020.
N'hésitez pas à contacter notre agence ALPHA CONSTRUCTIONS Cognac (Tony DAIGRE O6 15 20 16 38) pour plus de renseignements.
Référence : TD2349422
Terrain proposé par un partenaire foncier selon disponibilité dans le cadre d’un projet de construction avec Alpha Constructions. Les descriptions, photographies, surfaces et prix illustrant l’annonce sont fournies à titre indicatif et ne sont pas contractuels. Non soumis au DPE. Différents modèles disponibles.
Les informations sur les risques auxquels ce bien est exposé sont disponibles sur le site Géorisques : www.georisques.gouv.fr
- Prix
-
- Prix total : 292 000 €
- Prix du modèle de maison : N.C.
- Prix du terrain : N.C.
- Terrain
-
- Surface : 800 m²
- Maison
-
- Surface : 135 m²
- Pièces : 5
- Chambres : 4
- Garage : 1
- Être rappelé par un conseiller
- Demander plus d’infos
- Demande d'information
Saint-Ciers-Champagne (17520)
Maisons à proximité
Maison neuve, 80 m²
Saint-Ciers-Champagne (17520)
Saint-Ciers-Champagne (17520)
Maison de 4 pièces
Maison neuve, 90 m²
Saint-Germain-de-Vibrac (17500)
Saint-Germain-de-Vibrac (17500)
Maison de 4 pièces
Maison neuve, 165 m²
Saint-Maigrin (17520)
Saint-Maigrin (17520)
Maison de 6 pièces
Maison neuve, 142 m²
Brie-sous-Archiac (17520)
Brie-sous-Archiac (17520)
Maison de 7 pièces
Maison neuve, 108 m²
Guimps (16300)
Guimps (16300)
Maison de 5 pièces
Maison neuve, 96 m²
Guimps (16300)
Guimps (16300)
Maison de 5 pièces
Programmes à proximité
Contacter ALPHA CONSTRUCTIONS pour recevoir plus d'informations
Remplissez le formulaire ci-dessous, vos informations sont transmises directement au constructeur qui vous contactera par email ou par téléphone afin de traiter votre demande. En savoir plus.
Voir tous nos programmes immobiliers neufs à Saint-Ciers-Champagne