Maison neuve, 120 m² - Saint-Août (36120)
276 500 €
Saint-Août (36120)
Proposée par MAISONS BRUNO PETIT MJB – 6 pièces - 4 chambres - terrain 1 069 m²
|
|
| MAISONS BRUNO PETIT MJB |
| (160 avis) |
- Demande d'information
- Prendre rendez-vous
MAISON À CONSTRUIRE : ceci est une annonce d'une maison neuve à construire.
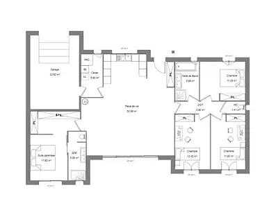
Maison de 6 pièces (120 m²) à vendre à Saint-Août
Emplacement privilégié - À découvrir à Saint-Août (36120) : maison neuve 6 pièces à vendre. Surface de 120 m² sur 1 069 m² de terrain. Conçue de plain-pied, elle comporte quatre chambres, une cuisine et deux salles de bains.
À proximité : École Primaire les Marronniers, crèches, tennis, commerces, boulangerie, épicerie et boucherie-charcuterie. Marché Place du Champ de foire le mardi matin. Châteauroux à 23 km.
Cette maison de 6 pièces est à vendre pour la somme de 276 500 €.
Prenez contact avec Kevin GRIMAUD (06-22-14-89-67) pour tout renseignement sur la maison ou sur les modalités de vente.
Référence : KG2302925_7
Terrain proposé par un partenaire foncier selon disponibilités et autorisation de publicité au prix de 22 000 €. Hors droit d'enregistrement et frais de notaire. Terrain + Maison proposés au prix de 254 500 € (Hors branchements et raccordements, papiers peints, peintures, revêtement de sol dans les chambres. Tarif modifiable sans préavis). Etiquette énergie : A. Différents modèles disponibles pour ce terrain. Assurances et garanties du constructeur (RC professionnelle, décennale, dommage ouvrage, garantie de remboursement de l'acompte, livraison à prix et délai convenu) : https://www.maisons-brunopetit.fr/mentions-legales/.
Les informations sur les risques auxquels ce bien est exposé sont disponibles sur le site Géorisques : www.georisques.gouv.fr
Emplacement privilégié - À découvrir à Saint-Août (36120) : maison neuve 6 pièces à vendre. Surface de 120 m² sur 1 069 m² de terrain. Conçue de plain-pied, elle comporte quatre chambres, une cuisine et deux salles de bains.
À proximité : École Primaire les Marronniers, crèches, tennis, commerces, boulangerie, épicerie et boucherie-charcuterie. Marché Place du Champ de foire le mardi matin. Châteauroux à 23 km.
Cette maison de 6 pièces est à vendre pour la somme de 276 500 €.
Prenez contact avec Kevin GRIMAUD (06-22-14-89-67) pour tout renseignement sur la maison ou sur les modalités de vente.
Référence : KG2302925_7
Terrain proposé par un partenaire foncier selon disponibilités et autorisation de publicité au prix de 22 000 €. Hors droit d'enregistrement et frais de notaire. Terrain + Maison proposés au prix de 254 500 € (Hors branchements et raccordements, papiers peints, peintures, revêtement de sol dans les chambres. Tarif modifiable sans préavis). Etiquette énergie : A. Différents modèles disponibles pour ce terrain. Assurances et garanties du constructeur (RC professionnelle, décennale, dommage ouvrage, garantie de remboursement de l'acompte, livraison à prix et délai convenu) : https://www.maisons-brunopetit.fr/mentions-legales/.
Les informations sur les risques auxquels ce bien est exposé sont disponibles sur le site Géorisques : www.georisques.gouv.fr
- Prix
-
- Prix total : 276 500 €
- Prix du modèle de maison : 254 500 €
- Prix du terrain : 22 000 €
- Terrain
-
- Surface : 1 069 m²
- Maison
-
- Surface : 120 m²
- Pièces : 6
- Chambres : 4
- Garage : 1
- Être rappelé par un conseiller
- Demander plus d’infos
- Demande d'information
Saint-Août (36120)
Maisons à proximité
Maison neuve, 85 m²
Saint-Août (36120)
Saint-Août (36120)
Maison de 4 pièces
Maison neuve, 85 m²
Saint-Août (36120)
Saint-Août (36120)
Maison de 4 pièces
Maison neuve, 105 m²
Saint-Août (36120)
Saint-Août (36120)
Maison de 4 pièces
Maison neuve, 90 m²
Saint-Août (36120)
Saint-Août (36120)
Maison de 4 pièces
Maison neuve, 117 m²
Saint-Août (36120)
Saint-Août (36120)
Maison de 5 pièces
Maison neuve, 110 m²
Saint-Août (36120)
Saint-Août (36120)
Maison de 4 pièces
Programmes à proximité
Contacter MAISONS BRUNO PETIT MJB pour recevoir plus d'informations
Remplissez le formulaire ci-dessous, vos informations sont transmises directement au constructeur qui vous contactera par email ou par téléphone afin de traiter votre demande. En savoir plus.