Maison neuve, 90 m² - Saint-Amand-Montrond (18200)
228 800 €
Saint-Amand-Montrond (18200)
Proposée par MAISONS BRUNO PETIT MJB – 3 pièces - 2 chambres - terrain 1 379 m²
|
|
| MAISONS BRUNO PETIT MJB |
| (103 avis) |
- Demande d'information
- Prendre rendez-vous
MAISON À CONSTRUIRE : ceci est une annonce d'une maison neuve à construire.
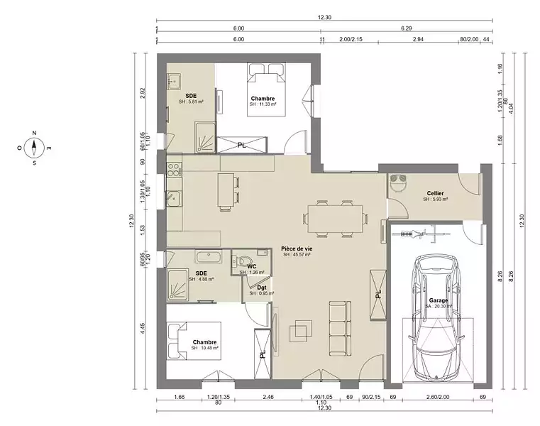
VENTE : maison F3 (90 m²) à Saint-Amand-Montrond
Idéalement située - À découvrir à Saint-Amand-Montrond (18200) : maison neuve 3 pièces à vendre, 90 m² de surface et 1 379 m² de terrain. Son intérieur propose deux chambres, une cuisine et deux salles de bains.
À dix minutes : gare (Saint-Amand-Montrond-Orval), écoles, boulangeries, commerces, supermarchés, poissonnerie et bureau de poste. Marché Cours Manuel hebdomadaire. Autoroute A71 accessible à 4 km.
Cette maison de 3 pièces est à vendre pour la somme de 228 800 €.
. Donnez vie à vos projets immobiliers avec Maisons Bruno Petit MJB Bourges.
Référence : JL2311927_2
Terrain proposé par un partenaire foncier selon disponibilités et autorisation de publicité au prix de 35 000 €. Hors droit d'enregistrement et frais de notaire. Maison proposée, avec un contrat de construction de maison individuelle, dans le cadre de la loi du 19/12/1990, au prix de 193 800 € (Hors branchements et raccordements, papiers peints, peintures, revêtement de sol dans les chambres, qui sont chiffrés dans les travaux qui restent à charge du client. Tarif modifiable sans préavis). Étiquette énergie : A. Différents modèles disponibles pour ce terrain. Assurances et garanties du constructeur comprises (RC professionnelle, décennale, dommage ouvrage).
Les informations sur les risques auxquels ce bien est exposé sont disponibles sur le site Géorisques : www.georisques.gouv.fr
Idéalement située - À découvrir à Saint-Amand-Montrond (18200) : maison neuve 3 pièces à vendre, 90 m² de surface et 1 379 m² de terrain. Son intérieur propose deux chambres, une cuisine et deux salles de bains.
À dix minutes : gare (Saint-Amand-Montrond-Orval), écoles, boulangeries, commerces, supermarchés, poissonnerie et bureau de poste. Marché Cours Manuel hebdomadaire. Autoroute A71 accessible à 4 km.
Cette maison de 3 pièces est à vendre pour la somme de 228 800 €.
. Donnez vie à vos projets immobiliers avec Maisons Bruno Petit MJB Bourges.
Référence : JL2311927_2
Terrain proposé par un partenaire foncier selon disponibilités et autorisation de publicité au prix de 35 000 €. Hors droit d'enregistrement et frais de notaire. Maison proposée, avec un contrat de construction de maison individuelle, dans le cadre de la loi du 19/12/1990, au prix de 193 800 € (Hors branchements et raccordements, papiers peints, peintures, revêtement de sol dans les chambres, qui sont chiffrés dans les travaux qui restent à charge du client. Tarif modifiable sans préavis). Étiquette énergie : A. Différents modèles disponibles pour ce terrain. Assurances et garanties du constructeur comprises (RC professionnelle, décennale, dommage ouvrage).
Les informations sur les risques auxquels ce bien est exposé sont disponibles sur le site Géorisques : www.georisques.gouv.fr
- Prix
-
- Prix total : 228 800 €
- Prix du modèle de maison : 193 800 €
- Prix du terrain : 35 000 €
- Terrain
-
- Surface : 1 379 m²
- Maison
-
- Surface : 90 m²
- Pièces : 3
- Chambres : 2
- Garage : 1
- Être rappelé par un conseiller
- Demander plus d’infos
- Demande d'information
Saint-Amand-Montrond (18200)
Maisons à proximité
Maison neuve, 170 m²
Saint-Amand-Montrond (18200)
Saint-Amand-Montrond (18200)
Maison de 7 pièces
Maison neuve, 60 m²
Saint-Amand-Montrond (18200)
Saint-Amand-Montrond (18200)
Maison de 3 pièces
Maison neuve, 120 m²
Saint-Amand-Montrond (18200)
Saint-Amand-Montrond (18200)
Maison de 4 pièces
Maison neuve, 105 m²
Saint-Amand-Montrond (18200)
Saint-Amand-Montrond (18200)
Maison de 5 pièces
Maison neuve, 110 m²
Saint-Amand-Montrond (18200)
Saint-Amand-Montrond (18200)
Maison de 4 pièces
Maison neuve, 130 m²
Saint-Amand-Montrond (18200)
Saint-Amand-Montrond (18200)
Maison de 4 pièces
Programmes à proximité
Contacter MAISONS BRUNO PETIT MJB pour recevoir plus d'informations
Remplissez le formulaire ci-dessous, vos informations sont transmises directement au constructeur qui vous contactera par email ou par téléphone afin de traiter votre demande. En savoir plus.
Voir tous nos programmes immobiliers neufs à Saint-Amand-Montrond