Maison neuve, 80 m² - Saillac (19500)
196 546 €
Saillac (19500)
Proposée par BABEAU SEGUIN AGENCE DE BRIVE LA GAILLARDE – CORRE – 3 pièces - 2 chambres - terrain 3 843 m²
|
|
| Babeau Seguin Agence de Brive la Gaillarde – Corre |
- Demande d'information
- Prendre rendez-vous
MAISON À CONSTRUIRE : ceci est une annonce d'une maison neuve à construire.
Sur ce terrain, nous vous proposons cette maison neuve, la Sauvetière, conçue par Babeau-Seguin, constructeur reconnu pour offrir le meilleur rapport qualité/prix du marché.
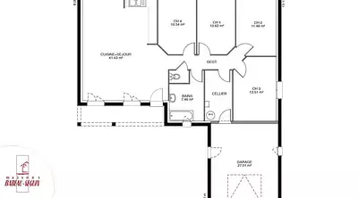
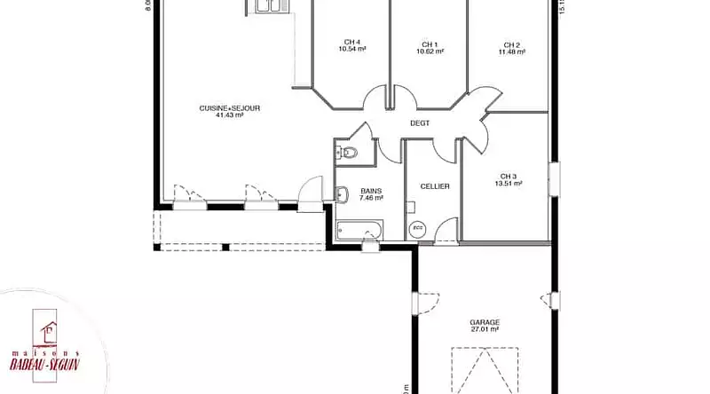
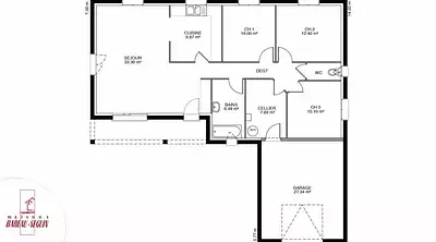
La Sauvetière est sans aucun doute à classer dans la catégorie maison moderne de notre catalogue. Cette maison plain-pied traditionnelle de 80 m² vous séduira par son audacieux plan en forme de L et ses touches résolument modernes. Elle dispose de 3 pièces, dont 2 chambres confortables, et d'un vaste séjour lumineux.
L'architecture en L de la Sauvetière abrite un garage accolé, offrant un accès direct à la maison. Vous avez le choix entre une toiture à 2 pans ou à 4 pans, selon vos préférences esthétiques.
Cette maison neuve est basse consommation et conforme à la RE2020, garantissant des performances énergétiques optimales et un confort de vie inégalé.
Ne manquez pas cette opportunité unique de devenir propriétaire d'une maison moderne, économe en énergie et parfaitement adaptée à vos besoins. Contactez-nous dès maintenant pour plus d'informations et pour planifier une visite du terrain.
Référence : 90800
Les informations sur les risques auxquels ce bien est exposé sont disponibles sur le site Géorisques : www.georisques.gouv.fr
La Sauvetière est sans aucun doute à classer dans la catégorie maison moderne de notre catalogue. Cette maison plain-pied traditionnelle de 80 m² vous séduira par son audacieux plan en forme de L et ses touches résolument modernes. Elle dispose de 3 pièces, dont 2 chambres confortables, et d'un vaste séjour lumineux.
L'architecture en L de la Sauvetière abrite un garage accolé, offrant un accès direct à la maison. Vous avez le choix entre une toiture à 2 pans ou à 4 pans, selon vos préférences esthétiques.
Cette maison neuve est basse consommation et conforme à la RE2020, garantissant des performances énergétiques optimales et un confort de vie inégalé.
Ne manquez pas cette opportunité unique de devenir propriétaire d'une maison moderne, économe en énergie et parfaitement adaptée à vos besoins. Contactez-nous dès maintenant pour plus d'informations et pour planifier une visite du terrain.
Référence : 90800
Les informations sur les risques auxquels ce bien est exposé sont disponibles sur le site Géorisques : www.georisques.gouv.fr
- Prix
-
- Prix total : 196 546 €
- Prix du modèle de maison : 150 546 €
- Prix du terrain : 46 000 €
- Terrain
-
- Surface : 3 843 m²
- Maison
-
- Surface : 80 m²
- Pièces : 3
- Chambres : 2
- Être rappelé par un conseiller
- Demander plus d’infos
- Demande d'information
Saillac (19500)
Maisons à proximité
Maison neuve, 73 m²
Noailhac (19500)
Noailhac (19500)
Maison de 4 pièces
Maison neuve, 85 m²
Jugeals-Nazareth (19500)
Jugeals-Nazareth (19500)
Maison de 4 pièces
Maison neuve, 79 m²
Jugeals-Nazareth (19500)
Jugeals-Nazareth (19500)
Maison de 4 pièces
Maison neuve, 79 m²
Jugeals-Nazareth (19500)
Jugeals-Nazareth (19500)
Maison de 4 pièces
Maison neuve, 100 m²
Nespouls (19600)
Nespouls (19600)
Maison de 5 pièces
Maison neuve, 86 m²
Nespouls (19600)
Nespouls (19600)
Maison de 4 pièces
Programmes à proximité
Gen'Eze
Brive-la-Gaillarde (19100)
Brive-la-Gaillarde (19100)
Appartements de 2 à 4 pièces
Livraison 1er trimestre 2028
RÉSIDENCE PARENTH'EZE
Brive-la-Gaillarde (19100)
Brive-la-Gaillarde (19100)
Appartement de 2 pièces
Livraison 4ème trimestre 2026
LE CLOS MERIDIEN
Brive-la-Gaillarde (19100)
Brive-la-Gaillarde (19100)
Appartements de 2 à 5 pièces
Livraison 2ème trimestre 2027
Contacter BABEAU SEGUIN AGENCE DE BRIVE LA GAILLARDE – CORRE pour recevoir plus d'informations
Remplissez le formulaire ci-dessous, vos informations sont transmises directement au constructeur qui vous contactera par email ou par téléphone afin de traiter votre demande. En savoir plus.