Maison neuve, 58 m² - Royan (17200)

208 900 €
Royan (17200)

Proposée par BERMAX – 2 pièces - 1 chambre - terrain 255 m²

BERMAX
BERMAX
  • Demande d'information
MAISON À CONSTRUIRE : ceci est une annonce d'une maison neuve à construire.
À Meschers-sur-Gironde, dans un environnement recherché entre le centre-bourg et la forêt, laissez-vous séduire par ce projet de maison à construire RE 2020 de 58 m² de plain-pied.
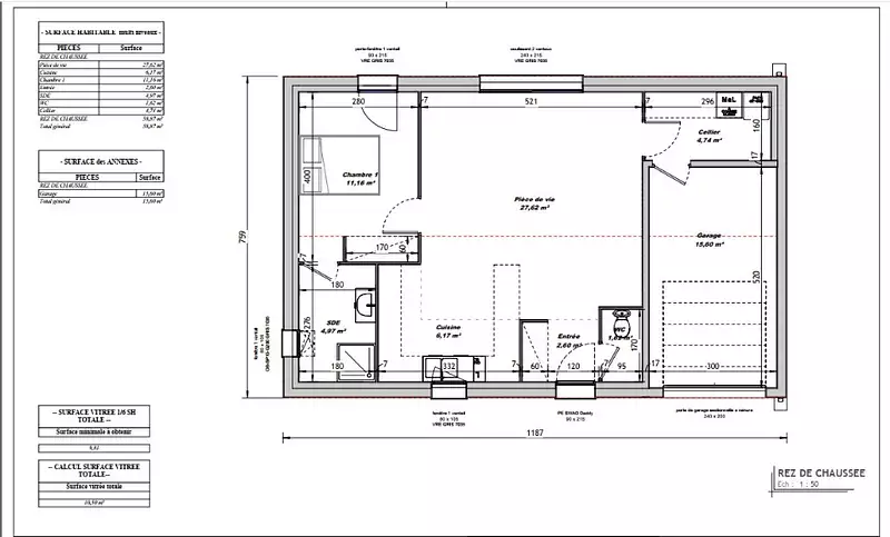
Elle se compose d'une entrée avec placard, d'une pièce de vie lumineuse ouverte sur le jardin par une large baie vitrée, 1 chambre, d'une salle d'eau, de WC séparés ainsi que d'un cellier. Un garage accolé de 18 m² complète ce projet.
Un projet fonctionnel et lumineux, dans un cadre de vie privilégié.
📞 Contactez Pierre-Emmanuel HÜE (Bermax Construction - Vaux-sur-Mer) au O6.25.78.28.20 pour tout renseignement complémentaire.
Référence : PEH2413429_2
Terrain proposé par un partenaire foncier selon disponibilités et autorisation de publicité au prix de 81 600 €. Hors droit d'enregistrement et frais de notaire. Terrain + Maison proposés au prix de 127 300 € (Hors branchements et raccordements, papiers peints, peintures, revêtement de sol dans les chambres. Tarif modifiable sans préavis). Etiquette énergie : A. Différents modèles disponibles pour ce terrain. Assurances et garanties du constructeur (RC professionnelle, décennale, dommage ouvrage, garantie de remboursement de l'acompte, livraison à prix et délai convenu) : https://www.bermax-constructions.fr/mentions-legales/.

Les informations sur les risques auxquels ce bien est exposé sont disponibles sur le site Géorisques : www.georisques.gouv.fr


Prix
  • Prix total : 208 900 €
  • Prix du modèle de maison : 127 300 €
  • Prix du terrain : 81 600 €

Terrain
  • Surface : 255 m²

Maison
  • Surface : 58 m²
  • Pièces : 2
  • Chambre : 1
  • Garage : 1

  • Être rappelé par un conseiller
  • Demander plus d’infos
  • Demande d'information
Royan (17200)

Maisons à proximité

L'Éclat Marin
L'Éclat Marin
Royan (17200)

Appartements de 2 à 4 pièces et maisons de 4 pièces

LES HAUTS DE ROYAN MAISONS
LES HAUTS DE ROYAN MAISONS
Royan (17200)

Maison de 4 pièces
Livraison 2ème trimestre 2026

Programmes à proximité

L'Éclat Marin
L'Éclat Marin
Royan (17200)

Appartements de 2 à 4 pièces et maisons de 4 pièces

Horizon
Horizon
Royan (17200)

Appartements de 1 à 4 pièces
Livraison 3ème trimestre 2028

Prochainement à Vaux-sur-Mer
Prochainement à Vaux-sur-Mer
Vaux-sur-Mer (17640)

Appartements de 2 à 4 pièces
Livraison 3ème trimestre 2028

OPHELIA
OPHELIA
Saint-Georges-de-Didonne (17110)

Appartement de 3 pièces
Livraison 1er trimestre 2026

Prochainement à Soulac-sur-Mer
Prochainement à Soulac-sur-Mer
Soulac-sur-Mer (33780)

Appartements de 2 à 4 pièces
Livraison 2ème trimestre 2028

Mareva
Mareva
La Tremblade (17390)

Appartements de 2 à 3 pièces
Livraison 2ème trimestre 2028

Contacter BERMAX pour recevoir plus d'informations

Remplissez le formulaire ci-dessous, vos informations sont transmises directement au constructeur qui vous contactera par email ou par téléphone afin de traiter votre demande. En savoir plus.

Voir tous nos programmes immobiliers neufs à Royan