Maison neuve, 102 m² - Rosières (43800)
230 100 €
Rosières (43800)
Proposée par MAISON ET JARDIN – 5 pièces - 4 chambres - terrain 1 430 m²
|
|
| Maison et Jardin |
- Demande d'information
- Prendre rendez-vous
MAISON À CONSTRUIRE : ceci est une annonce d'une maison neuve à construire.
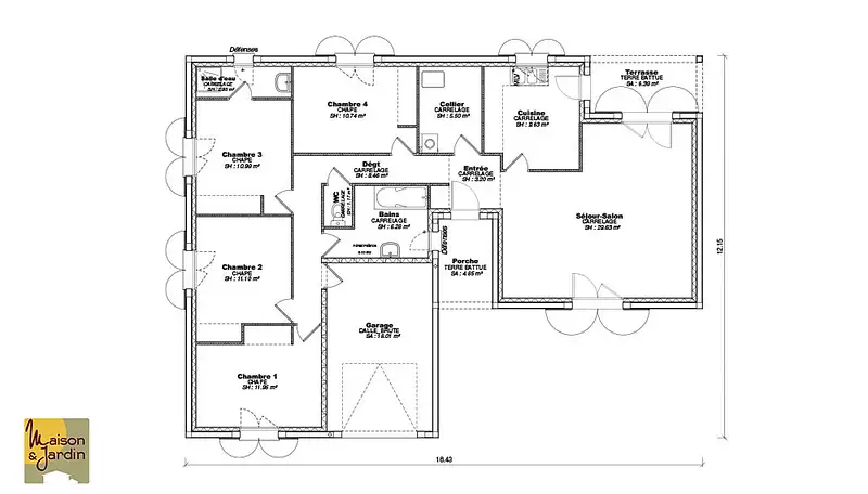
Nous vous proposons cette maison neuve, baptisée Eolia, un modèle d'habitation qui allie élégance et fonctionnalité dans un design en L distinctif. Avec une surface habitable de 102 m², cette maison est conçue pour offrir confort et bien-être à ses résidents. Elle dispose de 4 chambres spacieuses et est composée de 4 pièces bien agencées, promettant ainsi un cadre de vie idéal pour une famille.
L'Eolia se distingue par son architecture moderne avec un choix entre un toit à 2 ou 4 pans et intègre un garage, fusionnant esthétique et praticité. La conception en L de la maison n'est pas seulement un choix esthétique mais aussi fonctionnel, offrant une séparation naturelle entre les espaces de vie et les zones de nuit, tout en maximisant l'exposition à la lumière naturelle.
L'aspect le plus séduisant de l'Eolia réside dans sa grande ouverture vers l'extérieur. La possibilité d'aménager une vaste terrasse est une invitation à profiter des jours ensoleillés et des soirées douces, faisant de cette maison le lieu parfait pour des moments conviviaux en famille ou entre amis.
Construite dans le respect des normes de la RE2020, cette maison basse consommation est un choix responsable qui témoigne de votre engagement envers l'environnement. Elle est équipée des dernières innovations en matière d'isolation et de systèmes énergétiques, garantissant ainsi une réduction significative de vos factures énergétiques tout en offrant un confort optimal en toutes saisons.
L'Eolia est une maison qui répond aux attentes des plus exigeants, alliant design moderne, fonctionnalité et performance énergétique. C'est une opportunité unique de faire construire votre future maison, un espace pensé pour le bien-être de toute la famille. Ne laissez pas passer cette chance de vivre dans une maison qui allie beauté, confort et respect de l'environnement.
Référence : 13610
Les informations sur les risques auxquels ce bien est exposé sont disponibles sur le site Géorisques : www.georisques.gouv.fr
L'Eolia se distingue par son architecture moderne avec un choix entre un toit à 2 ou 4 pans et intègre un garage, fusionnant esthétique et praticité. La conception en L de la maison n'est pas seulement un choix esthétique mais aussi fonctionnel, offrant une séparation naturelle entre les espaces de vie et les zones de nuit, tout en maximisant l'exposition à la lumière naturelle.
L'aspect le plus séduisant de l'Eolia réside dans sa grande ouverture vers l'extérieur. La possibilité d'aménager une vaste terrasse est une invitation à profiter des jours ensoleillés et des soirées douces, faisant de cette maison le lieu parfait pour des moments conviviaux en famille ou entre amis.
Construite dans le respect des normes de la RE2020, cette maison basse consommation est un choix responsable qui témoigne de votre engagement envers l'environnement. Elle est équipée des dernières innovations en matière d'isolation et de systèmes énergétiques, garantissant ainsi une réduction significative de vos factures énergétiques tout en offrant un confort optimal en toutes saisons.
L'Eolia est une maison qui répond aux attentes des plus exigeants, alliant design moderne, fonctionnalité et performance énergétique. C'est une opportunité unique de faire construire votre future maison, un espace pensé pour le bien-être de toute la famille. Ne laissez pas passer cette chance de vivre dans une maison qui allie beauté, confort et respect de l'environnement.
Référence : 13610
Les informations sur les risques auxquels ce bien est exposé sont disponibles sur le site Géorisques : www.georisques.gouv.fr
- Prix
-
- Prix total : 230 100 €
- Prix du modèle de maison : 175 100 €
- Prix du terrain : 55 000 €
- Terrain
-
- Surface : 1 430 m²
- Maison
-
- Surface : 102 m²
- Pièces : 5
- Chambres : 4
- Être rappelé par un conseiller
- Demander plus d’infos
- Demande d'information
Rosières (43800)
Maisons à proximité
Maison neuve, 102 m²
Rosières (43800)
Rosières (43800)
Maison de 5 pièces
Maison neuve, 85 m²
Saint-Vincent (43800)
Saint-Vincent (43800)
Maison de 4 pièces
Maison neuve, 75 m²
Saint-Vincent (43800)
Saint-Vincent (43800)
Maison de 4 pièces
Maison neuve, 80 m²
Saint-Vincent (43800)
Saint-Vincent (43800)
Maison de 4 pièces
Maison neuve, 91 m²
Saint-Vincent (43800)
Saint-Vincent (43800)
Maison de 5 pièces
Maison neuve, 89 m²
Lavoûte-sur-Loire (43800)
Lavoûte-sur-Loire (43800)
Maison de 4 pièces
Programmes à proximité
Contacter MAISON ET JARDIN pour recevoir plus d'informations
Remplissez le formulaire ci-dessous, vos informations sont transmises directement au constructeur qui vous contactera par email ou par téléphone afin de traiter votre demande. En savoir plus.