Maison neuve, 83 m² - Roquebrune-sur-Argens (83520)

375 000 €
Roquebrune-sur-Argens (83520)

Proposée par MAISONS FRANCE CONFORT – 4 pièces - 3 chambres - terrain 400 m²

MAISONS FRANCE CONFORT
MAISONS FRANCE CONFORT
(244 avis)
  • Demande d'information
MAISON À CONSTRUIRE : ceci est une annonce d'une maison neuve à construire.
Projet de construction à Roquebrune sur Argens
Venez découvrir cette belle villa neuve très lumineuse qui vous séduira par son agencement optimal, et ses volumes.
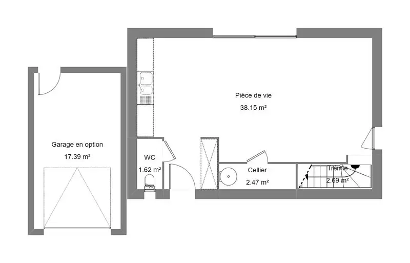
Elle dispose au rez de chaussée d'un hall d'entrée, une pièce de vie de 38m² avec cuisine us, et coté pratique vous y trouverez également un cellier.
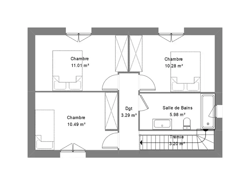
A l'étage, un espace nuit avec 3 chambres et une salle de bain.
De nombreux rangements et de belles prestations tels que les volets roulants motorisés, la climatisation viennent compléter cette villa.
L'ensemble sur un terrain de 400m² bénéficiant d'une exposition plein sud et d'un environnement de qualité. Possibilité d'ajouter garage.
Votre projet clefs en mains à 375 000 euros incluant votre villa neuve, le terrain, ainsi que le coût des raccordements.
Pour tous renseignements et une étude personnalisée, contacter Véronique CHAUVET au O6.28.31.67.99.
Maisons France Confort constructeur de maisons individuelles leader en France. Entreprise fondée en 1919.
Référence : VC2304741_1
Terrain proposé par un partenaire foncier selon disponibilités et autorisation de publicité au prix de 180 000 €. Hors droit d'enregistrement et frais de notaire. Terrain + Maison proposés au prix de 195 000 € (Hors branchements et raccordements, papiers peints, peintures, revêtement de sol dans les chambres. Tarif modifiable sans préavis). Etiquette énergie : A. Différents modèles disponibles pour ce terrain. Assurances et garanties du constructeur (RC professionnelle, décennale, dommage ouvrage, garantie de remboursement de l'acompte, livraison à prix et délai convenu) : https://www.maisons-france-confort.fr/mentions-legales/. HEXAOM Services est enregistré auprès de l'ORIAS en tant que Courtier en financement, Niveau 1, sous le numéro 14001345.

Les informations sur les risques auxquels ce bien est exposé sont disponibles sur le site Géorisques : www.georisques.gouv.fr


Prix
  • Prix total : 375 000 €
  • Prix du modèle de maison : 195 000 €
  • Prix du terrain : 180 000 €

Terrain
  • Surface : 400 m²

Maison
  • Surface : 83 m²
  • Pièces : 4
  • Chambres : 3
  • Garage : 1

  • Être rappelé par un conseiller
  • Demander plus d’infos
  • Demande d'information
Roquebrune-sur-Argens (83520)

Programmes à proximité

TERRA ESTRELLA
TERRA ESTRELLA
Puget-sur-Argens (83480)

Appartements de 2 à 4 pièces et maison de 4 pièces
Livraison 4ème trimestre 2027

Le Patio des Lys
Le Patio des Lys
Le Muy (83490)

Appartements de 3 à 4 pièces
Livraison 2ème trimestre 2027

DOMAINE ROSEA APPARTEMENTS
DOMAINE ROSEA APPARTEMENTS
Fréjus (83600)

Appartements de 2 à 3 pièces
Livraison 4ème trimestre 2027

T4 TERRASSE FREJUS
T4 TERRASSE FREJUS
Fréjus (83600)

Appartement de 4 pièces
Livraison 1er trimestre 2026

DOLCE MIA
DOLCE MIA
Fréjus (83600)

Appartements de 2 à 3 pièces
Livraison 1er trimestre 2026

CELEST
CELEST
Fréjus (83600)

Appartements de 2 à 3 pièces
Livraison 4ème trimestre 2026

Contacter MAISONS FRANCE CONFORT pour recevoir plus d'informations

Remplissez le formulaire ci-dessous, vos informations sont transmises directement au constructeur qui vous contactera par email ou par téléphone afin de traiter votre demande. En savoir plus.

Voir tous nos programmes immobiliers neufs à Roquebrune-sur-Argens