Maison neuve, 98 m² - Roquebrune-sur-Argens (83520)

396 000 €
Roquebrune-sur-Argens (83520)

Proposée par MAISONS FRANCE CONFORT – 4 pièces - 3 chambres - terrain 400 m²

MAISONS FRANCE CONFORT
MAISONS FRANCE CONFORT
(244 avis)
  • Demande d'information
MAISON À CONSTRUIRE : ceci est une annonce d'une maison neuve à construire.
Projet de construction à Roquebrune sur Argens
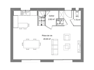
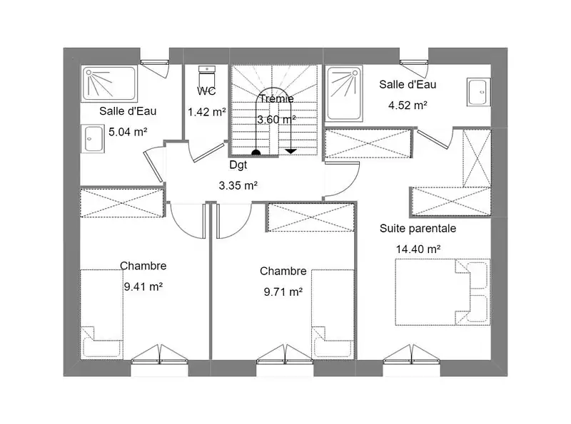
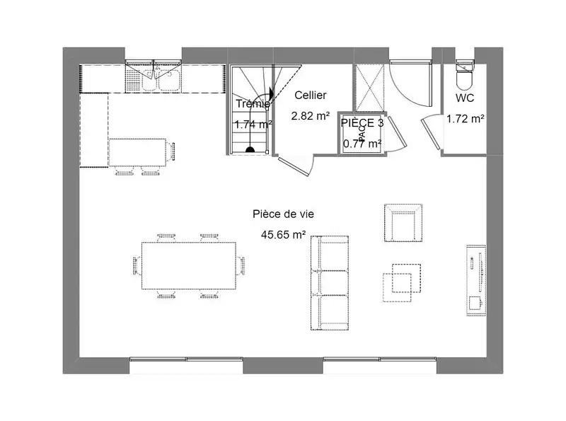
Belle villa neuve composée d'un bel espace de vie avec une cuisine ouverte, un cellier, 3 grandes chambres dont une suite parentale avec sa salle d'eau privative et son dressing. Nombreux espaces de rangements.
Villa très lumineuse répondant à la norme RE2020 offrant un vrai confort de vie avec des prestations de qualité : climatisation, volets roulants électriques, pack domotique, isolation renforcée....
Un garage pourra venir compléter ce bien.
L'ensemble sur un terrain plat de 400m² idéalement situé dans un quartier résidentiel bénéficiant d'une exposition plein sud.
Votre projet à 396 000 euros incluant la maison, le terrain et les frais de raccordements.
Pour tous renseignements et une étude personnalisée, contactez Véronique CHAUVET au O6.28.31.67.99.
Maisons France Confort, constructeur de maisons individuelles leader en France. Entreprise familiale fondée en 1919.
Référence : VC2304741_2
Terrain proposé par un partenaire foncier selon disponibilités et autorisation de publicité au prix de 180 000 €. Hors droit d'enregistrement et frais de notaire. Terrain + Maison proposés au prix de 216 000 € (Hors branchements et raccordements, papiers peints, peintures, revêtement de sol dans les chambres. Tarif modifiable sans préavis). Etiquette énergie : A. Différents modèles disponibles pour ce terrain. Assurances et garanties du constructeur (RC professionnelle, décennale, dommage ouvrage, garantie de remboursement de l'acompte, livraison à prix et délai convenu) : https://www.maisons-france-confort.fr/mentions-legales/. HEXAOM Services est enregistré auprès de l'ORIAS en tant que Courtier en financement, Niveau 1, sous le numéro 14001345.

Les informations sur les risques auxquels ce bien est exposé sont disponibles sur le site Géorisques : www.georisques.gouv.fr


Prix
  • Prix total : 396 000 €
  • Prix du modèle de maison : 216 000 €
  • Prix du terrain : 180 000 €

Terrain
  • Surface : 400 m²

Maison
  • Surface : 98 m²
  • Pièces : 4
  • Chambres : 3
  • Garage : 1

  • Être rappelé par un conseiller
  • Demander plus d’infos
  • Demande d'information
Roquebrune-sur-Argens (83520)

Programmes à proximité

TERRA ESTRELLA
TERRA ESTRELLA
Puget-sur-Argens (83480)

Appartements de 2 à 4 pièces et maison de 4 pièces
Livraison 4ème trimestre 2027

Le Patio des Lys
Le Patio des Lys
Le Muy (83490)

Appartements de 3 à 4 pièces
Livraison 2ème trimestre 2027

DOMAINE ROSEA APPARTEMENTS
DOMAINE ROSEA APPARTEMENTS
Fréjus (83600)

Appartements de 2 à 3 pièces
Livraison 4ème trimestre 2027

T4 TERRASSE FREJUS
T4 TERRASSE FREJUS
Fréjus (83600)

Appartement de 4 pièces
Livraison 1er trimestre 2026

DOLCE MIA
DOLCE MIA
Fréjus (83600)

Appartements de 2 à 3 pièces
Livraison 1er trimestre 2026

CELEST
CELEST
Fréjus (83600)

Appartements de 2 à 3 pièces
Livraison 4ème trimestre 2026

Contacter MAISONS FRANCE CONFORT pour recevoir plus d'informations

Remplissez le formulaire ci-dessous, vos informations sont transmises directement au constructeur qui vous contactera par email ou par téléphone afin de traiter votre demande. En savoir plus.

Voir tous nos programmes immobiliers neufs à Roquebrune-sur-Argens