Maison neuve, 110 m² - Roncourt (57860)

314 762 €
Roncourt (57860)

Proposée par MAISONS VESTA AGENCE DE METZ (57) – 5 pièces - 4 chambres - terrain 505 m²

Maisons Vesta Agence de Metz (57)
Maisons Vesta Agence de Metz (57)
  • Demande d'information
MAISON À CONSTRUIRE : ceci est une annonce d'une maison neuve à construire.
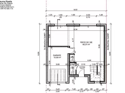
Nous vous proposons cette maison neuve, baptisée BAHAMAS, un modèle emblématique qui a su séduire de nombreuses familles depuis plus de trois décennies. Conçue pour répondre aux attentes des plus exigeants, cette demeure de 110 m² allie fonctionnalité et esthétique moderne, avec un plan en L et un garage accolé, offrant ainsi un cadre de vie idéal.
Dès l'entrée, découvrez un espace accueillant avec une entrée indépendante menant à un salon/séjour spacieux bénéficiant d'une hauteur sous plafond impressionnante, et d'une cuisine semi-ouverte qui promet de beaux moments de partage en famille ou entre amis. Le design intérieur est pensé pour maximiser la lumière naturelle, notamment grâce au vide sur séjour, créant une atmosphère chaleureuse et accueillante. Un WC indépendant et un grand garage, offrant de multiples possibilités d'aménagement, complètent le rez-de-chaussée.
L'étage est dédié à l'intimité et au repos, avec quatre chambres de 10 à 13 m² chacune, permettant à chaque membre de la famille de bénéficier de son propre espace. Que vous ayez une grande famille ou que vous aimiez recevoir, ces chambres répondront à toutes vos attentes. La salle de bains, spacieuse de plus de 8 m², est conçue pour faciliter le quotidien des familles actives, et est complétée par un second WC indépendant.
Cette maison se distingue également par son enduit bi-ton, une des options les plus plébiscitées, qui lui confère une allure moderne et élégante. Mais ce qui rend véritablement ce modèle BAHAMAS exceptionnel, c'est son engagement envers l'environnement : cette maison est basse consommation et conforme à la norme RE2020, garantissant ainsi une efficacité énergétique optimale et un confort de vie inégalé tout au long de l'année.
Choisir la maison BAHAMAS, c'est opter pour un habitat durable, conçu avec soin pour répondre aux besoins de votre famille aujourd'hui et demain. Ne manquez pas l'opportunité de construire la maison de vos rêves, un lieu où chaque jour sera synonyme de b
Référence : 8238

Les informations sur les risques auxquels ce bien est exposé sont disponibles sur le site Géorisques : www.georisques.gouv.fr


Prix
  • Prix total : 314 762 €
  • Prix du modèle de maison : 198 559 €
  • Prix du terrain : 116 203 €

Terrain
  • Surface : 505 m²

Maison
  • Surface : 110 m²
  • Pièces : 5
  • Chambres : 4

  • Être rappelé par un conseiller
  • Demander plus d’infos
  • Demande d'information
Roncourt (57860)

Programmes à proximité

Les Méliades
Les Méliades
Metz (57000)

Appartements de 2 à 5 pièces
Livraison 2ème trimestre 2028

Carré Sablon
Carré Sablon
Metz (57000)

Appartements de 1 à 4 pièces
Livraison 3ème trimestre 2028

L'IMPERIAL
L'IMPERIAL
Metz (57000)

Appartements de 1 à 5 pièces
Livraison 4ème trimestre 2028

AD ARENA
AD ARENA
Metz (57000)

Appartements de 1 à 5 pièces
Livraison 4ème trimestre 2028

Chieulles - R'Duplex
Chieulles - R'Duplex
Metz (57000)

Appartements de 4 pièces
Livraison 2ème trimestre 2026

Contacter MAISONS VESTA AGENCE DE METZ (57) pour recevoir plus d'informations

Remplissez le formulaire ci-dessous, vos informations sont transmises directement au constructeur qui vous contactera par email ou par téléphone afin de traiter votre demande. En savoir plus.

Voir tous nos programmes immobiliers neufs à Roncourt