Maison neuve, 110 m² - Risoul (05600)
515 000 €
Risoul (05600)
Proposée par MAISONS FRANCE CONFORT – 3 pièces - 3 chambres - terrain 744 m²
|
|
| MAISONS FRANCE CONFORT |
- Demande d'information
- Prendre rendez-vous
MAISON À CONSTRUIRE : ceci est une annonce d'une maison neuve à construire.
🏡 Maison de 110 m² à personnaliser - Terrain d'exception à Risoul
Vivez votre rêve à Risoul, sur un beau terrain avec une vue à couper le souffle 🌄. Cette maison de 110 m² est entièrement personnalisable pour correspondre à vos envies et besoins.
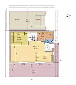
Surface habitable : 110 m² pour toute la famille 👨👩👧👦
Terrain : emplacement privilégié avec vue panoramique 🏔️
Architecture : maison traditionnelle modulable selon vos goûts 🎨
Prestations : finitions de qualité et suivi personnalisé tout au long du projet ✅
Prix : 515 000 € 💶
Maison France Confort, constructeur reconnu, vous accompagne de la conception à la remise des clés 🗝️ avec ses garanties uniques 🛡️ pour un projet serein et sécurisé.Déjà +100 000 clients nous ont fait confiance, pourquoi pas vous ? ✨
Référence : BDS2280199_1
Terrain proposé par un partenaire foncier selon disponibilités et autorisation de publicité au prix de 123 000 €. Hors droit d'enregistrement et frais de notaire. Maison proposée, avec un contrat de construction de maison individuelle, dans le cadre de la loi du 19/12/1990, au prix de 392 000 € (Hors branchements et raccordements, papiers peints, peintures, revêtement de sol dans les chambres, qui sont chiffrés dans les travaux qui restent à charge du client. Tarif modifiable sans préavis). Étiquette énergie : A. Différents modèles disponibles pour ce terrain. Assurances et garanties du constructeur comprises (RC professionnelle, décennale, dommage ouvrage).
Les informations sur les risques auxquels ce bien est exposé sont disponibles sur le site Géorisques : www.georisques.gouv.fr
Vivez votre rêve à Risoul, sur un beau terrain avec une vue à couper le souffle 🌄. Cette maison de 110 m² est entièrement personnalisable pour correspondre à vos envies et besoins.
Surface habitable : 110 m² pour toute la famille 👨👩👧👦
Terrain : emplacement privilégié avec vue panoramique 🏔️
Architecture : maison traditionnelle modulable selon vos goûts 🎨
Prestations : finitions de qualité et suivi personnalisé tout au long du projet ✅
Prix : 515 000 € 💶
Maison France Confort, constructeur reconnu, vous accompagne de la conception à la remise des clés 🗝️ avec ses garanties uniques 🛡️ pour un projet serein et sécurisé.Déjà +100 000 clients nous ont fait confiance, pourquoi pas vous ? ✨
Référence : BDS2280199_1
Terrain proposé par un partenaire foncier selon disponibilités et autorisation de publicité au prix de 123 000 €. Hors droit d'enregistrement et frais de notaire. Maison proposée, avec un contrat de construction de maison individuelle, dans le cadre de la loi du 19/12/1990, au prix de 392 000 € (Hors branchements et raccordements, papiers peints, peintures, revêtement de sol dans les chambres, qui sont chiffrés dans les travaux qui restent à charge du client. Tarif modifiable sans préavis). Étiquette énergie : A. Différents modèles disponibles pour ce terrain. Assurances et garanties du constructeur comprises (RC professionnelle, décennale, dommage ouvrage).
Les informations sur les risques auxquels ce bien est exposé sont disponibles sur le site Géorisques : www.georisques.gouv.fr
- Prix
-
- Prix total : 515 000 €
- Prix du modèle de maison : 392 000 €
- Prix du terrain : 123 000 €
- Terrain
-
- Surface : 744 m²
- Maison
-
- Surface : 110 m²
- Pièces : 3
- Chambres : 3
- Garage : 1
- Être rappelé par un conseiller
- Demander plus d’infos
- Demande d'information
Risoul (05600)
Maisons à proximité
Maison neuve, 91 m²
Crots (05200)
Crots (05200)
Maison de 4 pièces
Maison neuve, 127 m²
Puy-Saint-Eusèbe (05200)
Puy-Saint-Eusèbe (05200)
Maison de 5 pièces
Maison neuve, 75 m²
Savines-le-Lac (05160)
Savines-le-Lac (05160)
Maison de 4 pièces
Programmes à proximité
Clos Grangeon
Embrun (05200)
Embrun (05200)
Appartements de 2 à 3 pièces
Livraison 4ème trimestre 2026
Contacter MAISONS FRANCE CONFORT pour recevoir plus d'informations
Remplissez le formulaire ci-dessous, vos informations sont transmises directement au constructeur qui vous contactera par email ou par téléphone afin de traiter votre demande. En savoir plus.