Maison neuve, 107 m² - Rillieux-la-Pape (69140)

439 000 €
Rillieux-la-Pape (69140)

Proposée par MAISONS PUNCH SAINT PRIEST – 5 pièces - 4 chambres - terrain 468 m²

Maisons PUNCH Saint Priest
Maisons PUNCH Saint Priest
(57 avis)
  • Demande d'information
MAISON À CONSTRUIRE : ceci est une annonce d'une maison neuve à construire.
10 m² OFFERT + CUISINE OFFERTE + PACK DECO OFFERT (peintures + parquet des chambres + faïence sdb + placards pour nos 50 ans.
Nous sommes ravis de vous présenter notre projet de construction d'une magnifique maison neuve, située sur un terrain spacieux de 1000 m² sur la commune de Rillieux la pape
Caractéristiques du bien :
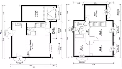
Superficie totale : 92 m²
4 chambres confortables, un salon séjour de 45 m², plancher chauffant pour un confort optimal tout au long de l'année
Volets roulants motorisés pour une sécurité accrue et une gestion aisée de la luminosité
Cette maison est conçue pour offrir à ses occupants un cadre de vie exceptionnel, alliant confort, modernité et fonctionnalité.
Située dans un quartier paisible, cette maison bénéficie d'un environnement calme et verdoyant, tout en étant proche des commodités et des infrastructures essentielles.
Contactez-nous dès aujourd'hui pour en savoir plus sur ce projet de construction exceptionnel.
Référence : 4596 DUFOR Arnaud
Terrain proposé et vendu par notre partenaire foncier selon disponibilités, le constructeur n’étant pas mandaté pour réaliser la vente du terrain. Prix terrain inclus : 249 000 € Frais de notaire non inclus : € Prix maison inclus : 190 000 € VRD non inclus : € Hors aménagements extérieurs (extensions, terrasse, piscine etc), papiers peints, peintures, moquettes dans les chambres (tarif en vigueur au 20 mai 2025, modifiable sans préavis, prix variables suivant les prestations souhaitées). Hors frais d’hypothèque. Différents modèles disponibles pour chaque terrain. Assurance RC professionnelle/décennale/dommage ouvrage groupe Aviva. Garantie de remboursement de l'acompte/livraison à prix et délai convenu CGI.

Les informations sur les risques auxquels ce bien est exposé sont disponibles sur le site Géorisques : www.georisques.gouv.fr


Prix
  • Prix total : 439 000 €
  • Prix du modèle de maison : 190 000 €
  • Prix du terrain : 249 000 €

Terrain
  • Surface : 468 m²

Maison
  • Surface : 107 m²
  • Pièces : 5
  • Chambres : 4
  • Salle de bains : 1
  • Garage : 1
  • Surface garage : 20 m²

  • Être rappelé par un conseiller
  • Demander plus d’infos
  • Demande d'information
Rillieux-la-Pape (69140)

Programmes à proximité

Le reflet
Le reflet
Rillieux-la-Pape (69140)

Appartements de 2 à 4 pièces
Livraison 4ème trimestre 2027

JARDIN PRIVÉ
JARDIN PRIVÉ
Rillieux-la-Pape (69140)

Appartements de 2 à 5 pièces
Livraison 4ème trimestre 2026

FLORILLA
FLORILLA
Rillieux-la-Pape (69140)

Appartements de 3 à 4 pièces
Livraison 4ème trimestre 2025

ECHO
ECHO
Rillieux-la-Pape (69140)

Appartements de 1 à 5 pièces
Livraison 1er trimestre 2028

ICONIC
ICONIC
Sathonay-Camp (69580)

Appartements de 2 à 5 pièces
Livraison 1er trimestre 2027

LE CLOS FRANCOIS
LE CLOS FRANCOIS
Sathonay-Village (69580)

Appartements de 2 à 4 pièces et maisons de 4 pièces
Livraison 3ème trimestre 2027

Contacter MAISONS PUNCH SAINT PRIEST pour recevoir plus d'informations

Remplissez le formulaire ci-dessous, vos informations sont transmises directement au constructeur qui vous contactera par email ou par téléphone afin de traiter votre demande. En savoir plus.

Voir tous nos programmes immobiliers neufs à Rillieux-la-Pape