Maison neuve, 86 m² - Ribagnac (24240)
204 912 €
Ribagnac (24240)
Proposée par MAISONS OMEGA AGENCE DE BERGERAC – 4 pièces - 3 chambres - terrain 1 098 m²
|
|
| Maisons Omega Agence de Bergerac |
- Demande d'information
- Prendre rendez-vous
MAISON À CONSTRUIRE : ceci est une annonce d'une maison neuve à construire.
Sur ce terrain, nous vous proposons cette maison neuve : la Canéjan. Conçue par Maisons Omega, détenteur du label Maisons de Qualité, cette maison familiale jolie et bien organisée est parfaite pour une petite famille souhaitant commencer une nouvelle vie dans les meilleures conditions.
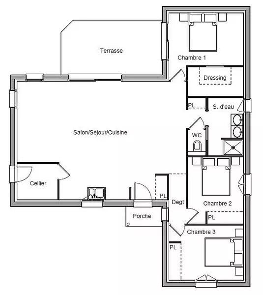
La Canéjan, avec ses 86 m², se distingue par son plan en T, offrant un agencement intérieur intelligent et optimisé. Elle se compose de 3 chambres avec placard ou dressing, une salle de bains avec WC séparés, un cellier et une cuisine ouverte sur un salon-séjour lumineux grâce à ses larges baies vitrées donnant sur le jardin.
Vous serez également séduits par son porche élégant et pratique, ainsi que par ses façades agrémentées de modénatures et son joli toit tuilé à deux pans.
Cette maison plain-pied, de taille confortable, est tout à fait adaptée à une famille et lui offrira un grand confort. De plus, la Canéjan est une maison basse consommation, conforme à la RE2020, garantissant des économies d'énergie et un respect de l'environnement.
Les options les plus demandées par nos clients, telles que le carport et les menuiseries en aluminium, sont également disponibles pour personnaliser votre future maison selon vos besoins et vos envies.
Vous voulez en savoir plus ? Contactez un de nos conseillers, il vous renseignera avec plaisir. Ne manquez pas cette opportunité de réaliser votre projet de maison neuve avec la Canéjan.
Référence : 12070
Les informations sur les risques auxquels ce bien est exposé sont disponibles sur le site Géorisques : www.georisques.gouv.fr
La Canéjan, avec ses 86 m², se distingue par son plan en T, offrant un agencement intérieur intelligent et optimisé. Elle se compose de 3 chambres avec placard ou dressing, une salle de bains avec WC séparés, un cellier et une cuisine ouverte sur un salon-séjour lumineux grâce à ses larges baies vitrées donnant sur le jardin.
Vous serez également séduits par son porche élégant et pratique, ainsi que par ses façades agrémentées de modénatures et son joli toit tuilé à deux pans.
Cette maison plain-pied, de taille confortable, est tout à fait adaptée à une famille et lui offrira un grand confort. De plus, la Canéjan est une maison basse consommation, conforme à la RE2020, garantissant des économies d'énergie et un respect de l'environnement.
Les options les plus demandées par nos clients, telles que le carport et les menuiseries en aluminium, sont également disponibles pour personnaliser votre future maison selon vos besoins et vos envies.
Vous voulez en savoir plus ? Contactez un de nos conseillers, il vous renseignera avec plaisir. Ne manquez pas cette opportunité de réaliser votre projet de maison neuve avec la Canéjan.
Référence : 12070
Les informations sur les risques auxquels ce bien est exposé sont disponibles sur le site Géorisques : www.georisques.gouv.fr
- Prix
-
- Prix total : 204 912 €
- Prix du modèle de maison : 164 286 €
- Prix du terrain : 40 626 €
- Terrain
-
- Surface : 1 098 m²
- Maison
-
- Surface : 86 m²
- Pièces : 4
- Chambres : 3
- Être rappelé par un conseiller
- Demander plus d’infos
- Demande d'information
Ribagnac (24240)
Maisons à proximité
Maison neuve, 70 m²
Ribagnac (24240)
Ribagnac (24240)
Maison de 4 pièces
Maison neuve, 90 m²
Ribagnac (24240)
Ribagnac (24240)
Maison de 5 pièces
Maison neuve, 80 m²
Ribagnac (24240)
Ribagnac (24240)
Maison de 4 pièces
Maison neuve, 98 m²
Ribagnac (24240)
Ribagnac (24240)
Maison de 4 pièces
Maison neuve, 70 m²
Ribagnac (24240)
Ribagnac (24240)
Maison de 4 pièces
Maison neuve, 90 m²
Ribagnac (24240)
Ribagnac (24240)
Maison de 5 pièces
Programmes à proximité
Contacter MAISONS OMEGA AGENCE DE BERGERAC pour recevoir plus d'informations
Remplissez le formulaire ci-dessous, vos informations sont transmises directement au constructeur qui vous contactera par email ou par téléphone afin de traiter votre demande. En savoir plus.