Maison neuve, 93 m² - Revigny-sur-Ornain (55800)
155 856 €
Revigny-sur-Ornain (55800)
Proposée par PAVILLONS PAROT - CONSTRUCTEUR DE MAISONS EN HAUTE – 4 pièces - 3 chambres - terrain 744 m²
|
|
| Pavillons Parot - Constructeur de maisons en Haute |
- Demande d'information
- Prendre rendez-vous
MAISON À CONSTRUIRE : ceci est une annonce d'une maison neuve à construire.
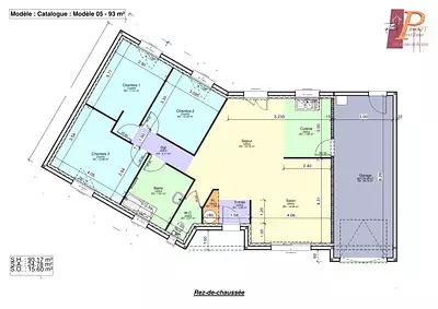
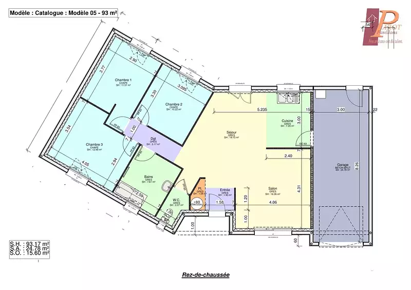
Sur ce terrain, nous vous proposons cette maison neuve, modèle Etoile, construite par Pavillons Parot. Avec une surface de 93 m², cette maison de plain-pied au plan en V sophistiqué s'adapte à pratiquement tous les types de terrains.
Cette magnifique demeure familiale offre un intérieur optimisé, avec une séparation entre les espaces jour et nuit. Trois chambres et une généreuse salle de bains occupent l’aile nuit, réunies autour d’un dégagement. L’autre aile est réservée à la spacieuse pièce à vivre dotée d’une cuisine semi-ouverte. L’entrée avec placard et semi-cloison vous semblera très pratique.
Le modèle Etoile comporte également un garage intégré de presque 25 m², idéal pour abriter votre véhicule et offrir un espace de rangement supplémentaire.
Son architecture recherchée vous séduira immédiatement. Outre son côté travaillé, certains détails plaisent, tels que le vaste porche en renfoncement au-dessus de l’entrée et sa toiture à deux pans.
Les dimensions généreuses de cette maison, de 93 m², en font une demeure idéale pour les familles. Elle est parfaite pour ceux qui recherchent une maison de belle dimension au design recherché.
De plus, cette maison neuve est basse consommation et conforme à la RE2020, garantissant une performance énergétique optimale et un confort de vie inégalé. Les options les plus demandées par les clients, telles que les menuiseries en aluminium, sont également disponibles pour personnaliser votre future maison.
Ne manquez pas cette opportunité unique de devenir propriétaire d'une maison moderne, économe en énergie et parfaitement adaptée à vos besoins. Contactez-nous dès aujourd'hui pour plus d'informations!
Référence : 12693
Les informations sur les risques auxquels ce bien est exposé sont disponibles sur le site Géorisques : www.georisques.gouv.fr
Cette magnifique demeure familiale offre un intérieur optimisé, avec une séparation entre les espaces jour et nuit. Trois chambres et une généreuse salle de bains occupent l’aile nuit, réunies autour d’un dégagement. L’autre aile est réservée à la spacieuse pièce à vivre dotée d’une cuisine semi-ouverte. L’entrée avec placard et semi-cloison vous semblera très pratique.
Le modèle Etoile comporte également un garage intégré de presque 25 m², idéal pour abriter votre véhicule et offrir un espace de rangement supplémentaire.
Son architecture recherchée vous séduira immédiatement. Outre son côté travaillé, certains détails plaisent, tels que le vaste porche en renfoncement au-dessus de l’entrée et sa toiture à deux pans.
Les dimensions généreuses de cette maison, de 93 m², en font une demeure idéale pour les familles. Elle est parfaite pour ceux qui recherchent une maison de belle dimension au design recherché.
De plus, cette maison neuve est basse consommation et conforme à la RE2020, garantissant une performance énergétique optimale et un confort de vie inégalé. Les options les plus demandées par les clients, telles que les menuiseries en aluminium, sont également disponibles pour personnaliser votre future maison.
Ne manquez pas cette opportunité unique de devenir propriétaire d'une maison moderne, économe en énergie et parfaitement adaptée à vos besoins. Contactez-nous dès aujourd'hui pour plus d'informations!
Référence : 12693
Les informations sur les risques auxquels ce bien est exposé sont disponibles sur le site Géorisques : www.georisques.gouv.fr
- Prix
-
- Prix total : 155 856 €
- Prix du modèle de maison : 138 000 €
- Prix du terrain : 17 856 €
- Terrain
-
- Surface : 744 m²
- Maison
-
- Surface : 93 m²
- Pièces : 4
- Chambres : 3
- Être rappelé par un conseiller
- Demander plus d’infos
- Demande d'information
Revigny-sur-Ornain (55800)
Maisons à proximité
Maison neuve, 100 m²
Jussecourt-Minecourt (51340)
Jussecourt-Minecourt (51340)
Maison de 5 pièces
Maison neuve, 124 m²
Brillon-en-Barrois (55000)
Brillon-en-Barrois (55000)
Maison de 5 pièces
Maison neuve, 94 m²
Sommelonne (55170)
Sommelonne (55170)
Maison de 4 pièces
Maison neuve, 100 m²
Sommelonne (55170)
Sommelonne (55170)
Maison de 5 pièces
Maison neuve, 100 m²
Saint-Dizier (52100)
Saint-Dizier (52100)
Maison de 4 pièces
Maison neuve, 96 m²
Erize-la-Brûlée (55260)
Erize-la-Brûlée (55260)
Maison de 4 pièces
Programmes à proximité
Le Clos d'Alice
Saint-Dizier (52100)
Saint-Dizier (52100)
Appartements de 1 à 4 pièces
Contacter PAVILLONS PAROT - CONSTRUCTEUR DE MAISONS EN HAUTE pour recevoir plus d'informations
Remplissez le formulaire ci-dessous, vos informations sont transmises directement au constructeur qui vous contactera par email ou par téléphone afin de traiter votre demande. En savoir plus.
Voir tous nos programmes immobiliers neufs à Revigny-sur-Ornain