Maison neuve, 59 m² - Ressons-sur-Matz (60490)

170 187 €
Ressons-sur-Matz (60490)

Proposée par BABEAU SEGUIN AGENCE DE BEAUVAIS – 2 pièces - 1 chambre - terrain 556 m²

Babeau Seguin Agence de Beauvais
Babeau Seguin Agence de Beauvais
  • Demande d'information
MAISON À CONSTRUIRE : ceci est une annonce d'une maison neuve à construire.
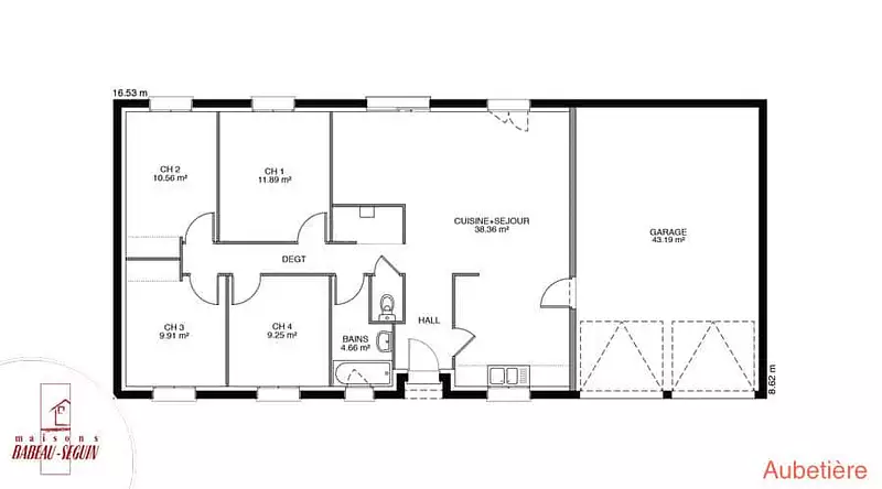
Sur ce terrain, nous vous proposons cette maison neuve Aubetière. Avec une surface de 59 m² et équipée d'une chambre, cette maison traditionnelle est appréciée pour son excellent rapport qualité/prix. Personnalisez le plan de votre Aubetière 59 m² avec des options comme un garage ou un sous-sol.
L'Aubetière est une maison moderne qui se distingue par son excellent rapport qualité/prix. Vous pouvez choisir entre une toiture à 2 pans ou à 4 pans, selon vos préférences esthétiques et pratiques.
Cette maison neuve est basse consommation et conforme à la RE2020, garantissant ainsi des performances énergétiques optimales et un respect des normes environnementales les plus récentes.
Le constructeur Babeau-Seguin, reconnu pour offrir le meilleur rapport qualité/prix du marché, vous accompagne dans la réalisation de votre projet de construction. Donnez vie à votre projet de construction en optant pour notre modèle traditionnel Aubetière et profitez d'une maison individuelle sur mesure, adaptée à vos besoins et à vos envies.
Référence : 91950

Les informations sur les risques auxquels ce bien est exposé sont disponibles sur le site Géorisques : www.georisques.gouv.fr


Prix
  • Prix total : 170 187 €
  • Prix du modèle de maison : 120 187 €
  • Prix du terrain : 50 000 €

Terrain
  • Surface : 556 m²

Maison
  • Surface : 59 m²
  • Pièces : 2
  • Chambre : 1

  • Être rappelé par un conseiller
  • Demander plus d’infos
  • Demande d'information
Ressons-sur-Matz (60490)

Programmes à proximité

Le Clos Venette
Le Clos Venette
Venette (60280)

Appartements de 2 à 4 pièces et maisons de 4 à 5 pièces
Livraison 4ème trimestre 2027

LA LISIÈRE
LA LISIÈRE
Compiègne (60200)

Appartement de 4 pièces
Livraison 4ème trimestre 2025

LES JARDINS DE JEZZINE
LES JARDINS DE JEZZINE
Compiègne (60200)

Appartements de 3 pièces et maisons de 5 pièces
Livraison 4ème trimestre 2027

CARRE MANSART
CARRE MANSART
Compiègne (60200)

Appartements de 2 à 4 pièces et local commercial
Livraison 4ème trimestre 2027

Contacter BABEAU SEGUIN AGENCE DE BEAUVAIS pour recevoir plus d'informations

Remplissez le formulaire ci-dessous, vos informations sont transmises directement au constructeur qui vous contactera par email ou par téléphone afin de traiter votre demande. En savoir plus.

Voir tous nos programmes immobiliers neufs à Ressons-sur-Matz