Maison neuve, 92 m² - Reignac-sur-Indre (37310)

246 000 €
Reignac-sur-Indre (37310)

Proposée par CONSTRUCTIONS IDEALE DEMEURE – 4 pièces - 3 chambres - terrain 1 194 m²

CONSTRUCTIONS IDEALE DEMEURE
CONSTRUCTIONS IDEALE DEMEURE
  • Demande d'information
MAISON À CONSTRUIRE : ceci est une annonce d'une maison neuve à construire.
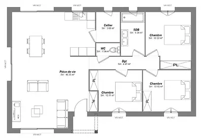
Cette magnifique maison à construire en L de 93m² offre un cadre de vie idéal. Sa pièce de vie spacieuse de plus de 46m² bénéficie d'une triple exposition, garantissant une luminosité optimale tout au long de la journée. Elle comprend également trois belles chambres, parfaites pour accueillir toute la famille. Un projet harmonieux alliant confort, espace et lumière naturelle.
Maison entièrement personnalisable.
Je reste disponible pour toutes demandes de renseignements, n'hésitez pas me contacter : Stéphane Digneton : °6.64.92.89.69.
CONSTRUCTIONS IDEALE DEMEURE a sélectionné avec un partenaire foncier un terrain pour construire cette maison.
Référence : SD2271050_4
Terrain proposé par un partenaire foncier selon disponibilités et autorisation de publicité au prix de 65 500 €. Hors droit d'enregistrement et frais de notaire. Maison proposée, avec un contrat de construction de maison individuelle, dans le cadre de la loi du 19/12/1990, au prix de 180 500 € (Hors branchements et raccordements, papiers peints, peintures, revêtement de sol dans les chambres, qui sont chiffrés dans les travaux qui restent à charge du client. Tarif modifiable sans préavis). Étiquette énergie : A. Différents modèles disponibles pour ce terrain. Assurances et garanties du constructeur comprises (RC professionnelle, décennale, dommage ouvrage).

Les informations sur les risques auxquels ce bien est exposé sont disponibles sur le site Géorisques : www.georisques.gouv.fr


Prix
  • Prix total : 246 000 €
  • Prix du modèle de maison : 180 500 €
  • Prix du terrain : 65 500 €

Terrain
  • Surface : 1 194 m²

Maison
  • Surface : 92 m²
  • Pièces : 4
  • Chambres : 3

  • Être rappelé par un conseiller
  • Demander plus d’infos
  • Demande d'information
Reignac-sur-Indre (37310)

Programmes à proximité

L'Ecrin des Chartreux
L'Ecrin des Chartreux
Bléré (37150)

Appartements de 2 pièces
Livraison 1er trimestre 2028

Le Domaine des Chartreux
Le Domaine des Chartreux
Bléré (37150)

Appartements de 2 à 4 pièces et maison de 3 pièces
Livraison 3ème trimestre 2027

CALICIA
CALICIA
Sorigny (37250)

Appartements de 1 à 3 pièces
Livraison 1er trimestre 2027

COURTIL MONTLOUIS - MONTLOUIS SUR LOIRE
COURTIL MONTLOUIS - MONTLOUIS SUR LOIRE
Montlouis-sur-Loire (37270)

Appartements de 2 à 4 pièces
Livraison 4ème trimestre 2026

Le Clos des Cordeliers
Le Clos des Cordeliers
Amboise (37400)

Appartements de 3 à 4 pièces
Livraison 1er trimestre 2026

Contacter CONSTRUCTIONS IDEALE DEMEURE pour recevoir plus d'informations

Remplissez le formulaire ci-dessous, vos informations sont transmises directement au constructeur qui vous contactera par email ou par téléphone afin de traiter votre demande. En savoir plus.

Voir tous nos programmes immobiliers neufs à Reignac-sur-Indre