Maison neuve, 120 m² - Reignac-sur-Indre (37310)

305 000 €
Reignac-sur-Indre (37310)

Proposée par CONSTRUCTIONS IDEALE DEMEURE – 4 pièces - 4 chambres - terrain 1 194 m²

CONSTRUCTIONS IDEALE DEMEURE
CONSTRUCTIONS IDEALE DEMEURE
  • Demande d'information
MAISON À CONSTRUIRE : ceci est une annonce d'une maison neuve à construire.
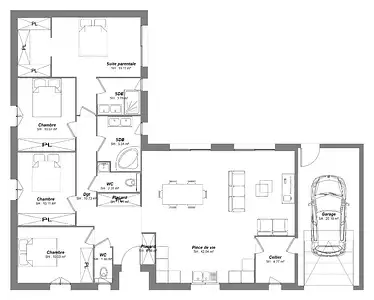
Vous rêvez de faire construire ? Stéphane Digneton ( °6.64.92.89.69)vous propose cette maison en L de 121m², avec 4 chambres dont une suite parentale. Elle comprend également 2 salles de bain, une belle pièce de vie lumineuse et un grand garage de plus de 20m². Entièrement personnalisable, n'hésitez pas à me contacter pour discuter de votre projet.
CONSTRUCTIONS IDEALE DEMEURE a sélectionné avec un partenaire foncier un terrain pour construire cette maison.
Référence : SD2271050_2
Terrain proposé par un partenaire foncier selon disponibilités et autorisation de publicité au prix de 65 500 €. Hors droit d'enregistrement et frais de notaire. Maison proposée, avec un contrat de construction de maison individuelle, dans le cadre de la loi du 19/12/1990, au prix de 239 500 € (Hors branchements et raccordements, papiers peints, peintures, revêtement de sol dans les chambres, qui sont chiffrés dans les travaux qui restent à charge du client. Tarif modifiable sans préavis). Étiquette énergie : A. Différents modèles disponibles pour ce terrain. Assurances et garanties du constructeur comprises (RC professionnelle, décennale, dommage ouvrage).

Les informations sur les risques auxquels ce bien est exposé sont disponibles sur le site Géorisques : www.georisques.gouv.fr


Prix
  • Prix total : 305 000 €
  • Prix du modèle de maison : 239 500 €
  • Prix du terrain : 65 500 €

Terrain
  • Surface : 1 194 m²

Maison
  • Surface : 120 m²
  • Pièces : 4
  • Chambres : 4
  • Garage : 1

  • Être rappelé par un conseiller
  • Demander plus d’infos
  • Demande d'information
Reignac-sur-Indre (37310)

Programmes à proximité

L'Ecrin des Chartreux
L'Ecrin des Chartreux
Bléré (37150)

Appartements de 2 pièces
Livraison 1er trimestre 2028

Le Domaine des Chartreux
Le Domaine des Chartreux
Bléré (37150)

Appartements de 2 à 4 pièces et maison de 3 pièces
Livraison 3ème trimestre 2027

CALICIA
CALICIA
Sorigny (37250)

Appartements de 1 à 3 pièces
Livraison 1er trimestre 2027

COURTIL MONTLOUIS - MONTLOUIS SUR LOIRE
COURTIL MONTLOUIS - MONTLOUIS SUR LOIRE
Montlouis-sur-Loire (37270)

Appartements de 2 à 4 pièces
Livraison 4ème trimestre 2026

Le Clos des Cordeliers
Le Clos des Cordeliers
Amboise (37400)

Appartements de 3 à 4 pièces
Livraison 1er trimestre 2026

Contacter CONSTRUCTIONS IDEALE DEMEURE pour recevoir plus d'informations

Remplissez le formulaire ci-dessous, vos informations sont transmises directement au constructeur qui vous contactera par email ou par téléphone afin de traiter votre demande. En savoir plus.

Voir tous nos programmes immobiliers neufs à Reignac-sur-Indre