Maison neuve, 80 m² - Queyssac (24140)
191 000 €
Queyssac (24140)
Proposée par MAISONS OMEGA AGENCE DE BERGERAC – 4 pièces - 3 chambres - terrain 1 604 m²
|
|
| Maisons Omega Agence de Bergerac |
- Demande d'information
- Prendre rendez-vous
MAISON À CONSTRUIRE : ceci est une annonce d'une maison neuve à construire.
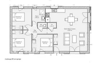
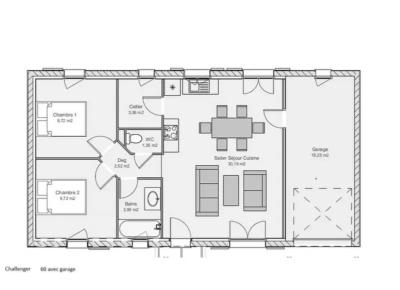
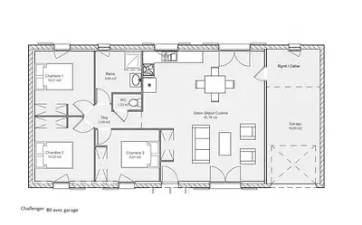
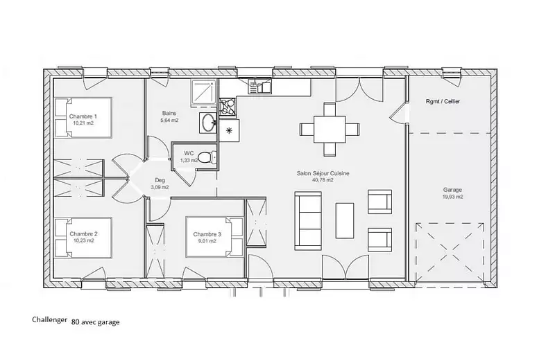
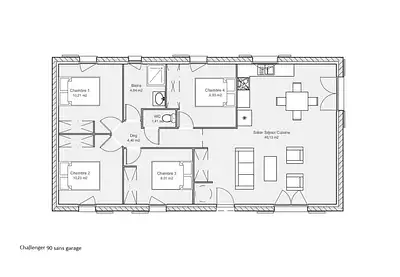
Sur ce terrain, nous vous proposons cette maison neuve : le modèle Challenger, spécialement conçu pour les primo-accédants ou les couples souhaitant bénéficier du meilleur rapport qualité/prix du marché. Avec une surface de 80 m², cette maison dispose de 3 chambres et de 4 pièces, offrant un intérieur confortable et séduisant. Un très pratique garage intégré est également inclus
Construite par Maisons Omega, détenteur du label Maisons de Qualité, cette demeure neuve est parfaite pour bien débuter dans la vie. La Challenger se distingue par ses formes simples et son intérieur accueillant. Vous y trouverez une cuisine ouverte sur un salon-séjour lumineux grâce à ses grandes portes-fenêtres, assurant une belle luminosité tout au long de la journée.
Cette maison neuve est également conforme à la RE2020, garantissant une basse consommation énergétique. Vous pourrez ainsi profiter d'un confort optimal tout en réalisant des économies sur vos factures d'énergie. De plus, son aspect extérieur moderne, avec des façades en enduit coloré et des volets roulants, ne manquera pas de vous séduire.
Les options les plus demandées par nos clients, telles que l'enduit coloré et les volets roulants, sont disponibles pour personnaliser votre maison selon vos envies et votre budget.
Vous êtes conquis par cette maison à petit prix et basse consommation ? Contactez-nous dès maintenant pour en savoir plus et discuter de votre projet avec nos experts.
Référence : 11657
Les informations sur les risques auxquels ce bien est exposé sont disponibles sur le site Géorisques : www.georisques.gouv.fr
Construite par Maisons Omega, détenteur du label Maisons de Qualité, cette demeure neuve est parfaite pour bien débuter dans la vie. La Challenger se distingue par ses formes simples et son intérieur accueillant. Vous y trouverez une cuisine ouverte sur un salon-séjour lumineux grâce à ses grandes portes-fenêtres, assurant une belle luminosité tout au long de la journée.
Cette maison neuve est également conforme à la RE2020, garantissant une basse consommation énergétique. Vous pourrez ainsi profiter d'un confort optimal tout en réalisant des économies sur vos factures d'énergie. De plus, son aspect extérieur moderne, avec des façades en enduit coloré et des volets roulants, ne manquera pas de vous séduire.
Les options les plus demandées par nos clients, telles que l'enduit coloré et les volets roulants, sont disponibles pour personnaliser votre maison selon vos envies et votre budget.
Vous êtes conquis par cette maison à petit prix et basse consommation ? Contactez-nous dès maintenant pour en savoir plus et discuter de votre projet avec nos experts.
Référence : 11657
Les informations sur les risques auxquels ce bien est exposé sont disponibles sur le site Géorisques : www.georisques.gouv.fr
- Prix
-
- Prix total : 191 000 €
- Prix du modèle de maison : 152 000 €
- Prix du terrain : 39 000 €
- Terrain
-
- Surface : 1 604 m²
- Maison
-
- Surface : 80 m²
- Pièces : 4
- Chambres : 3
- Être rappelé par un conseiller
- Demander plus d’infos
- Demande d'information
Queyssac (24140)
Maisons à proximité
Maison neuve, 145 m²
Lembras (24100)
Lembras (24100)
Maison de 4 pièces
Maison neuve, 100 m²
Eyraud-Crempse-Maurens (24130)
Eyraud-Crempse-Maurens (24130)
Maison de 4 pièces
Maison neuve, 106 m²
Eyraud-Crempse-Maurens (24130)
Eyraud-Crempse-Maurens (24130)
Maison de 4 pièces
Maison neuve, 85 m²
Eyraud-Crempse-Maurens (24130)
Eyraud-Crempse-Maurens (24130)
Maison de 4 pièces
Maison neuve, 100 m²
Eyraud-Crempse-Maurens (24130)
Eyraud-Crempse-Maurens (24130)
Maison de 4 pièces
Maison neuve, 98 m²
Eyraud-Crempse-Maurens (24130)
Eyraud-Crempse-Maurens (24130)
Maison de 4 pièces
Programmes à proximité
Contacter MAISONS OMEGA AGENCE DE BERGERAC pour recevoir plus d'informations
Remplissez le formulaire ci-dessous, vos informations sont transmises directement au constructeur qui vous contactera par email ou par téléphone afin de traiter votre demande. En savoir plus.