Maison neuve, 75 m² - Puget-sur-Argens (83480)

390 000 €
Puget-sur-Argens (83480)

Proposée par MAISONS FRANCE CONFORT – 3 pièces - 2 chambres - terrain 460 m²

MAISONS FRANCE CONFORT
MAISONS FRANCE CONFORT
(99 avis)
  • Demande d'information
MAISON À CONSTRUIRE : ceci est une annonce d'une maison neuve à construire.
Venez faire construire votre villa avec Maisons France Confort, à Puget-sur-Argens, ville privée et recherchée, grâce à son environnement verdoyant et proche de toutes commodités. Son accès direct à l'autoroute A8 vous facilitera pour vos déplacements quotidiens.
Projet proposé :
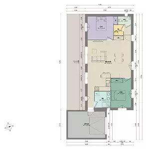
Villa de plain pied 76m2 + garage de 19m2 accolé
2 chambres, 1 salle de douche, 1 WC séparé
Cuisine ouverte sur joli séjour d'environ 42m2
Le tout sur 460m2 de jardin - point positif : peu d'entretien extérieur à prévoir
Quartier résidentiel
Tarif hors frais de terrassement et hors frais de notaire (8% sur le prix du terrain uniquement)
Puget-sur-Argens, village provençal situé à l'est du département du Var dans la vallée de l'Argens, entre massif des Maures, Esterel et vignoble de Côtes de Provence.
Situé au coeur de la nature et aux portes de la Méditerranée, Puget invite à la détente, au repos mais également aux activités sportives. De nombreux châteaux et domaines viticoles sont disposés autour de lui, où règne une ambiance provençale.
Idéalement placé, avec son accès direct à l'autoroute A8, et son centre commercial, vous serez séduit par son emplacement rêvé !
N'attendez plus et prenez contact avec votre chargée de projet Amélie Van Brabant au O62861162O pour plus de renseignements et pour échanger sur votre projet de construction.
Maisons France Confort concrétise vos projets
Référence : AVB2299461_1
Terrain proposé par un partenaire foncier selon disponibilités et autorisation de publicité au prix de 182 000 €. Hors droit d'enregistrement et frais de notaire. Maison proposée, avec un contrat de construction de maison individuelle, dans le cadre de la loi du 19/12/1990, au prix de 208 000 € (Hors branchements et raccordements, papiers peints, peintures, revêtement de sol dans les chambres, qui sont chiffrés dans les travaux qui restent à charge du client. Tarif modifiable sans préavis). Étiquette énergie : A. Différents modèles disponibles pour ce terrain. Assurances et garanties du constructeur comprises (RC professionnelle, décennale, dommage ouvrage).

Les informations sur les risques auxquels ce bien est exposé sont disponibles sur le site Géorisques : www.georisques.gouv.fr


Prix
  • Prix total : 390 000 €
  • Prix du modèle de maison : 208 000 €
  • Prix du terrain : 182 000 €

Terrain
  • Surface : 460 m²

Maison
  • Surface : 75 m²
  • Pièces : 3
  • Chambres : 2
  • Garage : 1

  • Être rappelé par un conseiller
  • Demander plus d’infos
  • Demande d'information
Puget-sur-Argens (83480)

Maisons à proximité

Programmes à proximité

TERRA ESTRELLA
TERRA ESTRELLA
Puget-sur-Argens (83480)

Appartements de 2 à 4 pièces et maison de 4 pièces
Livraison 4ème trimestre 2027

DOMAINE ROSEA APPARTEMENTS
DOMAINE ROSEA APPARTEMENTS
Fréjus (83600)

Appartements de 2 à 3 pièces
Livraison 4ème trimestre 2027

CELEST
CELEST
Fréjus (83600)

Appartements de 2 à 3 pièces
Livraison 4ème trimestre 2026

T4 TERRASSE FREJUS
T4 TERRASSE FREJUS
Fréjus (83600)

Appartement de 4 pièces
Livraison 1er trimestre 2026

Dolce Mia
Dolce Mia
Fréjus (83600)

Appartements de 2 à 3 pièces
Livraison 1er trimestre 2026

Anna
Anna
Fréjus (83600)

Appartements de 2 à 4 pièces
Livraison 4ème trimestre 2027

Contacter MAISONS FRANCE CONFORT pour recevoir plus d'informations

Remplissez le formulaire ci-dessous, vos informations sont transmises directement au constructeur qui vous contactera par email ou par téléphone afin de traiter votre demande. En savoir plus.

Voir tous nos programmes immobiliers neufs à Puget-sur-Argens