Maison neuve, 90 m² - Puget-sur-Argens (83480)

490 000 €
Puget-sur-Argens (83480)

Proposée par MAISONS DE MANON – 2 pièces - 3 chambres - terrain 565 m²

MAISONS DE MANON
MAISONS DE MANON
(92 avis)
  • Demande d'information
MAISON À CONSTRUIRE : ceci est une annonce d'une maison neuve à construire.
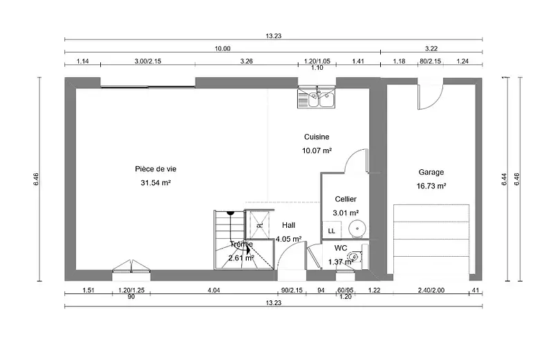
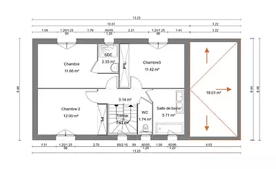
Les Maisons de Manon de Callian vous propose sur ce terrain diverses réalisations possible notamment notre nouveau modèle sur mesure de 97m² habitable à étage, très fonctionnel et entièrement personnalisable. Il dispose de 3 chambres dont une avec salle d'eau, une salle de bain, deux wc séparés, un cellier attenant à une cuisine ouverte, un garage accolé ainsi qu'une belle pièce de vie lumineuse à partir de 490 000€TTC (Incluant: terrain, frais de notaire, viabilités, devis terrassier, hors cuisine, hors peinture, garage et terrasse en option). Vous disposerez de nombres prestations de qualité et d'un réel accompagnement tout au long du projet.
Annonce proposée par un Agent Commercial Partenaire.
Référence : AM2260118_1
Terrain proposé par un partenaire foncier selon disponibilités et autorisation de publicité au prix de 265 000 €. Hors droit d'enregistrement et frais de notaire. Maison proposée, avec un contrat de construction de maison individuelle, dans le cadre de la loi du 19/12/1990, au prix de 225 000 € (Hors branchements et raccordements, papiers peints, peintures, revêtement de sol dans les chambres, qui sont chiffrés dans les travaux qui restent à charge du client. Tarif modifiable sans préavis). Étiquette énergie : A. Différents modèles disponibles pour ce terrain. Assurances et garanties du constructeur comprises (RC professionnelle, décennale, dommage ouvrage).

Les informations sur les risques auxquels ce bien est exposé sont disponibles sur le site Géorisques : www.georisques.gouv.fr


Prix
  • Prix total : 490 000 €
  • Prix du modèle de maison : 225 000 €
  • Prix du terrain : 265 000 €

Terrain
  • Surface : 565 m²

Maison
  • Surface : 90 m²
  • Pièces : 2
  • Chambres : 3
  • Garage : 1

  • Être rappelé par un conseiller
  • Demander plus d’infos
  • Demande d'information
Puget-sur-Argens (83480)

Maisons à proximité

Programmes à proximité

TERRA ESTRELLA
TERRA ESTRELLA
Puget-sur-Argens (83480)

Appartements de 2 à 4 pièces et maison de 4 pièces
Livraison 4ème trimestre 2027

DOMAINE ROSEA APPARTEMENTS
DOMAINE ROSEA APPARTEMENTS
Fréjus (83600)

Appartements de 2 à 3 pièces
Livraison 4ème trimestre 2027

CELEST
CELEST
Fréjus (83600)

Appartements de 2 à 3 pièces
Livraison 4ème trimestre 2026

T4 TERRASSE FREJUS
T4 TERRASSE FREJUS
Fréjus (83600)

Appartement de 4 pièces
Livraison 1er trimestre 2026

Dolce Mia
Dolce Mia
Fréjus (83600)

Appartements de 2 à 3 pièces
Livraison 1er trimestre 2026

Anna
Anna
Fréjus (83600)

Appartements de 2 à 4 pièces
Livraison 4ème trimestre 2027

Contacter MAISONS DE MANON pour recevoir plus d'informations

Remplissez le formulaire ci-dessous, vos informations sont transmises directement au constructeur qui vous contactera par email ou par téléphone afin de traiter votre demande. En savoir plus.

Voir tous nos programmes immobiliers neufs à Puget-sur-Argens