Maison neuve, 120 m² - Puget-sur-Argens (83480)

495 000 €
Puget-sur-Argens (83480)

Proposée par MAISONS FRANCE CONFORT – 5 pièces - 4 chambres - terrain 1 055 m²

MAISONS FRANCE CONFORT
MAISONS FRANCE CONFORT
(241 avis)
  • Demande d'information
MAISON À CONSTRUIRE : ceci est une annonce d'une maison neuve à construire.
Natacha Espinosa de Maisons France Confort, vous propose de venir construire sur un terrain plat situé dans un quartier calme et résidentiel de Puget sur Argens, non loin de l'autoroute.
Ce terrain de 1055m² dont 787m² utile vendu viabilisé, vous permettra de créer votre villa de plain pied ou en étage.
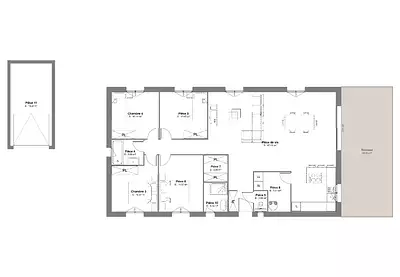
Je vous propose ici, un projet de plain pied de 120m² idéal pour une famille. Vous y trouverez trois chambres avec une salle de bain indépendante ainsi qu'une suite parentale avec son dressing et sa salle d'eau. Une grande pièce de vie ouverte sur l'extérieur vous permettra de profiter de bons moments en famille ou entre amis. Pour le côté fonctionnel, vous disposerez également d'un grand cellier attenant à la cuisine.
Un garage indépendant vient également compléter ce projet.
Vous souhaitez en savoir plus sur celui-ci ou en élaborer un plus personnel? Le prix comprend: terrain, construction (voir descriptif prestations lors du rendez-vous), provision terrassement.
Le prix ne comprend pas: frais de notaire du terrain, taxes et raccordements, aménagements intérieurs (voir descriptif lors du rdv), aménagements extérieurs
Référence : NE2246630_1
Terrain proposé par un partenaire foncier selon disponibilités et autorisation de publicité au prix de 245 000 €. Hors droit d'enregistrement et frais de notaire. Maison proposée, avec un contrat de construction de maison individuelle, dans le cadre de la loi du 19/12/1990, au prix de 250 000 € (Hors branchements et raccordements, papiers peints, peintures, revêtement de sol dans les chambres, qui sont chiffrés dans les travaux qui restent à charge du client. Tarif modifiable sans préavis). Étiquette énergie : A. Différents modèles disponibles pour ce terrain. Assurances et garanties du constructeur comprises (RC professionnelle, décennale, dommage ouvrage).

Les informations sur les risques auxquels ce bien est exposé sont disponibles sur le site Géorisques : www.georisques.gouv.fr


Prix
  • Prix total : 495 000 €
  • Prix du modèle de maison : 250 000 €
  • Prix du terrain : 245 000 €

Terrain
  • Surface : 1 055 m²

Maison
  • Surface : 120 m²
  • Pièces : 5
  • Chambres : 4

  • Être rappelé par un conseiller
  • Demander plus d’infos
  • Demande d'information
Puget-sur-Argens (83480)

Maisons à proximité

Programmes à proximité

TERRA ESTRELLA
TERRA ESTRELLA
Puget-sur-Argens (83480)

Appartements de 2 à 4 pièces et maison de 4 pièces
Livraison 4ème trimestre 2027

DOMAINE ROSEA APPARTEMENTS
DOMAINE ROSEA APPARTEMENTS
Fréjus (83600)

Appartements de 2 à 3 pièces
Livraison 4ème trimestre 2027

CELEST
CELEST
Fréjus (83600)

Appartements de 2 à 3 pièces
Livraison 4ème trimestre 2026

T4 TERRASSE FREJUS
T4 TERRASSE FREJUS
Fréjus (83600)

Appartement de 4 pièces
Livraison 1er trimestre 2026

Dolce Mia
Dolce Mia
Fréjus (83600)

Appartements de 2 à 3 pièces
Livraison 1er trimestre 2026

Anna
Anna
Fréjus (83600)

Appartements de 2 à 4 pièces
Livraison 4ème trimestre 2027

Contacter MAISONS FRANCE CONFORT pour recevoir plus d'informations

Remplissez le formulaire ci-dessous, vos informations sont transmises directement au constructeur qui vous contactera par email ou par téléphone afin de traiter votre demande. En savoir plus.

Voir tous nos programmes immobiliers neufs à Puget-sur-Argens