Maison neuve, 90 m² - Pronleroy (60190)

278 000 €
Pronleroy (60190)

Proposée par MAISONS FRANCE CONFORT – 6 pièces - 3 chambres - terrain 720 m²

MAISONS FRANCE CONFORT
MAISONS FRANCE CONFORT
(61 avis)
  • Demande d'information
MAISON À CONSTRUIRE : ceci est une annonce d'une maison neuve à construire.
Pronleroy : maison F6 (90 m²) à vendre
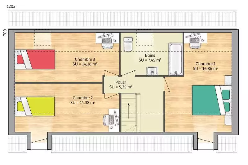
Idéalement située - Maison neuve 6 pièces en vente à Pronleroy (60190) avec 2 niveaux, une surface de 90 m² sur un terrain de 720 m². Son intérieur inclut trois chambres, une cuisine et une salle de bains.
À proximité : gares, bibliothèque. Accès autoroute A1 et nationale N31 à 14 km. Compiègne à 24 km.
Le prix de vente de cette maison de 6 pièces est de 278 000 €.
. Maisons France Confort Beauvais est là pour vous accompagner dans tous vos projets immobiliers.
NOUVEAU! Magnifique terrain plat de 720 m2 situé à PRONLEROY entre SAINT JUST EN CHAUSSEE et ESTREES SAINT DENIS, A proximité vous trouverez : école maternelle, primaire , collège, lycée, crèche, médecin, pharmacie, supermarché et autres commerces de proximités. Parcelle possédant une façade de 18 ml, tout à l'égout sur place. Laissez parler votre imagination pour une construction 100 % sur mesure. Cadre verdoyant idéalement situé. . Plusieurs opérations disponibles.
Référence : FBpronleroy65_3
Terrain proposé par un partenaire foncier selon disponibilités et autorisation de publicité au prix de 65 000 €. Hors droit d'enregistrement et frais de notaire. Maison proposée, avec un contrat de construction de maison individuelle, dans le cadre de la loi du 19/12/1990, au prix de 213 000 € (Hors branchements et raccordements, papiers peints, peintures, revêtement de sol dans les chambres, qui sont chiffrés dans les travaux qui restent à charge du client. Tarif modifiable sans préavis). Étiquette énergie : A. Différents modèles disponibles pour ce terrain. Assurances et garanties du constructeur comprises (RC professionnelle, décennale, dommage ouvrage).

Les informations sur les risques auxquels ce bien est exposé sont disponibles sur le site Géorisques : www.georisques.gouv.fr


Prix
  • Prix total : 278 000 €
  • Prix du modèle de maison : 213 000 €
  • Prix du terrain : 65 000 €

Terrain
  • Surface : 720 m²

Maison
  • Surface : 90 m²
  • Pièces : 6
  • Chambres : 3
  • Garage : 1

  • Être rappelé par un conseiller
  • Demander plus d’infos
  • Demande d'information
Pronleroy (60190)

Programmes à proximité

Le Square des Arts
Le Square des Arts
Clermont (60600)

Appartements de 2 à 4 pièces
Livraison 4ème trimestre 2024

Le Clos Venette
Le Clos Venette
Venette (60280)

Appartements de 2 à 4 pièces et maisons de 4 à 5 pièces
Livraison 4ème trimestre 2027

LA LISIÈRE
LA LISIÈRE
Compiègne (60200)

Appartement de 4 pièces
Livraison 4ème trimestre 2025

LES JARDINS DE JEZZINE
LES JARDINS DE JEZZINE
Compiègne (60200)

Appartements de 3 pièces et maisons de 5 pièces
Livraison 4ème trimestre 2027

CARRE MANSART
CARRE MANSART
Compiègne (60200)

Appartements de 2 à 4 pièces et local commercial
Livraison 4ème trimestre 2027

RIVE OISE
RIVE OISE
Creil (60100)

Appartements de 1 à 4 pièces
Livraison 4ème trimestre 2026

Contacter MAISONS FRANCE CONFORT pour recevoir plus d'informations

Remplissez le formulaire ci-dessous, vos informations sont transmises directement au constructeur qui vous contactera par email ou par téléphone afin de traiter votre demande. En savoir plus.

Voir tous nos programmes immobiliers neufs à Pronleroy