Maison neuve, 121 m² - Pont-de-Barret (26160)
344 000 €
Pont-de-Barret (26160)
Proposée par MAISONS FRANCE CONFORT – 5 pièces - 4 chambres - terrain 478 m²
|
|
| MAISONS FRANCE CONFORT |
| (120 avis) |
- Demande d'information
- Prendre rendez-vous
MAISON À CONSTRUIRE : ceci est une annonce d'une maison neuve à construire.
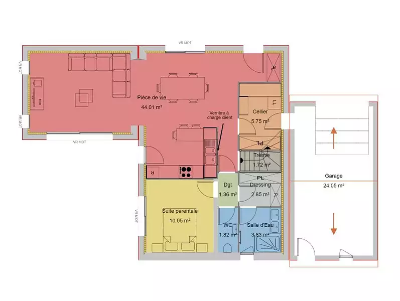
Située dans un cadre calme et agréable, cette maison de 121 m² offre une pièce de vie spacieuse et lumineuse, parfaite pour des moments de convivialité en famille.
La cuisine ouverte, donnant sur le cellier, ajoute une touche de modernité et de fonctionnalité à cet espace.
Avec ses 4 chambres bien agencées, dont une suite parentale en rez-de-chaussée avec dressing et salle d'eau, cette maison RE 2020, vous procure un confort de vie et une efficacité énergétique incomparable.
Un garage vient également compléter cet habitat.
Ne manquez pas l'opportunité de vivre dans une maison qui allie style contemporain et praticité au quotidien!
Votre conseiller en construction Olivier PUAUX 06.01.46.37.15 MAISONS FRANCE CONFORT se tient à votre disposition pour en savoir plus à propos de cette habitation, en découvrir d'autres ou bien même créer votre projet personnalisé.
Contactez-le sans plus tarder, pour donner vie à votre projet !!!
Référence : OP2311951_1
Terrain proposé par un partenaire foncier selon disponibilités et autorisation de publicité au prix de 82 000 €. Hors droit d'enregistrement et frais de notaire. Terrain + Maison proposés au prix de 262 000 € (Hors branchements et raccordements, papiers peints, peintures, revêtement de sol dans les chambres. Tarif modifiable sans préavis). Etiquette énergie : A. Différents modèles disponibles pour ce terrain. Assurances et garanties du constructeur (RC professionnelle, décennale, dommage ouvrage, garantie de remboursement de l'acompte, livraison à prix et délai convenu) : https://www.maisons-france-confort.fr/mentions-legales/. HEXAOM Services est enregistré auprès de l'ORIAS en tant que Courtier en financement, Niveau 1, sous le numéro 14001345.
Les informations sur les risques auxquels ce bien est exposé sont disponibles sur le site Géorisques : www.georisques.gouv.fr
La cuisine ouverte, donnant sur le cellier, ajoute une touche de modernité et de fonctionnalité à cet espace.
Avec ses 4 chambres bien agencées, dont une suite parentale en rez-de-chaussée avec dressing et salle d'eau, cette maison RE 2020, vous procure un confort de vie et une efficacité énergétique incomparable.
Un garage vient également compléter cet habitat.
Ne manquez pas l'opportunité de vivre dans une maison qui allie style contemporain et praticité au quotidien!
Votre conseiller en construction Olivier PUAUX 06.01.46.37.15 MAISONS FRANCE CONFORT se tient à votre disposition pour en savoir plus à propos de cette habitation, en découvrir d'autres ou bien même créer votre projet personnalisé.
Contactez-le sans plus tarder, pour donner vie à votre projet !!!
Référence : OP2311951_1
Terrain proposé par un partenaire foncier selon disponibilités et autorisation de publicité au prix de 82 000 €. Hors droit d'enregistrement et frais de notaire. Terrain + Maison proposés au prix de 262 000 € (Hors branchements et raccordements, papiers peints, peintures, revêtement de sol dans les chambres. Tarif modifiable sans préavis). Etiquette énergie : A. Différents modèles disponibles pour ce terrain. Assurances et garanties du constructeur (RC professionnelle, décennale, dommage ouvrage, garantie de remboursement de l'acompte, livraison à prix et délai convenu) : https://www.maisons-france-confort.fr/mentions-legales/. HEXAOM Services est enregistré auprès de l'ORIAS en tant que Courtier en financement, Niveau 1, sous le numéro 14001345.
Les informations sur les risques auxquels ce bien est exposé sont disponibles sur le site Géorisques : www.georisques.gouv.fr
- Prix
-
- Prix total : 344 000 €
- Prix du modèle de maison : 262 000 €
- Prix du terrain : 82 000 €
- Terrain
-
- Surface : 478 m²
- Maison
-
- Surface : 121 m²
- Pièces : 5
- Chambres : 4
- Garage : 1
- Être rappelé par un conseiller
- Demander plus d’infos
- Demande d'information
Pont-de-Barret (26160)
Maisons à proximité
Maison neuve, 90 m²
Pont-de-Barret (26160)
Pont-de-Barret (26160)
Maison de 4 pièces
Maison neuve, 83 m²
Pont-de-Barret (26160)
Pont-de-Barret (26160)
Maison de 4 pièces
Maison neuve, 90 m²
Pont-de-Barret (26160)
Pont-de-Barret (26160)
Maison de 4 pièces
Maison neuve, 81 m²
Pont-de-Barret (26160)
Pont-de-Barret (26160)
Maison de 4 pièces
Maison neuve, 50 m²
Pont-de-Barret (26160)
Pont-de-Barret (26160)
Maison de 3 pièces
Maison neuve, 104 m²
Cléon-d'Andran (26450)
Cléon-d'Andran (26450)
Maison de 5 pièces
Programmes à proximité
Contacter MAISONS FRANCE CONFORT pour recevoir plus d'informations
Remplissez le formulaire ci-dessous, vos informations sont transmises directement au constructeur qui vous contactera par email ou par téléphone afin de traiter votre demande. En savoir plus.