Maison neuve, 90 m² - Plougasnou (29630)
275 000 €
Plougasnou (29630)
Proposée par MAISONS DE L'AVENIR – 5 pièces - 4 chambres - terrain 500 m²
|
|
| MAISONS DE L'AVENIR |
| (63 avis) |
- Demande d'information
- Prendre rendez-vous
MAISON À CONSTRUIRE : ceci est une annonce d'une maison neuve à construire.
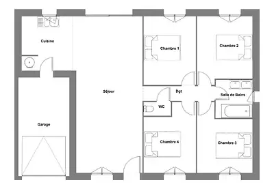
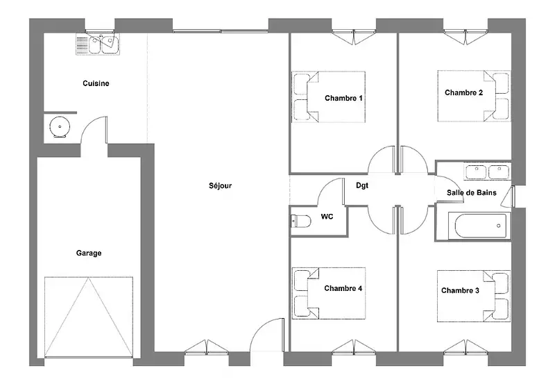
Plougasnou : maison T5 (90 m²) à vendre
Ce très beau plain-pied aux lignes traditionnelles, de 90m² agencé astucieusement pour un maximum de luminosité, pièce de vie ouverte et volumineuse, 4 chambres, salle de bain, wc et son garage.
Aux normes RE2020, peu énergivore, elle vous ravira par son confort de vie
Cette maison de 5 pièces est à vendre pour la somme de 275 000 €.
Contactez Aurélie CAGNARD pour plus de renseignements sur la maison, sur les démarches à suivre ou sur les modalités de vente. Maisons de l'Avenir Guipavas vous accompagne à toutes les étapes de votre projet et dans tous vos projets immobiliers.
Référence : AC2352068_4
Maisons de l’Avenir, constructeur de maisons individuelles, propose en collaboration avec ses partenaires fonciers, une sélection de terrains constructibles, selon disponibilité, pour la construction de maisons neuves définies par le constructeur, avec un contrat de construction de maison individuelle, dans le cadre de la loi du 19/12/1990. Prix net, hors frais notariés, d'enregistrement et de publicité foncière
Terrain proposé au prix de : 80 000 €
Maison proposée au prix de : 195 000 €
Etiquette énergie : A. Assurances et garanties du constructeur (RC professionnelle, décennale, dommage ouvrage, Garantie de livraison à prix et délai convenu).
Les informations sur les risques auxquels ce bien est exposé sont disponibles sur le site Géorisques : www.georisques.gouv.fr
Ce très beau plain-pied aux lignes traditionnelles, de 90m² agencé astucieusement pour un maximum de luminosité, pièce de vie ouverte et volumineuse, 4 chambres, salle de bain, wc et son garage.
Aux normes RE2020, peu énergivore, elle vous ravira par son confort de vie
Cette maison de 5 pièces est à vendre pour la somme de 275 000 €.
Contactez Aurélie CAGNARD pour plus de renseignements sur la maison, sur les démarches à suivre ou sur les modalités de vente. Maisons de l'Avenir Guipavas vous accompagne à toutes les étapes de votre projet et dans tous vos projets immobiliers.
Référence : AC2352068_4
Maisons de l’Avenir, constructeur de maisons individuelles, propose en collaboration avec ses partenaires fonciers, une sélection de terrains constructibles, selon disponibilité, pour la construction de maisons neuves définies par le constructeur, avec un contrat de construction de maison individuelle, dans le cadre de la loi du 19/12/1990. Prix net, hors frais notariés, d'enregistrement et de publicité foncière
Terrain proposé au prix de : 80 000 €
Maison proposée au prix de : 195 000 €
Etiquette énergie : A. Assurances et garanties du constructeur (RC professionnelle, décennale, dommage ouvrage, Garantie de livraison à prix et délai convenu).
Les informations sur les risques auxquels ce bien est exposé sont disponibles sur le site Géorisques : www.georisques.gouv.fr
- Prix
-
- Prix total : 275 000 €
- Prix du modèle de maison : 195 000 €
- Prix du terrain : 80 000 €
- Terrain
-
- Surface : 500 m²
- Maison
-
- Surface : 90 m²
- Pièces : 5
- Chambres : 4
- Garage : 1
- Être rappelé par un conseiller
- Demander plus d’infos
- Demande d'information
Plougasnou (29630)
Maisons à proximité
Maison neuve, 120 m²
Plougasnou (29630)
Plougasnou (29630)
Maison de 4 pièces
Maison neuve, 79 m²
Plougasnou (29630)
Plougasnou (29630)
Maison de 4 pièces
Maison neuve, 86 m²
Plougasnou (29630)
Plougasnou (29630)
Maison de 3 pièces
Maison neuve, 114 m²
Plougasnou (29630)
Plougasnou (29630)
Maison de 4 pièces
Maison neuve, 148 m²
Saint-Jean-du-Doigt (29630)
Saint-Jean-du-Doigt (29630)
Maison de 6 pièces
Maison neuve, 117 m²
Saint-Jean-du-Doigt (29630)
Saint-Jean-du-Doigt (29630)
Maison de 4 pièces
Programmes à proximité
Contacter MAISONS DE L'AVENIR pour recevoir plus d'informations
Remplissez le formulaire ci-dessous, vos informations sont transmises directement au constructeur qui vous contactera par email ou par téléphone afin de traiter votre demande. En savoir plus.