Maison neuve, 120 m² - Plerguer (35540)

358 000 €
Plerguer (35540)

Proposée par MAISONS DE L'AVENIR – 4 pièces - 3 chambres - terrain 388 m²

MAISONS DE L'AVENIR
MAISONS DE L'AVENIR
  • Demande d'information
MAISON À CONSTRUIRE : ceci est une annonce d'une maison neuve à construire.
VENTE : maison BOIS de 4 pièces (120 m²) à Plerguer
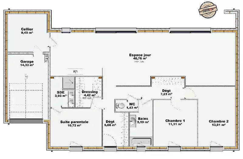
Proche de Saint-Malo - À découvrir à Plerguer (35540) : maison neuve 4 pièces à vendre. Surface de 120 m² et 388 m² de terrain. Conçue de plain-pied, elle propose trois chambres, une cuisine et deux salles de bains.
À dix minutes : gare (Plerguer), écoles, bibliothèque, supermarché, commerce, boulangerie et bureau de poste. Accès nationale N176 à 2 km. Manche à 9 km.
Cette maison de 4 pièces est à vendre pour la somme de 358 000 €.
. Maisons de l'Avenir Saint-Carné est là pour vous accompagner dans tous vos projets immobiliers.
Référence : QL2351113_5
Maisons de l’Avenir, constructeur de maisons individuelles, propose en collaboration avec ses partenaires fonciers, une sélection de terrains constructibles, selon disponibilité, pour la construction de maisons neuves définies par le constructeur, avec un contrat de construction de maison individuelle, dans le cadre de la loi du 19/12/1990. Prix net, hors frais notariés, d'enregistrement et de publicité foncière
Terrain proposé au prix de : 70 000 €
Maison proposée au prix de : 288 000 €
Etiquette énergie : A. Assurances et garanties du constructeur (RC professionnelle, décennale, dommage ouvrage, Garantie de livraison à prix et délai convenu).


Les informations sur les risques auxquels ce bien est exposé sont disponibles sur le site Géorisques : www.georisques.gouv.fr


Prix
  • Prix total : 358 000 €
  • Prix du modèle de maison : 288 000 €
  • Prix du terrain : 70 000 €

Terrain
  • Surface : 388 m²

Maison
  • Surface : 120 m²
  • Pièces : 4
  • Chambres : 3
  • Garage : 1

  • Être rappelé par un conseiller
  • Demander plus d’infos
  • Demande d'information
Plerguer (35540)

Programmes à proximité

EQUINOXE
EQUINOXE
Dol-de-Bretagne (35120)

Appartements de 2 à 3 pièces
Livraison 2ème trimestre 2027

HAMEAU DE JOSEPHINE
HAMEAU DE JOSEPHINE
Combourg (35270)

Appartements de 2 à 3 pièces
Livraison 3ème trimestre 2026

Rive Émeraude
Rive Émeraude
La Richardais (35780)

Appartements de 2 à 4 pièces et maisons de 4 à 5 pièces
Livraison 4ème trimestre 2027

ISTRAL
ISTRAL
Cancale (35260)

Appartements de 2 à 4 pièces
Livraison 2ème trimestre 2026

GEORGE V
GEORGE V
Saint-Malo (35400)

Appartements de 1 à 4 pièces
Livraison 1er trimestre 2028

Contacter MAISONS DE L'AVENIR pour recevoir plus d'informations

Remplissez le formulaire ci-dessous, vos informations sont transmises directement au constructeur qui vous contactera par email ou par téléphone afin de traiter votre demande. En savoir plus.

Voir tous nos programmes immobiliers neufs à Plerguer