Maison neuve - Plaissan (34230)
238 000 €
Plaissan (34230)
Proposée par MAISONS BATI-FRANCE – terrain 239 m²
|
|
| Maisons Bati-France |
- Demande d'information
- Prendre rendez-vous
MAISON À CONSTRUIRE : ceci est une annonce d'une maison neuve à construire.
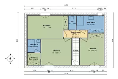
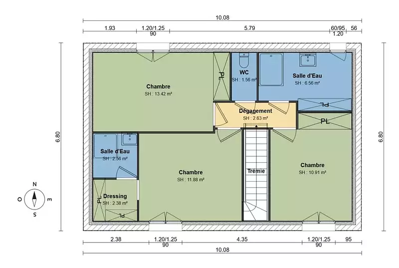
Découvrez cette maison neuve de 90 m² à bâtir, de type traditionnelle, permis accordé proposé par Maisons Bati-France à Plaissan (34230), idéal pour un premier achat sécurisé . Cette maison à étage sera implantée sur un terrain viabilisé de 239 m² situé dans un lotissement proche des écoles, des transports et de toutes les commodités, un vrai plus pour simplifier le quotidien. Le permis est accordé, la construction respecte la norme re 2020 pour une performance énergétique optimale et des factures maîtrisées, parfaite pour les primo-accédants souhaitant bénéficier des aides à l’achat et investir sereinement dans un bien économe et facile d’entretien. D’une surface habitable de 90 m², elle offre 4 pièces bien agencées avec une entrée accueillante, un bel espace de vie ouvert avec cuisine US, un cellier pratique, 3 chambres dont une suite parentale avec dressing, 2 salles de bains, 2 toilettes et un étage fonctionnel pensé pour le confort de toute la famille. Un garage de 17 m² complète l’ensemble pour stationner ou stocker en toute tranquillité. Un projet clé en main, moderne et optimisé, qui constitue un excellent investissement initial dans un cadre de vie agréable. Nous avons sélectionné ce terrain en partenariat avec nos aménageurs fonciers, dans le cadre d’un projet avec Maisons Bati-France.
Les informations sur les risques auxquels ce bien est exposé sont disponibles sur le site Géorisques : www.georisques.gouv.fr
Les informations sur les risques auxquels ce bien est exposé sont disponibles sur le site Géorisques : www.georisques.gouv.fr
- Prix
-
- Prix total : 238 000 €
- Prix du modèle de maison : N.C.
- Prix du terrain : N.C.
- Terrain
-
- Surface : 239 m²
- Être rappelé par un conseiller
- Demander plus d’infos
- Demande d'information
Plaissan (34230)
Maisons à proximité
Maison neuve, 81 m²
Plaissan (34230)
Plaissan (34230)
Maison de 4 pièces
Maison neuve, 101 m²
Plaissan (34230)
Plaissan (34230)
Maison de 5 pièces
Maison neuve, 65 m²
Plaissan (34230)
Plaissan (34230)
Maison de 3 pièces
Maison neuve, 101 m²
Plaissan (34230)
Plaissan (34230)
Maison de 5 pièces
Maison neuve, 100 m²
Plaissan (34230)
Plaissan (34230)
Maison de 4 pièces
Maison neuve, 78 m²
Plaissan (34230)
Plaissan (34230)
Maison de 4 pièces
Programmes à proximité
Le clos des violettes
Cournonterral (34660)
Cournonterral (34660)
Appartements de 3 à 4 pièces
Livraison 1er trimestre 2028
NEORA
Cournonterral (34660)
Cournonterral (34660)
Appartements de 2 à 3 pièces
Livraison 2ème trimestre 2028
VILLAE
Pignan (34570)
Pignan (34570)
Appartements de 1 à 3 pièces
Livraison 3ème trimestre 2028
Iria - Prix Maitrisé
Sète (34200)
Sète (34200)
Appartements de 2 à 4 pièces
Livraison 4ème trimestre 2027
En front de mer à Sète
Sète (34200)
Sète (34200)
Appartements de 2 à 4 pièces
Sète - Standing - Vues Etang - Livraison Immédiate
Sète (34200)
Sète (34200)
Appartements de 2 à 4 pièces
Livraison 4ème trimestre 2025
Contacter MAISONS BATI-FRANCE pour recevoir plus d'informations
Remplissez le formulaire ci-dessous, vos informations sont transmises directement au constructeur qui vous contactera par email ou par téléphone afin de traiter votre demande. En savoir plus.