Maison neuve, 101 m² - Plaimpied-Givaudins (18340)
225 789 €
Plaimpied-Givaudins (18340)
Proposée par STYL HABITAT AGENCE DE VARENNES-VAUZELLES / NEVERS – 5 pièces - 4 chambres - terrain 1 784 m²
|
|
| Styl habitat Agence de Varennes-Vauzelles / Nevers |
- Demande d'information
- Prendre rendez-vous
MAISON À CONSTRUIRE : ceci est une annonce d'une maison neuve à construire.
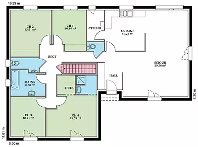
Nous vous proposons cette maison neuve, baptisée ""Sommière"", un modèle de construction qui allie élégance et performance énergétique. Avec une surface habitable de 101 m², cette maison est conçue pour offrir un confort optimal tout en respectant l'environnement. Disponible en versions 2 pans ou 4 pans, elle s'adapte à vos préférences esthétiques et à la configuration de votre terrain.
La maison ""Sommière"" se distingue par ses 4 chambres spacieuses, réparties dans un agencement intelligent qui maximise l'espace et la lumière naturelle. Les 4 pièces de vie, pensées pour le bien-être des occupants, offrent un cadre de vie agréable et fonctionnel, idéal pour les familles à la recherche d'un foyer chaleureux.
Construite dans le respect des normes RE2020, cette maison neuve est un modèle de basse consommation énergétique. Elle est équipée de matériaux et de technologies de pointe pour garantir une isolation optimale, une excellente étanchéité à l'air et une gestion efficace de l'énergie. Ce souci du détail assure non seulement un confort thermique toute l'année mais représente également une économie significative sur les factures d'énergie.
La ""Sommière"" est une invitation à vivre dans un espace qui respecte l'environnement tout en offrant un cadre de vie exceptionnel. Son design, à la fois moderne et intemporel, saura séduire les acquéreurs les plus exigeants. Que vous optiez pour un toit à 2 pans ou à 4 pans, vous bénéficierez d'une maison élégante, fonctionnelle et durable.
Investir dans la maison ""Sommière"", c'est choisir un habitat de qualité, conçu pour répondre aux défis de demain. Nous vous invitons à découvrir ce modèle unique, symbole d'un art de vivre tourné vers l'avenir.
Référence : 13382
Les informations sur les risques auxquels ce bien est exposé sont disponibles sur le site Géorisques : www.georisques.gouv.fr
La maison ""Sommière"" se distingue par ses 4 chambres spacieuses, réparties dans un agencement intelligent qui maximise l'espace et la lumière naturelle. Les 4 pièces de vie, pensées pour le bien-être des occupants, offrent un cadre de vie agréable et fonctionnel, idéal pour les familles à la recherche d'un foyer chaleureux.
Construite dans le respect des normes RE2020, cette maison neuve est un modèle de basse consommation énergétique. Elle est équipée de matériaux et de technologies de pointe pour garantir une isolation optimale, une excellente étanchéité à l'air et une gestion efficace de l'énergie. Ce souci du détail assure non seulement un confort thermique toute l'année mais représente également une économie significative sur les factures d'énergie.
La ""Sommière"" est une invitation à vivre dans un espace qui respecte l'environnement tout en offrant un cadre de vie exceptionnel. Son design, à la fois moderne et intemporel, saura séduire les acquéreurs les plus exigeants. Que vous optiez pour un toit à 2 pans ou à 4 pans, vous bénéficierez d'une maison élégante, fonctionnelle et durable.
Investir dans la maison ""Sommière"", c'est choisir un habitat de qualité, conçu pour répondre aux défis de demain. Nous vous invitons à découvrir ce modèle unique, symbole d'un art de vivre tourné vers l'avenir.
Référence : 13382
Les informations sur les risques auxquels ce bien est exposé sont disponibles sur le site Géorisques : www.georisques.gouv.fr
- Prix
-
- Prix total : 225 789 €
- Prix du modèle de maison : 159 789 €
- Prix du terrain : 66 000 €
- Terrain
-
- Surface : 1 784 m²
- Maison
-
- Surface : 101 m²
- Pièces : 5
- Chambres : 4
- Être rappelé par un conseiller
- Demander plus d’infos
- Demande d'information
Plaimpied-Givaudins (18340)
Maisons à proximité
Maison neuve, 109 m²
Plaimpied-Givaudins (18340)
Plaimpied-Givaudins (18340)
Maison de 5 pièces
Maison neuve, 91 m²
Plaimpied-Givaudins (18340)
Plaimpied-Givaudins (18340)
Maison de 5 pièces
Maison neuve, 90 m²
Saint-Just (18340)
Saint-Just (18340)
Maison de 5 pièces
Maison neuve, 100 m²
Soye-en-Septaine (18340)
Soye-en-Septaine (18340)
Maison de 3 pièces
Maison neuve, 90 m²
Soye-en-Septaine (18340)
Soye-en-Septaine (18340)
Maison de 5 pièces
Maison neuve, 180 m²
Soye-en-Septaine (18340)
Soye-en-Septaine (18340)
Maison de 6 pièces
Programmes à proximité
Le Clos d'Auron
Bourges (18000)
Bourges (18000)
Appartements de 2 à 3 pièces
Livraison 1er trimestre 2028
Dans un écrin historique à 8 min* du centre
Bourges (18000)
Bourges (18000)
Appartement de 2 pièces
Livraison 3ème trimestre 2026
Carré Voltaire
Bourges (18000)
Bourges (18000)
Appartements de 1 à 4 pièces
Livraison 1er trimestre 2028
Contacter STYL HABITAT AGENCE DE VARENNES-VAUZELLES / NEVERS pour recevoir plus d'informations
Remplissez le formulaire ci-dessous, vos informations sont transmises directement au constructeur qui vous contactera par email ou par téléphone afin de traiter votre demande. En savoir plus.
Voir tous nos programmes immobiliers neufs à Plaimpied-Givaudins