Maison neuve, 130 m² - Pisany (17600)
334 789 €
Pisany (17600)
Proposée par BERMAX – 5 pièces - 3 chambres - terrain 800 m²
|
|
| BERMAX |
- Demande d'information
- Prendre rendez-vous
MAISON À CONSTRUIRE : ceci est une annonce d'une maison neuve à construire.
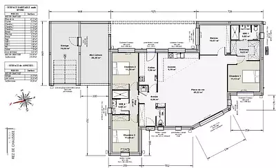
VENTE d'une maison T5 (130 m²) à Pisany
CENTRE-VILLE - MAISON 5 PIÈCES NEUVE
À 21 km de l'océan Atlantique et à deux pas de Saintes, Bermax Construction Saintes vous présente à vendre, dans le centre de Pisany (17600), cette maison de 5 pièces de plain-pied de 130 m² et de 800 m² de terrain.
Elle offre trois chambres, une cuisine et deux salles de bains. La maison est neuve.
L'École Élémentaire Georges Couturier Pisany est implantée à moins de 10 minutes à pied.
On trouve un accès à la nationale N150 à 1 km.
Il y a une pharmacie, une boulangerie, un commerce et une épicerie à quelques minutes.
Son prix de vente est de 334 789 €.
.
Bermax Construction Saintes est là pour vous accompagner dans tous vos projets immobiliers.
Référence : PD2257964_3
Terrain proposé par un partenaire foncier selon disponibilités et autorisation de publicité au prix de 59 700 €. Hors droit d'enregistrement et frais de notaire. Maison proposée, avec un contrat de construction de maison individuelle, dans le cadre de la loi du 19/12/1990, au prix de 275 089 € (Hors branchements et raccordements, papiers peints, peintures, revêtement de sol dans les chambres, qui sont chiffrés dans les travaux qui restent à charge du client. Tarif modifiable sans préavis). Étiquette énergie : A. Différents modèles disponibles pour ce terrain. Assurances et garanties du constructeur comprises (RC professionnelle, décennale, dommage ouvrage).
Les informations sur les risques auxquels ce bien est exposé sont disponibles sur le site Géorisques : www.georisques.gouv.fr
CENTRE-VILLE - MAISON 5 PIÈCES NEUVE
À 21 km de l'océan Atlantique et à deux pas de Saintes, Bermax Construction Saintes vous présente à vendre, dans le centre de Pisany (17600), cette maison de 5 pièces de plain-pied de 130 m² et de 800 m² de terrain.
Elle offre trois chambres, une cuisine et deux salles de bains. La maison est neuve.
L'École Élémentaire Georges Couturier Pisany est implantée à moins de 10 minutes à pied.
On trouve un accès à la nationale N150 à 1 km.
Il y a une pharmacie, une boulangerie, un commerce et une épicerie à quelques minutes.
Son prix de vente est de 334 789 €.
.
Bermax Construction Saintes est là pour vous accompagner dans tous vos projets immobiliers.
Référence : PD2257964_3
Terrain proposé par un partenaire foncier selon disponibilités et autorisation de publicité au prix de 59 700 €. Hors droit d'enregistrement et frais de notaire. Maison proposée, avec un contrat de construction de maison individuelle, dans le cadre de la loi du 19/12/1990, au prix de 275 089 € (Hors branchements et raccordements, papiers peints, peintures, revêtement de sol dans les chambres, qui sont chiffrés dans les travaux qui restent à charge du client. Tarif modifiable sans préavis). Étiquette énergie : A. Différents modèles disponibles pour ce terrain. Assurances et garanties du constructeur comprises (RC professionnelle, décennale, dommage ouvrage).
Les informations sur les risques auxquels ce bien est exposé sont disponibles sur le site Géorisques : www.georisques.gouv.fr
- Prix
-
- Prix total : 334 789 €
- Prix du modèle de maison : 275 089 €
- Prix du terrain : 59 700 €
- Terrain
-
- Surface : 800 m²
- Maison
-
- Surface : 130 m²
- Pièces : 5
- Chambres : 3
- Garage : 1
- Être rappelé par un conseiller
- Demander plus d’infos
- Demande d'information
Pisany (17600)
Maisons à proximité
Maison neuve, 60 m²
Pisany (17600)
Pisany (17600)
Maison de 3 pièces
Maison neuve, 80 m²
Pisany (17600)
Pisany (17600)
Maison de 4 pièces
Maison neuve, 85 m²
Pisany (17600)
Pisany (17600)
Maison de 4 pièces
Maison neuve, 90 m²
Pisany (17600)
Pisany (17600)
Maison de 4 pièces
Maison neuve, 120 m²
La Clisse (17600)
La Clisse (17600)
Maison de 5 pièces
Maison neuve, 95 m²
La Clisse (17600)
La Clisse (17600)
Maison de 4 pièces
Programmes à proximité
OPHELIA
Saint-Georges-de-Didonne (17110)
Saint-Georges-de-Didonne (17110)
Appartements de 3 pièces
Livraison 1er trimestre 2026
L'Éclat Marin
Royan (17200)
Royan (17200)
Appartements de 2 à 4 pièces et maisons de 4 pièces
Horizon
Royan (17200)
Royan (17200)
Appartements de 1 à 4 pièces
Livraison 3ème trimestre 2028
Contacter BERMAX pour recevoir plus d'informations
Remplissez le formulaire ci-dessous, vos informations sont transmises directement au constructeur qui vous contactera par email ou par téléphone afin de traiter votre demande. En savoir plus.